la.schnute schrieb:
Die Morgensonne ist höchstens beim Frühstück wichtig (um irgendwie in die Gänge zu kommen)Dann bat Euch eine Infrarotheizung an den Frühstücksplatz, sonst kommt Ihr im deutschen Naßkaltgrauwinter eben doch nicht in die Gänge kaho674 schrieb:
Beides zu mischen, scheint nicht zu funktionierenDu kannst auch Nitro und Glycerin mischen, aber dann darf Dich der Knall nicht stören Säuren und Basen zu mischen, wäre widersinnig
https://www.instagram.com/11antgmxde/
https://www.linkedin.com/company/bauen-jetzt/
la.schnute schrieb:
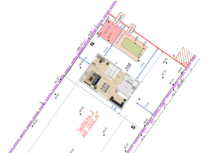
Und nein, ich verstehe grad wirklich nicht, warum die Ausrichtung dann gespiegelt mehr Sinn macht. Statt spitzer Kommentare wäre eine Erklärung wirklich nett.Auch das noch. Dein einziges Südfenster wird es nicht schaffen, den 11m tiefen Raum dahinter zu erhellen. Du sitzt also am Frühstückstisch und am Mittagstisch im dunkeln. Die Sonne kommt erst am Nachmittag langsam in den Wohnraum - da ist sie im Winter aber schon wieder am untergehen. Deshalb wird es eine düstere Sache.
Für eine Megafenster-Ecklösung in der Küche fehlt Euch das Geld. Die sinnvollste Lösung ist deshalb, die Wohnräume direkt an die Lichtseite zu nehmen und den Hauswirtschaftsraum dahin zu verbannen, wo er hingehört: in den Norden.
Ich habe den Lageplan aus Beitrag #205 mal mit dem Sonnenverlauf abgeglichen und hoffe, ich gehe nun recht in folgender Annahme:

https://www.instagram.com/11antgmxde/
https://www.linkedin.com/company/bauen-jetzt/
https://www.instagram.com/11antgmxde/
https://www.linkedin.com/company/bauen-jetzt/