Hausbau - Ratgeber
Bauherrenhilfe
- Bauherrenhilfe vor Vertragsabschluss
-- Warum einen unabhängigen Baubetreuer?
-- Vertragsgrundlagen
-- Bausumme
-- Zahlungsplan zur Kostenkontrolle
-- Pflichten des Bauherren vor Vertragsabschluss
-- Unterlagen beim Hausbau vor Vertragsabschluss
- Bauherrenhilfe nach Vertragsabschluss
-- Bauantrag bei Behörden
-- Bau-Genehmigungsverfahren bei Baubehörden
-- Bauspezifische Versicherungen
-- Bauzeitenplan
-- Baubeginn - die Letzten Pflichten der Bauherrschaft
- Bauherrenhilfe während der Bauzeit
- Gewährleistungsansprüche
- Bauabnahme
Baufinanzierung
- Baufinanzierung - Allgemeine Fragen
- Kreditarten
- Kredit-Konditionen
- Bausparen
- Staatliche Förderungen
- Verkehrswert
- Haushaltsrechnung und Bonität
Hausbau Planung
- Haustypen
- Hausbau Vorbereitungsarbeiten
- Das Baugrundstück
- Baugrund beim Hausbau
- Baurecht
- Gebäudeschutz
- Erdarbeiten und Wasserhaltung
- Stützmauern
- Einfriedung
- Untergeschoss
- Kanalisation
- Tragende Elemente
- Nichttragende Innenwände
- Fundation / Fundament
- Deckenkonstruktionen
- Dächer
- Kaminanlagen
- Treppen Rampen Leitern
- Dachbeläge und Spengler
- Fenster
- Sonnen und Wetterschutz
- Aussenputze
- Einbauten, Küchen, Türen
- Bodenbeläge und Unterlagsböden
- Parkett
- Gips, Wand, Decke
Haustechnik und Energie
- Heiztechnik
- Lüftung und Klimatechnik
- Sanitärtechnik
- Elektrotechnik
- Erneuerbare Energie
Whirlpools / Jacuzzi
Hausbau Magazin
- Baufinanzierung trotz Krise?
- Das Blockhaus
- Moderne Dämmstoffe im Vergleich
- Erker Vor- und Nachteile
- Glasflächen beim Hausbau
- Günstig ein Haus Bauen
- Mediterraner Hausbaustil
- Mehrgenerationenhaus
- Moderne Architektur
- Gartengestaltung leicht gemacht
- Traditioneller Ziegelbau
- Villa als höchster Traum
- Im Eigenheim Ruhestand geniessen
- Altbau sanieren
- Kauf einer Holzgarage
- Immobilienmakler
- Arbeitshandschuhe für den Winter
- Zuhause verschönern
- Outdoor-Plissees
- Schlafzimmer planen
- Terrassenüberdachung
- Wohngebäudeversicherung
- Zaunarten und Eigenschaften
- Hauseingang gestalten
- Der perfekte Grundriss
- Sparsamer heizen im Altbau
- Einfamilienhaus smart finanzieren
- Planung einer PV-Anlage
- Neues Haus
- Immobilienfinanzierung
- Installation einer Photovoltaikanlage
- Asbest erkennen und entfernen
- Gartenpflege im Frühling – worauf achten
- Sauna im Fokus - Wellness zuhause
- Erfolgreich vermieten
- Die perfekte Winterbekleidung
- Das Niedrigenergiehaus
- Der April und seine Stürme
- Architektonische Vielfalt
- Ökologisch und nachhaltig bauen
- Das perfekte Schlafzimmer
- Nachhaltige Energieversorgung
- Zukunftsorientiert bauen
- Nachhaltigkeit beim Hausbau
- Tiny Houses
- Wärmepumpen als nachhaltige Heizvariante
- Maßgeschneiderten Kleiderschrank
- Der richtige Baukredit
- Ratgeber für erfolgreichen Hausbau
- Haus als Altersvorsorge
Do-it-yourself Anleitungen
- Verlegeanleitung für Bodenbeläge und Parkett
- Bodenbeläge und Parkett reinigen und pflegen
- Malerarbeiten am Haus
- Garten Tipps
- Umzug und Reinigung

ᐅ Unkalkulierbarkeit der Baukosten - Platzt das Projekt deswegen?

Erstellt am: 19.04.22 22:01
H
hang_häuschen
H
hang_häuschen
19.04.22 23:50
hauskauf1987 schrieb:

Ist ne blödsinnige Situation. Wieso habt ihr eure ETW bereits verkauft?
Wenn die Rechtsberatung sagt, dass das wasserdicht ist würde ich erstmal auf den Bauunternehmer zugehen. Was ist das für ein Laden?

Laut unserem Finanzberater mussten wir die Wohnung verkaufen, sonst hätten wir keinen Kredit bekommen bzw. zu einem hohem Zinssatz.

Ist ein kleines regionales Bauunternehmen für massivbau.
kbt0920.04.22 01:09
hang_häuschen schrieb:

Preise sind bis zum xx.xx gültig, für eine spätere Auftragserteilung behalten wir uns Preisanpassungen vor. Zur Auftragserteilung senden Sie uns eine Kopie des unterschriebenen Auftrags zurück“ Und das haben wir dann getan.
was stand denn statt xx.xx in dem Schreiben, was ihr schon unterschrieben habt?

Und, dann kann ich @ypg nur noch mal unterstützen .. du hattest in dem anderen Thread auch irgendetwas von 2xKfW-Förderung geschrieben, weil Einliegerwohnung? Warst doch du - oder? Also wären die Pläne wichtig. Die KfW-Förderung ist schon bewilligt? Bewilligung hat also vor dem 24.01. stattgefunden?
11ant20.04.22 01:13
Ich verstehe: nichts. Und ich fürchte, damit stehe ich hier nicht allein. Ein Angebot unterschreibt der Anbieter. Wenn ihr als Kunden es ebenfalls unterschrieben habt, dann habt Ihr nicht ein Angebot, sondern dessen Annahme unterschrieben - also einen Vertrag geschlossen. "Abbrechen" kann man den nicht mehr, sondern nur kündigen. Wenn der zu der Frage was die Kündigungsfolgen wären nichts enthält, müßt Ihr die Antworten daraus wohl (oder hier eher: übel) aus dem Baugesetzbuch entnehmen. Aus Eurer Rede von einem "endgültigen Vertrag", der noch in der Zukunft läge, entnehme ich, daß der Vertrag wesentliche Punkte noch nicht geregelt hat. Mit dem "erweiterten Rohbau" ist vermutlich eine Art Ausbauhaus-Stadium gemeint, also z.B. daß der Auftragnehmer Euch ein Haus mit dichtem Dach und Fenstern und Außenputz bauen soll, danach dann sein Werkzeug zusammenpacken darf und Ihr Euer weiteres Glück dann allein sucht. Das klingt alles sehr nach Tretboot in Seenot. Schade um die verkaufte ETW, die war wenigstens fertig. Über das Haus solltet Ihr mehr erzählen: aus der genannten Grundfläche leite ich etwa 68 qm Wohnfläche im EG ab, als Anderthalbgeschösser also etwa 102. Hier Spekulation durch eine Faktenbasis zu ersetzen, könnte hilfreich sein ;-)
https://www.instagram.com/11antgmxde/
https://www.linkedin.com/company/bauen-jetzt/
H
hang_häuschen
20.04.22 07:47
kbt09 schrieb:

was stand denn statt xx.xx in dem Schreiben, was ihr schon unterschrieben habt?

Und, dann kann ich @ypg nur noch mal unterstützen .. du hattest in dem anderen Thread auch irgendetwas von 2xKfW-Förderung geschrieben, weil Einliegerwohnung? Warst doch du - oder? Also wären die Pläne wichtig. Die KfW-Förderung ist schon bewilligt? Bewilligung hat also vor dem 24.01. stattgefunden?

Die Preise waren bis 03.03. verbindlich.

Sorry, das hab ich hier total vergessen. Im Keller ist eine kleine Einliegerwohnung geplant, wir bekommen 2x die Förderung für KfW 55. Die wurde uns schon im November 2021 bewilligt.
H
hang_häuschen
20.04.22 07:58
11ant schrieb:

Ich verstehe: nichts. Und ich fürchte, damit stehe ich hier nicht allein. Ein Angebot unterschreibt der Anbieter. Wenn ihr als Kunden es ebenfalls unterschrieben habt, dann habt Ihr nicht ein Angebot, sondern dessen Annahme unterschrieben - also einen Vertrag geschlossen. "Abbrechen" kann man den nicht mehr, sondern nur kündigen. Wenn der zu der Frage was die Kündigungsfolgen wären nichts enthält, müßt Ihr die Antworten daraus wohl (oder hier eher: übel) aus dem Baugesetzbuch entnehmen. Aus Eurer Rede von einem "endgültigen Vertrag", der noch in der Zukunft läge, entnehme ich, daß der Vertrag wesentliche Punkte noch nicht geregelt hat. Mit dem "erweiterten Rohbau" ist vermutlich eine Art Ausbauhaus-Stadium gemeint, also z.B. daß der Auftragnehmer Euch ein Haus mit dichtem Dach und Fenstern und Außenputz bauen soll, danach dann sein Werkzeug zusammenpacken darf und Ihr Euer weiteres Glück dann allein sucht. Das klingt alles sehr nach Tretboot in Seenot. Schade um die verkaufte ETW, die war wenigstens fertig. Über das Haus solltet Ihr mehr erzählen: aus der genannten Grundfläche leite ich etwa 68 qm Wohnfläche im EG ab, als Anderthalbgeschösser also etwa 102. Hier Spekulation durch eine Faktenbasis zu ersetzen, könnte hilfreich sein ;-)

Tut mir leid, ich kenne mich da einfach wirklich nicht aus. Wir haben eben ein Angebot bekommen und das haben wir unterschrieben. Dann ist es eben wie du sagst, wir haben die Annahme unterschrieben.
Das wir nicht einfach abbrechen können ist klar, wir müssten dann um einen Aufhebungsvertrag bitten und wahrscheinlich Vertragsstrafe zahlen.

Es handelt sich hier nicht um ein Fertighaus oder einen großen Hausanbieter sondern um ein kleines regionales Unternehmen welches Massiv Häuser baut. Ihre Aussage war, dass sie uns nur den erweiterten Rohbau fest anbieten da sie hier auch die Preise definieren können. Und wenn es dann soweit ist sprechen wir über die aktuellen Preise für Elektrik, Heizung und Co…

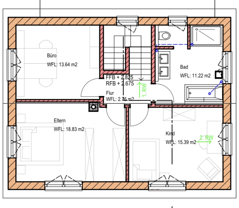
Ich lade gerne die Pläne hoch.
H
hang_häuschen
20.04.22 08:00
Hier die gewünschten Pläne. Die Garage wäre schon als Fertiggarage geplant.

Grundriss eines Hauses mit Technik, Geräte, Wohnen/Schlafen, Flur, Nassbereich, Treppen


Grundrissplan eines Hauses: Garage oben, offener Wohn-Essen-Kochbereich unten links mit Esstisch


Grundriss eines Hauses mit Büro, Eltern, Kinderzimmer, Bad und Flur; Treppe in der Mitte.
förderungplänevertrageinliegerwohnungkfwrohbau