Stadtvilla 138m2 - Verbesserungsvorschläge

4,20 Stern(e) 5 Votes
Zuletzt aktualisiert 13.10.2025
Sie befinden sich auf der Seite 4 der Diskussion zum Thema: Stadtvilla 138m2 - Verbesserungsvorschläge
>> Zum 1. Beitrag <<

C

chrisw81

Wie viel sollte man denn einplanen?
Ich würde einfach mal grob die Schränke und Geräte einplanen, die ihr so braucht, dann kommt ihr schon auf ein Maß. Vielleicht können es wirklich 30-40 cm weniger sein, dann wäre der Essbereich knapp 4m, was sicher etwas komfortabler ist.
Vielleicht könnte man auch über einen Tresen nachdenken?


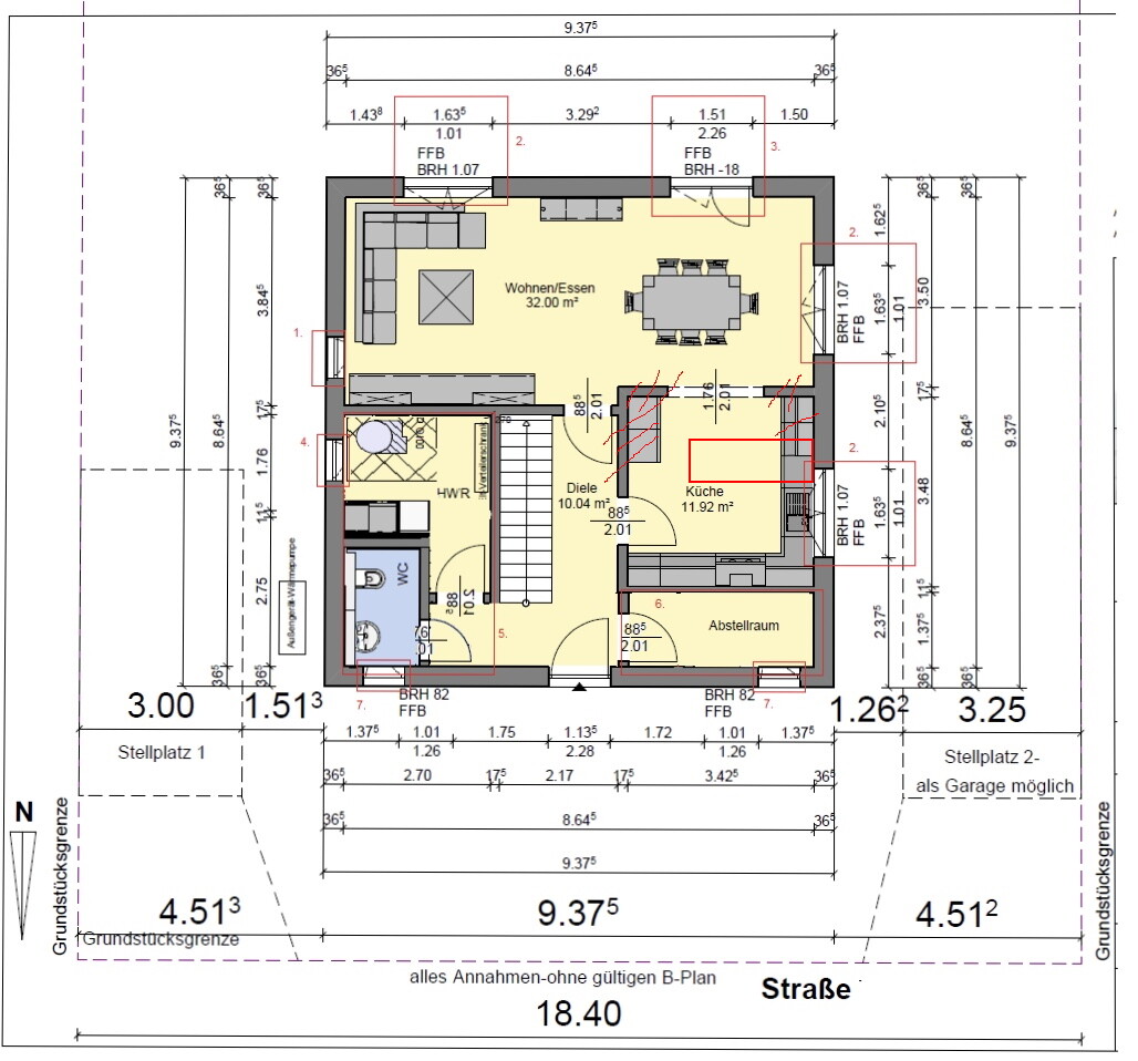
Grundriss eines Hauses: Wohnzimmer mit Essecke, Kueche, Diele, HWR, Abstellraum, WC, Treppenhaus.
 
Zuletzt aktualisiert 13.10.2025
Im Forum Grundrissplanung / Grundstücksplanung gibt es 2514 Themen mit insgesamt 87281 Beiträgen
Oben