ᐅ SH Elmshorn - Bebauungsplan 190
Erstellt am: 14.11.19 22:20
B
bauplan19014.11.19 22:20Hallo allerseits,
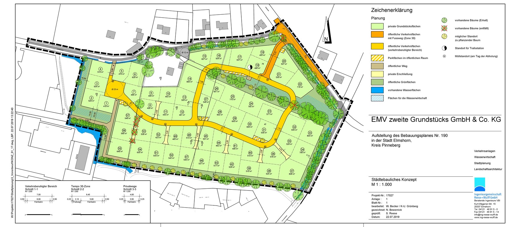
wir werden nächstes Jahr 2020 eine Stadtvilla im Baugebiet des Bebauungsplan Nr. 190 in Schleswig-Holstein / Kreis Pinneberg / Elmshorn bauen und sind auch gerne an einem Austausch mit unseren neuen Nachbarn interessiert. Mal sehen ob sich einige der zukünftigen Bauherren hier finden.

wir werden nächstes Jahr 2020 eine Stadtvilla im Baugebiet des Bebauungsplan Nr. 190 in Schleswig-Holstein / Kreis Pinneberg / Elmshorn bauen und sind auch gerne an einem Austausch mit unseren neuen Nachbarn interessiert. Mal sehen ob sich einige der zukünftigen Bauherren hier finden.
Anzeige