Hausbau - Ratgeber
Bauherrenhilfe
- Bauherrenhilfe vor Vertragsabschluss
-- Warum einen unabhängigen Baubetreuer?
-- Vertragsgrundlagen
-- Bausumme
-- Zahlungsplan zur Kostenkontrolle
-- Pflichten des Bauherren vor Vertragsabschluss
-- Unterlagen beim Hausbau vor Vertragsabschluss
- Bauherrenhilfe nach Vertragsabschluss
-- Bauantrag bei Behörden
-- Bau-Genehmigungsverfahren bei Baubehörden
-- Bauspezifische Versicherungen
-- Bauzeitenplan
-- Baubeginn - die Letzten Pflichten der Bauherrschaft
- Bauherrenhilfe während der Bauzeit
- Gewährleistungsansprüche
- Bauabnahme
Baufinanzierung
- Baufinanzierung - Allgemeine Fragen
- Kreditarten
- Kredit-Konditionen
- Bausparen
- Staatliche Förderungen
- Verkehrswert
- Haushaltsrechnung und Bonität
Hausbau Planung
- Haustypen
- Hausbau Vorbereitungsarbeiten
- Das Baugrundstück
- Baugrund beim Hausbau
- Baurecht
- Gebäudeschutz
- Erdarbeiten und Wasserhaltung
- Stützmauern
- Einfriedung
- Untergeschoss
- Kanalisation
- Tragende Elemente
- Nichttragende Innenwände
- Fundation / Fundament
- Deckenkonstruktionen
- Dächer
- Kaminanlagen
- Treppen Rampen Leitern
- Dachbeläge und Spengler
- Fenster
- Sonnen und Wetterschutz
- Aussenputze
- Einbauten, Küchen, Türen
- Bodenbeläge und Unterlagsböden
- Parkett
- Gips, Wand, Decke
Haustechnik und Energie
- Heiztechnik
- Lüftung und Klimatechnik
- Sanitärtechnik
- Elektrotechnik
- Erneuerbare Energie
Whirlpools / Jacuzzi
Hausbau Magazin
- Baufinanzierung trotz Krise?
- Das Blockhaus
- Moderne Dämmstoffe im Vergleich
- Erker Vor- und Nachteile
- Glasflächen beim Hausbau
- Günstig ein Haus Bauen
- Mediterraner Hausbaustil
- Mehrgenerationenhaus
- Moderne Architektur
- Gartengestaltung leicht gemacht
- Traditioneller Ziegelbau
- Villa als höchster Traum
- Im Eigenheim Ruhestand geniessen
- Altbau sanieren
- Kauf einer Holzgarage
- Immobilienmakler
- Arbeitshandschuhe für den Winter
- Zuhause verschönern
- Outdoor-Plissees
- Schlafzimmer planen
- Terrassenüberdachung
- Wohngebäudeversicherung
- Zaunarten und Eigenschaften
- Hauseingang gestalten
- Der perfekte Grundriss
- Sparsamer heizen im Altbau
- Einfamilienhaus smart finanzieren
- Planung einer PV-Anlage
- Neues Haus
- Immobilienfinanzierung
- Installation einer Photovoltaikanlage
- Asbest erkennen und entfernen
- Gartenpflege im Frühling – worauf achten
- Sauna im Fokus - Wellness zuhause
- Erfolgreich vermieten
- Die perfekte Winterbekleidung
- Das Niedrigenergiehaus
- Der April und seine Stürme
- Architektonische Vielfalt
- Ökologisch und nachhaltig bauen
- Das perfekte Schlafzimmer
- Nachhaltige Energieversorgung
- Zukunftsorientiert bauen
- Nachhaltigkeit beim Hausbau
- Tiny Houses
- Wärmepumpen als nachhaltige Heizvariante
- Maßgeschneiderten Kleiderschrank
- Der richtige Baukredit
- Ratgeber für erfolgreichen Hausbau
- Haus als Altersvorsorge
Do-it-yourself Anleitungen
- Verlegeanleitung für Bodenbeläge und Parkett
- Bodenbeläge und Parkett reinigen und pflegen
- Malerarbeiten am Haus
- Garten Tipps
- Umzug und Reinigung

ᐅ Projekt Hausbau! Mauerwerk, Schallisolierung, Dämmung?

Erstellt am: 31.10.13 23:28
M
minhphuc
M
minhphuc
31.10.13 23:28
Hallo

Wir sind zurzeit in der Bauplanung und Neulinge auf diesem Gebiet.
Die meisten von euch wissen bestimmt, wie kompliziert sich der Weg bis zum Eigenheim gestalten kann. Genau deshalb brauchen wir eure Hilfe und Meinungen!

Das Grundstück, welches bebaut werden soll liegt nähe Flughafen, sodass eine gute Schallisolierung von besonderer Wichtigkeit ist. Die Schallbelastung durch den Fluglärm beträgt laut Stadt zwischen 55 - 60 dB ( siehe Anhang, orange Zone).

Kennt sich jemand mit Schallisolierung aus und kann uns einen guten Tipp geben, worauf genau zu achten ist?
Welche Baustoffe ( für Wände, und Dach) sind besonders zu empfehlen, welche eher zu meiden?

Es gibt sehr viele verschiedene Mauertypen

1. Kalksandstein + WDVS
2. Porenbeton
3. verschiedene Poroton Ziegel (T9-T7)
4. Blähton
6. Liaporziegel
7. Jasto Z Stein
8. Wandaufbau mit mehreren Schichten wie bei Fertighäusern

Viele Fertigbau Firmen werben mit neuen Passivhaus Standards und extrem guten Dämm- und Isolierwerten. Wir haben allerdings sehr viel über Schimmelbildung und Algenproblematik gelesen; besonders wegen der Entscheidung für ein Haus ohne Dachüberstand.

Ab wann ist eine sehr extreme Dämmung nicht mehr rentabel bzw. sogar problematisch?
Welchen U-wert und welche Schallschutzwerte sollte man anpeilen?

An folgende Firmen haben wir bereits Anfragen gestellt:
Grundhaus
HSE Massivhaus

Dennert Massivhaus
Jöckel Bau ( Baumeister-Gruppe )
und zwei regionale Rohbauunternehmen

Hat jemand bereits Erfahrung mit einem der Unternehmen gemacht oder kann eine Alternative empfehlen?
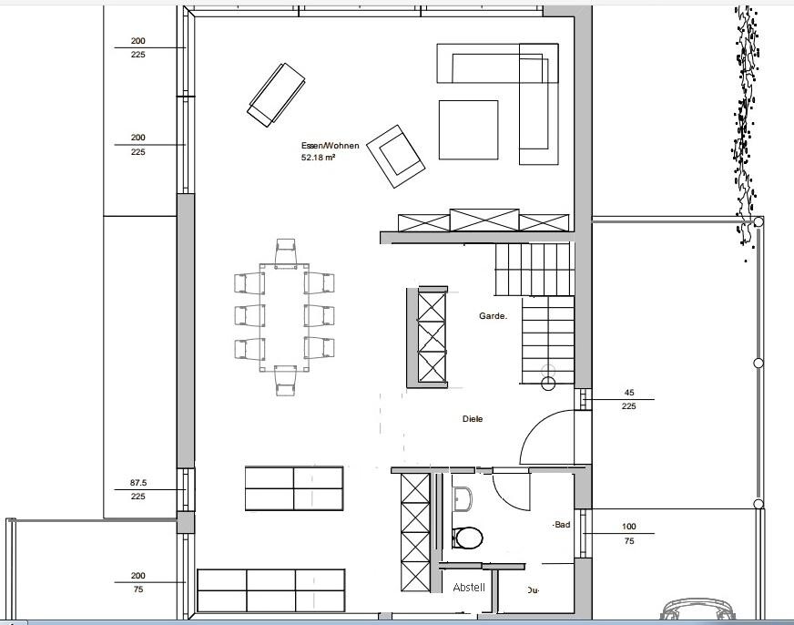
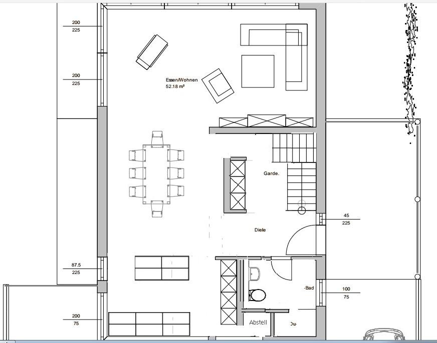
Damit ihr eine bessere Vorstellung bekommt, haben wir einen Grundriss und unseren architektonischen Wunsch beigefügt.

Wenn ihr generell Anregungen oder Vorgehensweisen habt, bitte teilt sie uns mit!
Wir sind für jeden einzelnen Ratschlag sehr dankbar

Hier noch einige Details zum Traumhaus :
Wohnfläche : 160 - 180 qm
Unterkellerung

Grundstücksgröße: 570 qm, 14,8 x 38 m
Baufenster mit 3 m Abstand zum Nachbarn liegt bei ca 8.80 x 13 m

Vielen Dank

Anzeige
Hallo minhphuc,

schau mal hier: Projekt Hausbau! Mauerwerk, Schallisolierung, Dämmung?. Da wird jeder fündig!
M
minhphuc
31.10.13 23:36


Kartenabbildung einer Stadt mit farbigen Zonen zur Lärmbelastung und Legende.


Moderne Hausfront mit großen Glasfenstern, grünem Rasen und Gehweg davor


Modernes weißes Einfamilienhaus mit spitzem Dach, Holzverkleidung, Tor und Baum im Garten.


Grundriss eines offenen Wohn- und Essbereichs mit Küche, Diele, Bad, Garderobe und Treppen.


Grundrissplan eines Hauses mit Treppenhaus und Zimmern
dennert massivhausschallisolierung