J
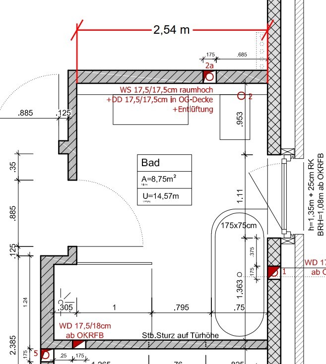
Johanna B08.09.24 22:59Hallo zusammen, ich muss sehr kurzfristig entscheiden wo die Löcher für die Spots in meinem Bad (Neubau) in die Betondecke gemacht werden sollen. Ich habe überlegt, Spots nur außen, also ca 50cm von der Wand entfernt anzubringen, weil ich glaube das es ein schöneres Licht gibt, wenn die Wand reflektiert. Die Fliesen sind dunkel anthrazit und gehen bis ca 120cm, der Rest der Wand ist weiß. Die Deckenspots an sich (Leistung, Farbtemperatur etc.) sind noch nicht entschieden. Was denkt ihr, wäre die beste Anordnung und warum? Macht meine Idee Sinn? Das Bad ist gelb markiert auf dem Foto. Habt ihr noch andere, Ideen? Es muss keine klassische Anordnung sein!


G
Gerddieter08.09.24 23:08Unser Bad hat 9qm. Wir haben 4 Deckenspots - das ist mehr als ausreichend für "hell". Harmonisches Licht ist über Spiegel und das "gemütliche" Licht in den Nischen.
GD
GD
J
Johanna B08.09.24 23:27Gerddieter schrieb:
Unser Bad hat 9qm. Wir haben 4 Deckenspots - das ist mehr als ausreichend für "hell". Harmonisches Licht ist über Spiegel und das "gemütliche" Licht in den Nischen.
GDHey GD,Und in welchem Abstand zur Wand und in welchem Abstand zueinander hast du das gemacht ?