ᐅ Planung Netzwerk fürs Einfamilienhaus 140m2
Erstellt am: 01.10.15 03:12
B
blackdog11001.10.15 03:12Ich bin derzeit in der Planungsphase für die Elektroinstallation. Ich habe mir schon einige Themen hier durchgelesen und auch schon einiges aufgeschnappt.
Ich plane ein 2 Stöckiges Einfamilienhaus (Grundrisse kommen gleich)
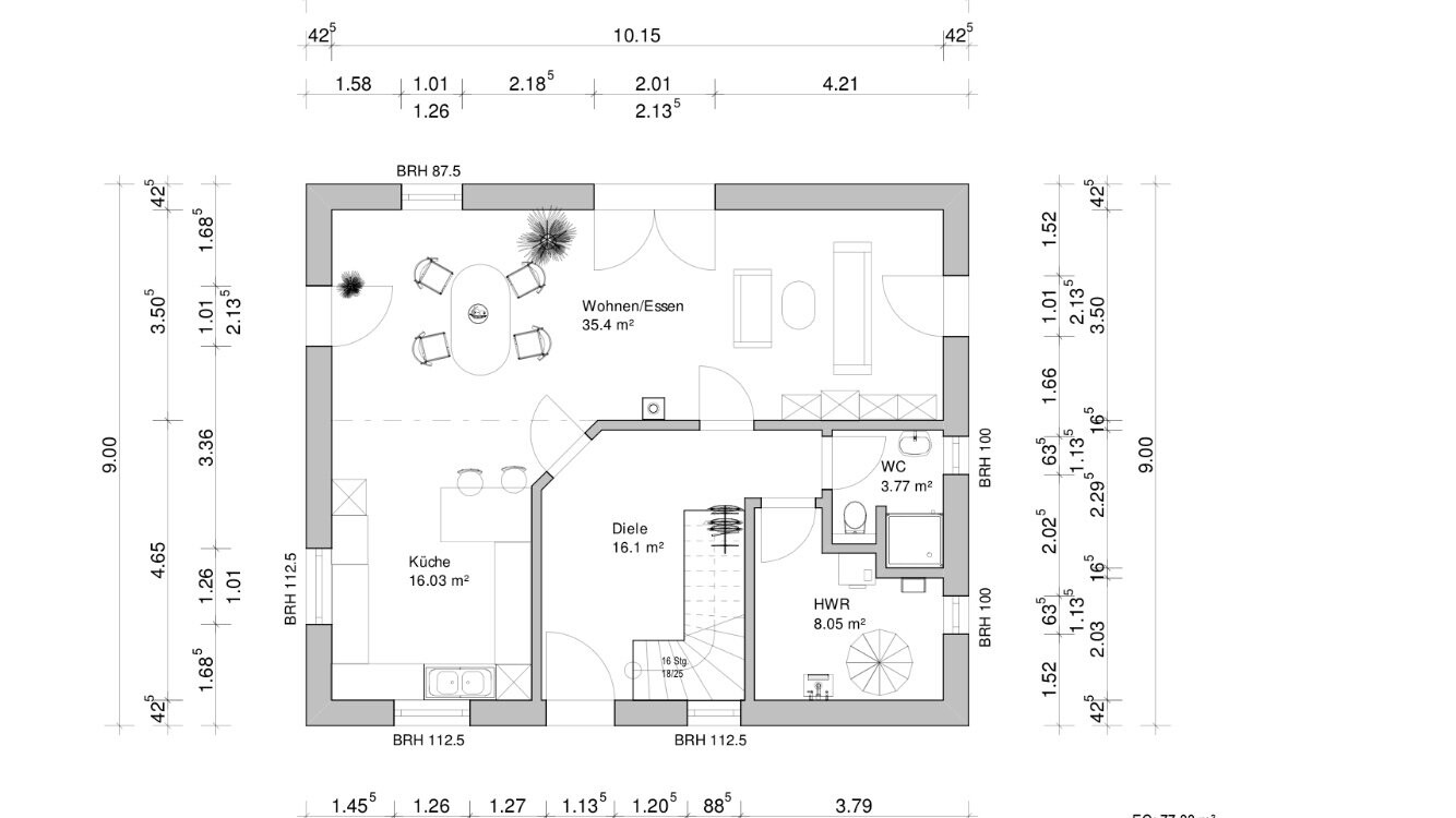
Untere Ebene
Wohnzimmer 4 Lan Dosen (Linux Sat Receiver / Hi-Fi Receiver / TV ) benötigen Internet Empfang
Küche soll ebenfalls eine Netzwerk Dose bekommen für spätere IPTV Empfang und ggf. für einen W-Lan Accesspoint, aber zu der Frage komme ich gleich noch.
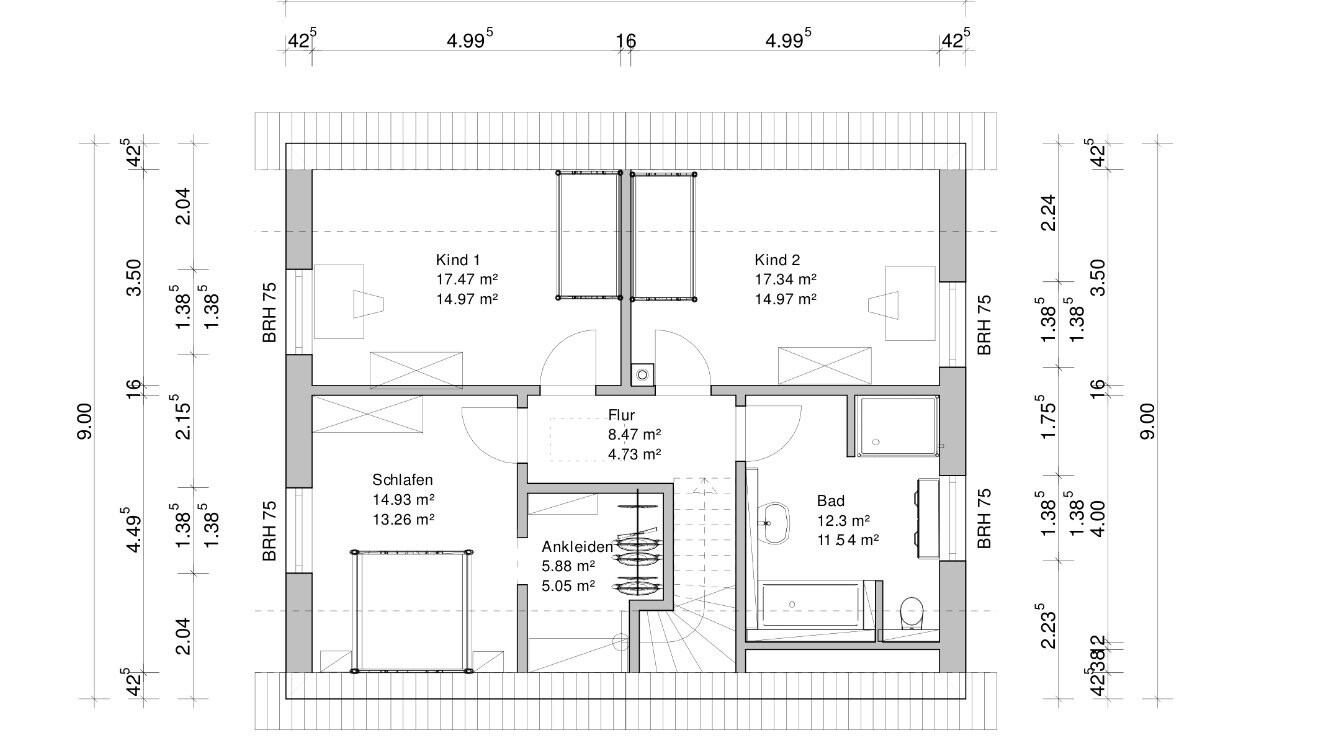
Obere Ebene
Je Kinderzimmer 1 Dose (oder lieber gleich Doppel Dose?)
Schlafzimmer 1 Dose
Diele für W-lan Accesspoint
geplant war ein kleines Patchfeld mit 16 oder 24 Steckplätzen (24 hätte dann ja noch Reserven nach oben, falls doch noch Ip Kameras für außen oder Telefone über diese Verkabelung angeschlossen werden sollen..
Sollte ich beim Patchfeld lieber mehr investieren und E-dat Module nehmen anstelle von einem einfachen LSA Patchfeld ? soll ja das Verkabeln um einiges erleichtern.
Sind die E-dat und Keystone Module eigentlich das selbe?
Ach Cat 7 Kabel würde ich nehmen mit 1200mhz
bzw zu welchen Dosen würdet ihr mir für die Verkabelung raten? E-dat oder LSA ? LSA Werkzeug hat mein Nachbar bei sich, also wäre das auch möglich
Switch würde ich dann auch ein 24fach nehmen


So jetzt Kommt die Frage der Fragen...
Ich hatte geplant eine FritzBox zuzulegen und diese entweder in den Hauswirtschaftsraum zu stellen und von dort alles sternförmich zu verteilen, oder ins Wohnzimmer und dort dann den guten W-lanempfang ausnutzen zu können.
oder wäre es sinnvoller die Fritzbox in dem Hauswirtschaftsraum zu lassen und Lieber in der Diele unten bzw in der Küche einen weiteren Accesspoint hinzustellen ?
Ich plane ein 2 Stöckiges Einfamilienhaus (Grundrisse kommen gleich)
Untere Ebene
Wohnzimmer 4 Lan Dosen (Linux Sat Receiver / Hi-Fi Receiver / TV ) benötigen Internet Empfang
Küche soll ebenfalls eine Netzwerk Dose bekommen für spätere IPTV Empfang und ggf. für einen W-Lan Accesspoint, aber zu der Frage komme ich gleich noch.
Obere Ebene
Je Kinderzimmer 1 Dose (oder lieber gleich Doppel Dose?)
Schlafzimmer 1 Dose
Diele für W-lan Accesspoint
geplant war ein kleines Patchfeld mit 16 oder 24 Steckplätzen (24 hätte dann ja noch Reserven nach oben, falls doch noch Ip Kameras für außen oder Telefone über diese Verkabelung angeschlossen werden sollen..
Sollte ich beim Patchfeld lieber mehr investieren und E-dat Module nehmen anstelle von einem einfachen LSA Patchfeld ? soll ja das Verkabeln um einiges erleichtern.
Sind die E-dat und Keystone Module eigentlich das selbe?
Ach Cat 7 Kabel würde ich nehmen mit 1200mhz
bzw zu welchen Dosen würdet ihr mir für die Verkabelung raten? E-dat oder LSA ? LSA Werkzeug hat mein Nachbar bei sich, also wäre das auch möglich
Switch würde ich dann auch ein 24fach nehmen
So jetzt Kommt die Frage der Fragen...
Ich hatte geplant eine FritzBox zuzulegen und diese entweder in den Hauswirtschaftsraum zu stellen und von dort alles sternförmich zu verteilen, oder ins Wohnzimmer und dort dann den guten W-lanempfang ausnutzen zu können.
oder wäre es sinnvoller die Fritzbox in dem Hauswirtschaftsraum zu lassen und Lieber in der Diele unten bzw in der Küche einen weiteren Accesspoint hinzustellen ?
Moin,
wo willst denn den Switch hinstellen? Der wird auch nicht gerade klein werden bei deiner Anzahl an IP-Dosen? Ich würde alles in den HAR stellen, also Router und Switch. Die beiden werden ja sowieso verbunden. Der Router sollte noch genug W-Lan Leistung für das gesamte EG haben oder baust du komplett Stahlbeton like WW2 Bunker?
wo willst denn den Switch hinstellen? Der wird auch nicht gerade klein werden bei deiner Anzahl an IP-Dosen? Ich würde alles in den HAR stellen, also Router und Switch. Die beiden werden ja sowieso verbunden. Der Router sollte noch genug W-Lan Leistung für das gesamte EG haben oder baust du komplett Stahlbeton like WW2 Bunker?
N
nordanney01.10.15 08:25Richtig, Switch + Patchpanel + Router in den Hauswirtschaftsraum.
Dosen IMMER Doppeldosen - kostet nicht mehr.
Ansonsten zur Technik: Nimm das, wofür Dein Geld reicht. Du wirst mit allen Varianten zurecht kommen. Kennst Du Dich denn mit der Verkabelung und den Anschlüssen aus? Bei uns hat der Elektriker für ganz kleines Geld die 20 Lan-Kabel aufs Patch-Panel aufgelegt und durchgemessen.
Dosen IMMER Doppeldosen - kostet nicht mehr.
Ansonsten zur Technik: Nimm das, wofür Dein Geld reicht. Du wirst mit allen Varianten zurecht kommen. Kennst Du Dich denn mit der Verkabelung und den Anschlüssen aus? Bei uns hat der Elektriker für ganz kleines Geld die 20 Lan-Kabel aufs Patch-Panel aufgelegt und durchgemessen.
Ich habe in jedem Zimmer und wirklich in jedem also auch Bad usw. eine Doppeldose mit CAT / Kabel reingelegt...
Im Wohnzimmer sind hinter dem Fernseher 2x Doppeldose und je Ecke noch mal eine Einzeldose
Im Schlafzimmer sind auch 1x Doppeldose hinter Fernseher und 1x Doppeldose am Bett
Des Weiteren sind CAT7 Kabel auf der Terrasse, an der Klingel, an der Hauswand außen beim Eingang, und auf dem Dachboden
Das Kabel kostet nicht die Welt und deswegen würde ich immer wieder überall wo man sich was mit Netzwerk vorstellen kann ein Kabel hinlegen.
24er Patchfeld+Switch und Fritzbox sind an der Wand im Hauswirtschaftsraum im EG angeschraubt...keine weiteren Accesspoints mehr nötig und ich habe auch bei den Nachbarn drumherum guten WLAN Empfang Haus ist aus Kalksandstein
Im Wohnzimmer sind hinter dem Fernseher 2x Doppeldose und je Ecke noch mal eine Einzeldose
Im Schlafzimmer sind auch 1x Doppeldose hinter Fernseher und 1x Doppeldose am Bett
Des Weiteren sind CAT7 Kabel auf der Terrasse, an der Klingel, an der Hauswand außen beim Eingang, und auf dem Dachboden
Das Kabel kostet nicht die Welt und deswegen würde ich immer wieder überall wo man sich was mit Netzwerk vorstellen kann ein Kabel hinlegen.
24er Patchfeld+Switch und Fritzbox sind an der Wand im Hauswirtschaftsraum im EG angeschraubt...keine weiteren Accesspoints mehr nötig und ich habe auch bei den Nachbarn drumherum guten WLAN Empfang Haus ist aus Kalksandstein
P
Patchwork01.10.15 12:04Hi,
Netzwerkanschlüsse kannst sicher nie genug haben, die Sinnhaftigkeit in Bad/Garage/Dachstuhl/Terrasse muss jeder selbst entscheiden - ist Letztendlich auch eine Kostenfrage.
Weniger als CAT7 auf keinen Fall und generell immer Doppeldosen. Ggf. machen im Wohnzimmer auch 2 TV-Anschlüsse Sinn (Aufnehmen und anderen Sender ansehen, ja nach Empfangssystem notwendig od. auch nicht). Manche legen auch 6 Netzwerkanschlüsse ins Wohnzimmer, hier würde ich aber eher mit einer zusätzlichen Switch arbeiten. Beim Access-Point auch an die zugehörige Steckdose denken. Ansonsten viel Spaß beim Geldausgeben ;->
Netzwerkanschlüsse kannst sicher nie genug haben, die Sinnhaftigkeit in Bad/Garage/Dachstuhl/Terrasse muss jeder selbst entscheiden - ist Letztendlich auch eine Kostenfrage.
Weniger als CAT7 auf keinen Fall und generell immer Doppeldosen. Ggf. machen im Wohnzimmer auch 2 TV-Anschlüsse Sinn (Aufnehmen und anderen Sender ansehen, ja nach Empfangssystem notwendig od. auch nicht). Manche legen auch 6 Netzwerkanschlüsse ins Wohnzimmer, hier würde ich aber eher mit einer zusätzlichen Switch arbeiten. Beim Access-Point auch an die zugehörige Steckdose denken. Ansonsten viel Spaß beim Geldausgeben ;->
S
Sebastian7901.10.15 12:18Ich hab z.B. an Accesspoints und Kameras nur eine LAN-Leitung liegen - da brauche ich einfach keine zwei Leitungen und spare mir da schon die Doppeldose - auch, wenn es dann insgesamt vielleicht 50 Euro sind, die ich spare...
AN den APs brauchst nicht unbedingt eine Steckdose - kannst ja mit Injektor machen.
AN den APs brauchst nicht unbedingt eine Steckdose - kannst ja mit Injektor machen.
Ähnliche Themen