Nachträgliche Hausverkleinerung nach Finanzierungsabschluss möglich?

4,90 Stern(e) 9 Votes
Zuletzt aktualisiert 08.10.2025
Sie befinden sich auf der Seite 7 der Diskussion zum Thema: Nachträgliche Hausverkleinerung nach Finanzierungsabschluss möglich?
>> Zum 1. Beitrag <<

S

Schwabe23

Und jetzt sind‘s plötzlich 30 % mehr, 1,3 m statt 1 m. :rolleyes:
Oder soll das eine andere Rechnung sein?
Ich vermute/befürchte, das gesamte Projekt basiert auf Schätzungen, bzw. groben Kalkulationen…
Doch hatte ich weiter vorne schon geschrieben. Da war ich zunächst nicht präzise genug. Mir ging es hier ja auch gar nicht darum ob das Einsparpotenzial plausibel ist, sondern ob ich mit dem größeren Haus in die Finanzierung gehen kann und nachträglich doch kleiner bauen. Das wurde beantwortet.
 
WilderSueden

WilderSueden

Tu dir den Gefallen und hinterfrag auch das Einsparpotenzial. Sonst stehst du in einem halben Jahr wieder bei der Bank und musst den Kredit erhöhen. Dann hat sie dich an der Angel, denn woanders hingehen ist nicht mehr
 
S

Schwabe23

Mach doch mal bitte eine komplette Rechnung auf. In welchem Landkreis baust du? Wie groß ist das Haus ursprünglich geplant, was sollte es kosten. Und dann entsprechend wie groß es jetzt ist. Bisher haben wir nur Bruchstückinformationen und die Beleihung, aber noch nicht das Gesamtbild
Tut eigentlich nichts zur Sache aber die Neugier scheint groß zu sein. Wir bauen 25 km vor Ulm. Es wird ein Holzhaus Kfw 40 mit 7,7x14,6m und 2,5 Geschossen. Hinzu kommt noch ein Doppelcarport mit zwei Abstellräumen mit 20m2, da wir ohne Keller bauen. Die Kostenberechnung ergibt 499.500€ Erstellungskosten für das Gebäude. Dazu kommen noch Architekt, Außenanlagen und Baunebenkosten. Grundstück haben wir schon aus Eigenmitteln bezahlt.

In der Kostenberechnung ist alles genau aufgeführt wie z.B. benötigte Menge Holz, Parkett, Leitungen, Heizung etc. Basierend auf einem Referenzhaus das wir kennen und dem aktuellen Kostenkennwertindex Quartal 3/2021. In dem Fetaillierungsgrad haben wir das bisher von keinem Fertighausbauer bekommen. Da das sehr aufwändig ist kann ich es ihm nachsehen die Verkleinerung prozentual abzuschätzen. Wie gesagt ich Klär das mit Ihm.
 
Hangman

Hangman

@Schwabe23 falls Du Dich dazu durchringen kannst Grundrisse einzustellen, würde ich mich sehr freuen. Ich finde diese länglichen Formen immer sehr schön, und sie tauchen hier nur selten auf. In jedem Fall viel Erfolg bei dem - sicher sehr besonderen - Projekt!
 
S

Schwabe23

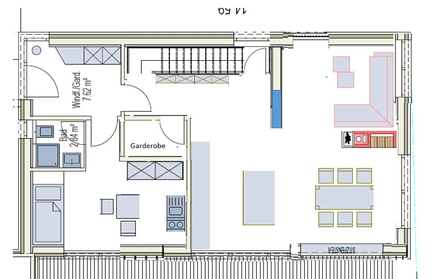
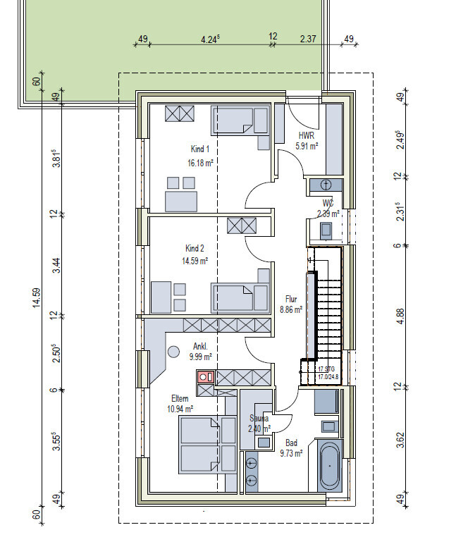
@Hangmann Hier mal der Grundriss. Vielleicht kurz zur Erklärung der Situation. Wir haben ein 679m² Grundstück in einem Neubaugebiet mit leichter Hanglage gen Westen. Wir liegen leicht unterhalb einer Bergkuppe auf der eine Landstraße verläuft. Über die Straße hinweg geht es den Berg wieder runter mit einem schönen Naturschutzgebiet und Blick zu den Alpen. Im DG ist daher unser "Keller" mit Freizeit und Arbeitszimmer vorgesehen um diese schöne Aussicht einzufangen. Dazu Abstellfläche und Heiztechnik. Gleichzeitig schützt uns das recht lange Haus vor der Geräuschkulisse der Landstraße (Ortsausgang und leider beliebt bei Motorradfahrern) wenn wir auf der Terrasse sitzen und die Abendsonne genießen. Die "Technik" außen wird dann sowas wie Schaltschrank, Wechselrichter und evtl. Batteriespeicher beinhalten. Die Einliegerwohnung wird wohl nur familienintern genutzt da unsere Eltern jeweils alleine und 100km entfernt leben. Es geht hier also um ein paar Tage Aufenthalt oder später vielleicht mal zur Pflege oder für unsere Tochter etc. Ich weiß sehr klein aber zweckmäßig. Das Ganze Haus ist inzwischen darauf ausgelegt mit möglichst wenig Baukosten auszukommen (einfaches Dach, keine Rücksprünge und wenig Zuwegung) um uns solche Herzenswünsche wie Sauna, Kamin und Sitzfenster doch noch zu ermöglichen, wenn auch nicht sofort. Zudem wollen wir das Maximum an Gartenfläche rausholen da uns das sehr wichtig ist. Wir sind absolute Draußenmenschen und es soll z.B. ein Gemüsebeet und ein Teich entstehen. Leider war hier in der Region nicht mehr Fläche für uns machbar.

Detaillierter Baugrundriss eines Hauses mit Garage, Terrasse, Küche, Essbereich und Wohnbereich.


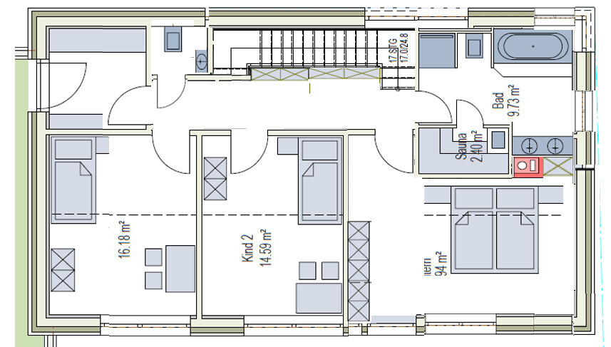
Grundriss eines Wohnhauses mit Flur, HWR, WC, Bad, Sauna, Eltern- und Kinderzimmern.


Grundriss eines Stockwerks mit drei Bühnenräumen (Bühne 1–3), Flur und Treppe.


Das Zimmer mit "Hobby/Gast" brauchen wir eigentlich nicht. Hier würde ich das Haus nochmal 1,3m rein schieben. Dadurch könnten wir das Wohnen bis in die Ecke ziehen und die Einliegerwohnung universeller/größer gestalten. Dazu müssten wir aber die Treppe weiter nach vorne holen und drehen.
Hier mal eine Skizze (mal eben in PPT zusammen retuschiert :)).

Grundriss eines Apartments: Wohnzimmer, Küche, Schlafzimmer, Bad, Garderobe, Treppe.


Grundriss einer Wohnung mit Schlafzimmer, Bad, Sauna, Küche und Treppen.


Moderne zweistöckige Backsteinvilla mit roter Tür, großen Glasfronten und Terrasse auf grünem Gelände.

Grüße
 
Zuletzt aktualisiert 08.10.2025
Im Forum Liquiditätsplanung / Finanzplanung / Zinsen gibt es 3214 Themen mit insgesamt 70961 Beiträgen


Ähnliche Themen zu Nachträgliche Hausverkleinerung nach Finanzierungsabschluss möglich?
Nr.ErgebnisBeiträge
1Grundriss für Einfamilienhaus mit 200m² mit Einliegerwohnung 75 +Keller 140m² +Garage 56m² 59
2Grundriss, Hausanordnung EFW 150m2, Keller + Einliegerwohnung - Feedback erwünscht - Seite 667
3Grundriss-Diskussion: Einfamilienhaus + Einliegerwohnung als Mehrgenerationenhaus am Nordhang - Seite 426
4Keller oder Grundstück begradigen? 43
5Einfamilienhaus bauen mit/ohne Keller bei kleinem Grundstück - Seite 765
6Grundrissoptimierung Einfamilienhaus mit Keller auf kleinem Grundstück - Seite 5178
7Bebauung Grundstück - Keller ja oder nein? 75
8Teures Grundstück + Einfamilienhaus 155 qm + Keller KFW40+, finanzierbar? - Seite 460
9Einfamilienhaus 220qm mit Keller auf 700qm Grundstück 41
10Einfamilienhaus 160m2 mit Keller, 500m2 Grundstück 108
11Detailplanung Grundriss Einfamilienhaus mit Keller und Einliegerwohnung 28
12Budget Grundstück und bauen mit Keller 21
13200m2 Einfamilienhaus für 4-5 Personen ohne Keller auf schmalem Grundstück 67
14Grundriss-Entwurf: Einfamilienhaus mit Keller; 560qm Grundstück - Seite 365
15Straße ca. 50cm über Grundstück - Auffüllen oder Keller 24
16Grundriss-Entwurf: Einfamilienhaus; mit Keller; 800qm Grundstück 10
17Sinnvolles Wohnkonzept für Keller-Einliegerwohnung 17
18Anordnung Haus und Stellplätze - Kleines Grundstück - Haus mit Einliegerwohnung - Seite 227
19Grundrisse Einfamilienhaus mit Einliegerwohnung 280 m2 auf 320m2 sympathisch kleinen Grundstück - Seite 286
20Baukosten 200m² + 30m² Dachterrasse + Keller (inkl. Garage) 20

Oben