Hallo zusammen,
ich bin neu in diesem Forum und möchte euch um Hilfe bei meiner Ikea Küche bitten.
Das Problem ist das folgende:
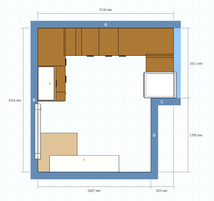
In der rechten Ecke der Küche möchte ich ein eckschrank (ME188 |Tür links| Anschlag noch nicht definiert) verbauen.
Wie Ihr wisst kommt dieser Schrank mit einer Passleiste mit ca. 7,3 cm Breite.
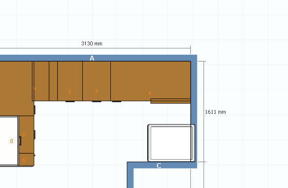
Zunächst ein Bild:

Ziel:
Wie man auf dem Bild erkennen kann ist eine Lücke zwischen dem Eckschrank Nummer 4 und dem Kühlschrank.
Diese Lücke würde ich gerne mit einem 40 cm Breiten Schrank füllen.
Nur zur Info: Die Tür des Kühlschranks öffnet nach rechts.
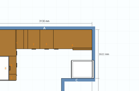
So soll es aussehen:


Wichtig: Ich habe die Breite des Kühlschranks um 7 cm reduziert, damit ich euch diesen Entwurf bauen konnte.
Problem:
Eigentlich ist die Wand mit einer Länge von 161 cm lang genug vorausgesetzt ich kürze die Passleiste, die bei dem Eckschrank mitgeliefert wird stark ca. 1cm bzw. ich lasse sie komplett weg. Gibt es ein Mindestmaß, dass ich dringen wahren muss?
Umsetzung und daraus resultierende Fragen:
Ich wollte den 40er Schrank mit einer Tür Anschlag rechts ausstatten und den Eckschrank mit Anschlag links versehen.
Hierbei weiß ich nicht ob das geht? Diese Frage übergebe ich an euch.
Beide Schränke erhalten als Griff: Vienna in der Ausführung kurz (153mm), weshalb ich keine Störung/ Kollision durch die Griffe erwarten.
Ist meine Idee umsetzbar?
Über Feedback freue ich mich.
Danke voraus.
ich bin neu in diesem Forum und möchte euch um Hilfe bei meiner Ikea Küche bitten.
Das Problem ist das folgende:
In der rechten Ecke der Küche möchte ich ein eckschrank (ME188 |Tür links| Anschlag noch nicht definiert) verbauen.
Wie Ihr wisst kommt dieser Schrank mit einer Passleiste mit ca. 7,3 cm Breite.
Zunächst ein Bild:
Ziel:
Wie man auf dem Bild erkennen kann ist eine Lücke zwischen dem Eckschrank Nummer 4 und dem Kühlschrank.
Diese Lücke würde ich gerne mit einem 40 cm Breiten Schrank füllen.
Nur zur Info: Die Tür des Kühlschranks öffnet nach rechts.
So soll es aussehen:
Wichtig: Ich habe die Breite des Kühlschranks um 7 cm reduziert, damit ich euch diesen Entwurf bauen konnte.
Problem:
Eigentlich ist die Wand mit einer Länge von 161 cm lang genug vorausgesetzt ich kürze die Passleiste, die bei dem Eckschrank mitgeliefert wird stark ca. 1cm bzw. ich lasse sie komplett weg. Gibt es ein Mindestmaß, dass ich dringen wahren muss?
Umsetzung und daraus resultierende Fragen:
Ich wollte den 40er Schrank mit einer Tür Anschlag rechts ausstatten und den Eckschrank mit Anschlag links versehen.
Hierbei weiß ich nicht ob das geht? Diese Frage übergebe ich an euch.
Beide Schränke erhalten als Griff: Vienna in der Ausführung kurz (153mm), weshalb ich keine Störung/ Kollision durch die Griffe erwarten.
Ist meine Idee umsetzbar?
Über Feedback freue ich mich.
Danke voraus.
E
EinrichtungsNiete08.04.15 20:33Hallo!
Die Passleiste hat zwei Funktionen:
1.: Sie sorgt dafür, dass der Abstand passend im Raster für Oberschränke ist, sonst wären sie seitlich versetzt.
2.: Sie sorgt dafür, dass auch Schubladen montiert werden können, ohne dass die Front gegen den Griff schlägt, das gilt natürlich auch für Türen.
Sind die Wände in der Ecke wirklich exakt rechtwinklig?
Das ist meistens nicht der Fall, und dann passt dein Kühlschrank nicht mehr in die Lücke, auch wenn du die Passleiste so weit wie möglich kürzt...
Ich würde die Lücke nicht so auf press vollstopfen wollen.
Und allgemein würde ich eher auf Auszüge als auf Türen setzen, so kommst du leichter an die Sachen in den Schränken.
MfG
Die Passleiste hat zwei Funktionen:
1.: Sie sorgt dafür, dass der Abstand passend im Raster für Oberschränke ist, sonst wären sie seitlich versetzt.
2.: Sie sorgt dafür, dass auch Schubladen montiert werden können, ohne dass die Front gegen den Griff schlägt, das gilt natürlich auch für Türen.
Sind die Wände in der Ecke wirklich exakt rechtwinklig?
Das ist meistens nicht der Fall, und dann passt dein Kühlschrank nicht mehr in die Lücke, auch wenn du die Passleiste so weit wie möglich kürzt...
Ich würde die Lücke nicht so auf press vollstopfen wollen.
Und allgemein würde ich eher auf Auszüge als auf Türen setzen, so kommst du leichter an die Sachen in den Schränken.
MfG
Besten Dank für die Antwort.
Deine Hinweise machen Sinn. Die Zimmerecke ist höchstunwahrscheinlich rechtwinklig.
Die Küchenbauer kommen am Samstag, dann wird es sich rausstellen .
Nach längerem Nachdenken habe ich mich entschlossen von der Stopf-Lösung abzusehen.
Vielen Dank für den Hinweis mit dem Oberschrank.
Deine Hinweise machen Sinn. Die Zimmerecke ist höchstunwahrscheinlich rechtwinklig.
Die Küchenbauer kommen am Samstag, dann wird es sich rausstellen .
Nach längerem Nachdenken habe ich mich entschlossen von der Stopf-Lösung abzusehen.
Vielen Dank für den Hinweis mit dem Oberschrank.
Ähnliche Themen