Mindestgrundstücksgröße, nur Bauland oder auch "Wiese"

4,70 Stern(e) 3 Votes
Zuletzt aktualisiert 19.10.2025
Sie befinden sich auf der Seite 2 der Diskussion zum Thema: Mindestgrundstücksgröße, nur Bauland oder auch "Wiese"
>> Zum 1. Beitrag <<

emer

emer

Ich finde da aber nichts von 1000qm. Oder hast du die das ausgerechnet, damit bei einer Grundflächenzahl von 0,25 dein gewünschtes Haus darauf passt?
 
N

Neubau_heute?

Mindestgrundstücksgröße bei uns in der Gemeinde ist 1000qm, so geplant um den "dörflichen Charakter zu erhalten"...steht irgendwo rechts oben im B Plan
 
N

Neubau_heute?

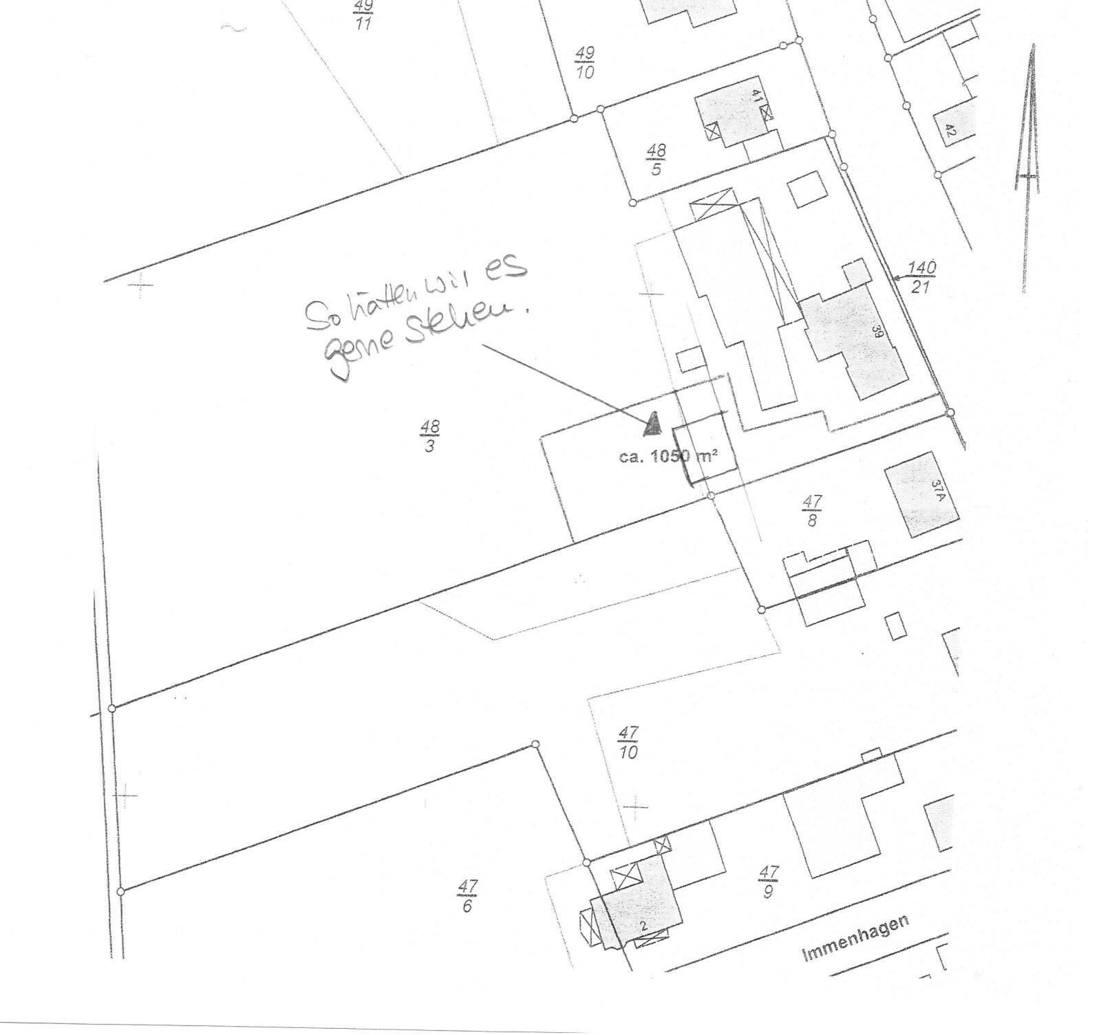
Der Betrieb hat eine Größe von ca 2750 qm, die im B Plan liegen (und eben etliche qm aussedrum). Von diesen 2750 qm wollen wir 550 plus 450 Wiese dahinter. Der Betrieb soll ja erhalten bleiben, die vorhandenen Gebäude werden noch genutzt.
Irgendwie krieg ich das Foto nicht hochgeladen, da kann man es relativ gut erkennen.

Lageplan eines Baugebiets mit Parzellen, Gebäuden und Notiz ca. 1050 m².
 
emer

emer

Ja vollkommen klar. Auf dem Bebauungsplan geht hervor, dass das Stück was wörtlich dein Garten werden soll und sogar ein Stück vom Haus außerhalb des B-Plans liegt. Wem gehört das Land / Flurstück außerhalb? (Also das Riesen Areal westlich des Hofes?

Dir Grundlage für die Ablehnung ist aber damit geklärt. Es ist kein freigegebenes Bauland mehr.
 
Zuletzt aktualisiert 19.10.2025
Im Forum Bauland / Baurecht / Baugenehmigung / Verträge gibt es 3157 Themen mit insgesamt 42849 Beiträgen
Oben