M
Manuela600713.02.13 13:08Hallo liebe Forum-Mitglieder!
Ich bitte um Vorschläge, Tipps, Kritik und Lob!! ;-)
Was könnte ich besser machen? Was gefällt euch gut??
Bin mit den Fensteranordnungen und Größen noch nicht zufrieden....könnt ihr mir hier helfen?
Bin um jeden Tipp oder Skizzen von Änderungen dankbar!
Viele Grüße
Manuela





Ich bitte um Vorschläge, Tipps, Kritik und Lob!! ;-)
Was könnte ich besser machen? Was gefällt euch gut??
Bin mit den Fensteranordnungen und Größen noch nicht zufrieden....könnt ihr mir hier helfen?
Bin um jeden Tipp oder Skizzen von Änderungen dankbar!
Viele Grüße
Manuela
M
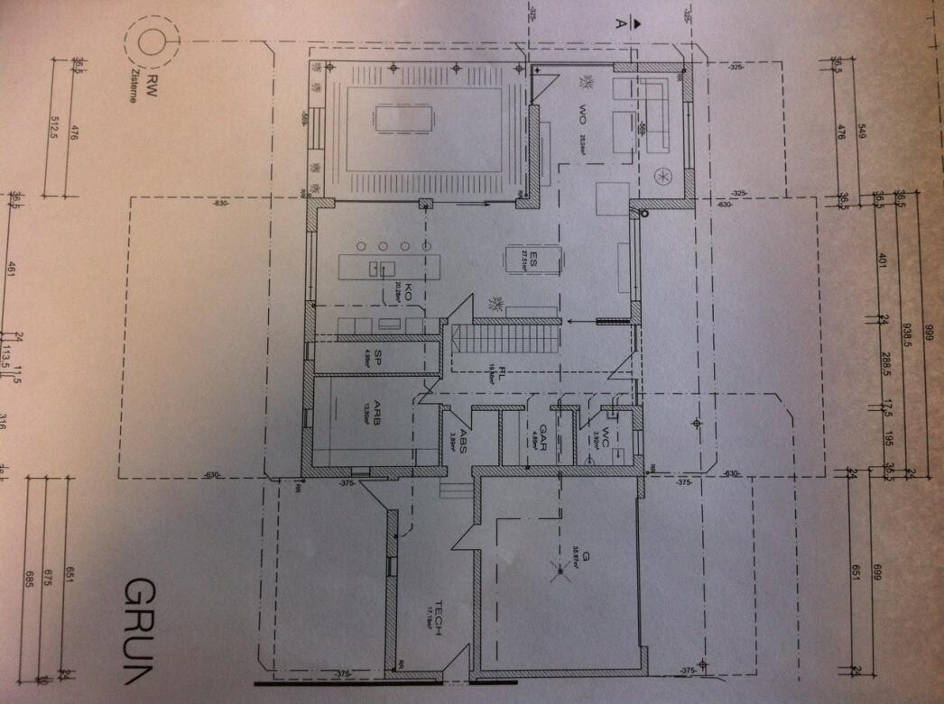
Manuela600713.02.13 13:10kurze Erklärung:
EG: Küche und Arbeitszimmer sind im Süden, Garage im Osten,
Eingang ist im Norden und Esszimmer und Wohnzimmer im Westen!!!
OG: Elternschlafzimmer ist im Norden , Ankleide im Westen
Kinderbad im Süden
EG: Küche und Arbeitszimmer sind im Süden, Garage im Osten,
Eingang ist im Norden und Esszimmer und Wohnzimmer im Westen!!!
OG: Elternschlafzimmer ist im Norden , Ankleide im Westen
Kinderbad im Süden
Warum habt Ihr Eure Nutzräume gen Westen und die Wohnräume gen Norden geplant?
Mir würde das gar nicht behagen. Im Sommer bratet Ihr in den Bädern und beim Kochen, während im Winter die Wohnräume kaum Licht bekommen.
Habt Ihr Euch dabei was gedacht? Eine Erklärung wäre für eine Kritik sehr hilfreich 🙂
Mir würde das gar nicht behagen. Im Sommer bratet Ihr in den Bädern und beim Kochen, während im Winter die Wohnräume kaum Licht bekommen.
Habt Ihr Euch dabei was gedacht? Eine Erklärung wäre für eine Kritik sehr hilfreich 🙂