Ich glaube auch nicht, dass der Abstand von 3 Metern bei einem III-Geschösser im konservativen Bayern reicht. Ich geh mit meiner Schätzung mal auf 4,50.
War das nicht in BY so, dass man als Nachbar Einwand gg eine Bamassnahme verlauten lassen kann?
Ich würde es diesem Nachbarn nicht übel nehmen
War das nicht in BY so, dass man als Nachbar Einwand gg eine Bamassnahme verlauten lassen kann?
Ich würde es diesem Nachbarn nicht übel nehmen
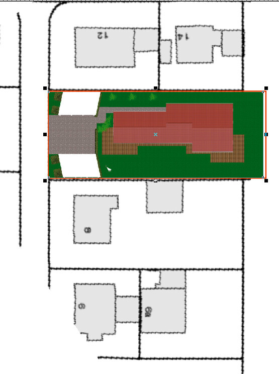
@ypg .. ja, sehe ich auch als Problem. Deshalb habe ich gleich noch mal das Grundstückdesign in den Nachbarschaftsplan eingepasst

Roter Rahmen ist jetzt 20x50 ... die Grundrisslänge wäre da aber tatsächlich nur 45 m, wenn die Breite stimmt.
Es wäre also sinnvoll, mal die wirklich genauen Maße vom Grundstück herauszufinden.
Hier auch noch mal der gesamte Plan
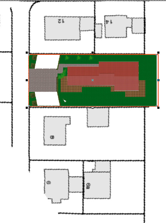
Roter Rahmen ist jetzt 20x50 ... die Grundrisslänge wäre da aber tatsächlich nur 45 m, wenn die Breite stimmt.
Es wäre also sinnvoll, mal die wirklich genauen Maße vom Grundstück herauszufinden.
Hier auch noch mal der gesamte Plan
kbt09 schrieb:
was meinst du mit Block?Entschuldigung, da habe ich Dich in die Irre geführt: ich meinte nicht in der Einliegerwohnung, die ist hier ja oben, sondern im EG planlinks kbt09 schrieb:
Und, was heißt [...] in der Konsequenz?Die populären "3 m" Grenzabstand sind ja kein fixes Minimum, sondern eigentlich geht die Regel ja noch weiter: "... oder halbe Höhe" (= 1/2 h). Ist das Haus also z.B. 8,30 m hoch, wären demnach 4,15 m Grenzabstand angesagt.kbt09 schrieb:
Mich hatte vor allem interessiert, mit welchen Flächen man tatsächlich zu ca. 2x200 und 1x80 qm kommt.Dieser Frage hast Du ja nun ein Gesicht gegeben kbt09 schrieb:
Außerdem habe ich im Kopf immer wieder gewälzt, welchen Platz man in einer Tiefgarage für 6 Autos mit Zuweg brauchen würde und welche Zufahrt das braucht.Das hätte fast soviel Zufahrt gebraucht wie oben für alle Plätze langt, und zudem den Hof praktisch vollunterkellert.https://www.instagram.com/11antgmxde/
https://www.linkedin.com/company/bauen-jetzt/
kbt09 schrieb:
da befindet sich die Kochfeldzeile mit abekofferter Deckenhaubeich meinte das da:https://www.instagram.com/11antgmxde/
https://www.linkedin.com/company/bauen-jetzt/