Lichtplanung EG - Strahler , Verbesserungsvorschläge ?

4,50 Stern(e) 6 Votes
Zuletzt aktualisiert 03.01.2026
Sie befinden sich auf der Seite 3 der Diskussion zum Thema: Lichtplanung EG - Strahler , Verbesserungsvorschläge ?
>> Zum 1. Beitrag <<

H

hampshire

Anfangs wollten wir das gerne , aber dann haben wir gelesen, dass das nichts bringt , also dass Lichter von der Decke eher kontraproduktiv dafür sind, bei den Aufnahmen werden immer Softboxen benutzt.

Werde vielleicht noch eine Reihe hinter Insel planen.
?Du planst mehr Deckenlichter weil die nichts bringen?
Bitte weihe mich in diese Logik ein.
 
T

tumaa

Update:

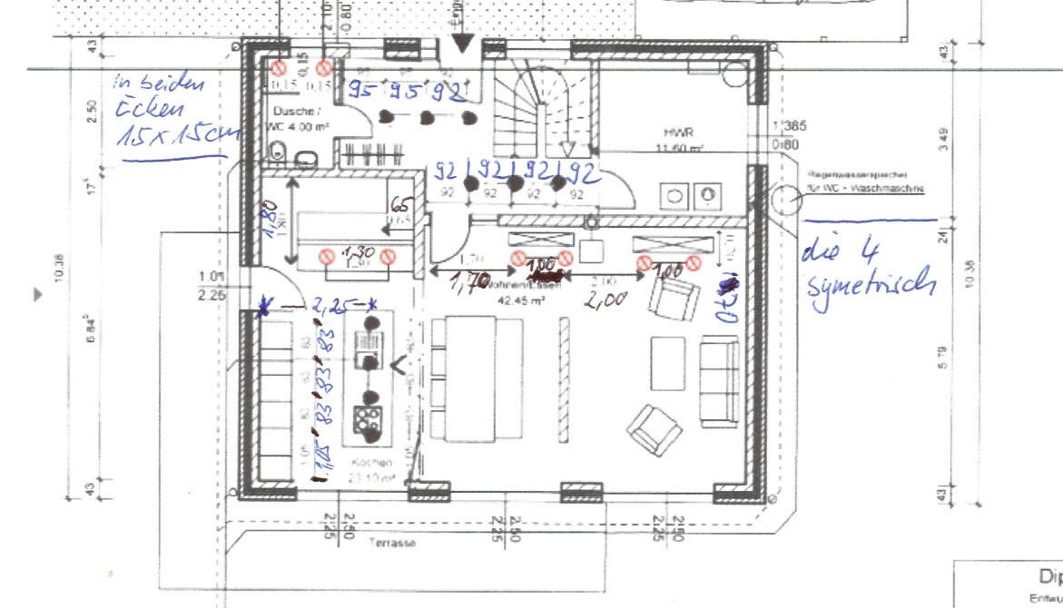
Bekam nun diesen Vorschlag, was die Strahler betrifft. Gefällt mir viel besser.

PC-Ecke: eine Arbeitsleuchte
Kochbereich: Lichtleise bei den Schränken
Essbereich: Pendelleuchte + 2 Wandleuchten
Wohnbereich: 2 Einbaustrahler + Stehlampe + 2 Wandleuchten
Gäste-Wc: 2 Strahler im Duschbereich + Spiegellicht


Im Flur bleibt es dabei erst mal, würdet ihr die 3 zum Hauswirtschaftsraum rausnehmen und dafür eine Wandleuchte planen ?


Gruß

Grundriss eines Wohnhauses: Küche, Esszimmer, Wohnzimmer, Bad, Treppe, Terrasse.
 
H

hampshire

Die Reduktion der Menge der Spots zugunsten des Einsatzes anderer Leuchten wird der Behaglichkeit im Raum guttun.
 
T

tumaa

Lieber einmal zu viel fragen , als kein mal .

Der Vorschlag kam von einem Lichtplaner , war ein Blitzvorschlag .

Sehr nett von ihm gewesen , danke euch auch.

Gruss
 
Zuletzt aktualisiert 03.01.2026
Im Forum Elektrik / Elektroplanung gibt es 832 Themen mit insgesamt 13638 Beiträgen


Ähnliche Themen zu Lichtplanung EG - Strahler , Verbesserungsvorschläge ?
Nr.ErgebnisBeiträge
1Beleuchtung in Diele und Küche: Deckeneinbau-Strahler benötigt? - Seite 319
2Ikea Inreda Strahler an Stromnetz anschließen 11

Oben