Hallo liebe Forengemeinde,
wir haben vor kurzem mit dem Bau unseres Einfamilienhaus angefangen. Geplant ist ein modernes Architektenhaus mit KNX als Standard für die Haussteuerung. Es gibt die Etagen UG, EG, OG und STG, wobei wegen der Statik fast ausschließlich Beton verbaut werden muss.
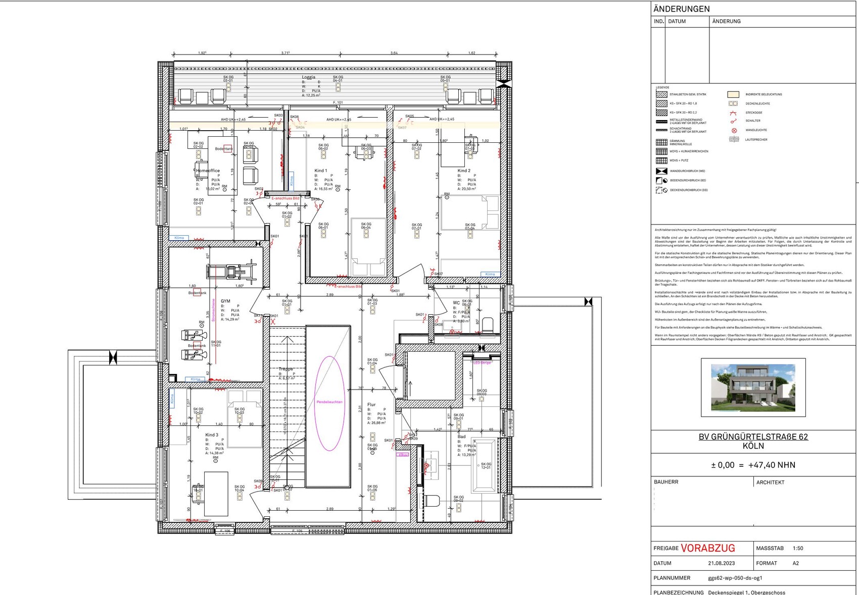
Wegen der Betonbauweise müssen möglichst sämtliche UP-Positionen für Taster, Steckdosen, Lampen und Kabelauslässe schon genau feststehen, da nachträgliche Anpassungen sehr aufwändig werden. In den meisten Etagen wird es Abhangdecken geben, wobei im UG vieles als Aufputz installiert wird. Im OG wird es aber keine Abhangdecke geben, so dass für das OG neben den Wänden auch der Deckenspiegel schon vor der Betonierung feststehen sollte.
Beigefügt findet Ihr den Grundrissplan des OG mit den vorgeschlagenen Positionen für Leuchten im Deckenspiegel und Wänden des Architekten. In der zweiten Version habe ich diverse Anpassungen vorgenommen, aber als Laie bin ich mir jedoch unsicher, was die Planung der Leuchten und UP-einbauten angeht.
Kann man die Planung so installieren lassen oder gibt es speziell im Deckenspiegel Dinge, die dringend angepasst werden sollten?
Viel Glück
Stefan


wir haben vor kurzem mit dem Bau unseres Einfamilienhaus angefangen. Geplant ist ein modernes Architektenhaus mit KNX als Standard für die Haussteuerung. Es gibt die Etagen UG, EG, OG und STG, wobei wegen der Statik fast ausschließlich Beton verbaut werden muss.
Wegen der Betonbauweise müssen möglichst sämtliche UP-Positionen für Taster, Steckdosen, Lampen und Kabelauslässe schon genau feststehen, da nachträgliche Anpassungen sehr aufwändig werden. In den meisten Etagen wird es Abhangdecken geben, wobei im UG vieles als Aufputz installiert wird. Im OG wird es aber keine Abhangdecke geben, so dass für das OG neben den Wänden auch der Deckenspiegel schon vor der Betonierung feststehen sollte.
Beigefügt findet Ihr den Grundrissplan des OG mit den vorgeschlagenen Positionen für Leuchten im Deckenspiegel und Wänden des Architekten. In der zweiten Version habe ich diverse Anpassungen vorgenommen, aber als Laie bin ich mir jedoch unsicher, was die Planung der Leuchten und UP-einbauten angeht.
Kann man die Planung so installieren lassen oder gibt es speziell im Deckenspiegel Dinge, die dringend angepasst werden sollten?
Viel Glück
Stefan
N
NatureSys30.08.23 10:53Ich kann nicht klar zuordnen, was vom Architekten kommt und was von Dir. Abee mein erster Eindruck ist, dass ihr beide keine Lichtexperten seid.
Eine unser besten Investitionen beim Hausbau war zu einem Lichtplaner zu gehen. Dort hatten wir zwei mal ca. 2 Stunden mit dem gemeinsam und hatten dann ein sehr gutes Konzept mit exakten Positionen der Decken- und der Wandlampen im Grundriss. Würde wir immer wieder so machen.
Eine unser besten Investitionen beim Hausbau war zu einem Lichtplaner zu gehen. Dort hatten wir zwei mal ca. 2 Stunden mit dem gemeinsam und hatten dann ein sehr gutes Konzept mit exakten Positionen der Decken- und der Wandlampen im Grundriss. Würde wir immer wieder so machen.
Klingel schrieb:
Geplant ist ein modernes Architektenhaus mit KNX als Standard für die Haussteuerung. Es gibt die Etagen UG, EG, OG und STG,Und die anderen Stockwerke bleiben dunkel ?NatureSys schrieb:
Eine unser besten Investitionen beim Hausbau war zu einem Lichtplaner zu gehen.Leider gibt es auf diesem Markt viele Anbieter, die mit "Lampeneinkaufslisteningrundrisseschreiber" treffender bezeichnet wären. Ich würde auch den Hausautomationsplaner mindestens mit einbeziehen.https://www.instagram.com/11antgmxde/
https://www.linkedin.com/company/bauen-jetzt/
R
RotorMotor30.08.23 11:47Ich würde vielleicht erstmal die Adresse raus nehmen.
Ansonsten, wo kommen die Präsenzmelder hin?
Ansonsten, wo kommen die Präsenzmelder hin?
Wir waren auch bei einem Lichtplaner und auch wir würden das wieder so machen.
Eines muss aber klar sein, Strahler die bestimmte Sequenzen oder Möbel inszenieren brauchen diese Grundlage. Sobald hier in vielen Jahren was geändert wird, passts nicht mehr.
Denke bei diesem Projekt lohnen sich die pasr wenigen Euro einer vernünftigen Planung immer.
@rick2018 hat garantiert hilfreiche Tipps dazu
Eines muss aber klar sein, Strahler die bestimmte Sequenzen oder Möbel inszenieren brauchen diese Grundlage. Sobald hier in vielen Jahren was geändert wird, passts nicht mehr.
Denke bei diesem Projekt lohnen sich die pasr wenigen Euro einer vernünftigen Planung immer.
@rick2018 hat garantiert hilfreiche Tipps dazu
Ähnliche Themen