ᐅ Küchenplanung - Meinungen und Kritik
Erstellt am: 17.05.20 12:15
Hallo liebe Leute,
ich würde mich über kritische Rückmeldungen zu meiner Küchenplanung freuen.
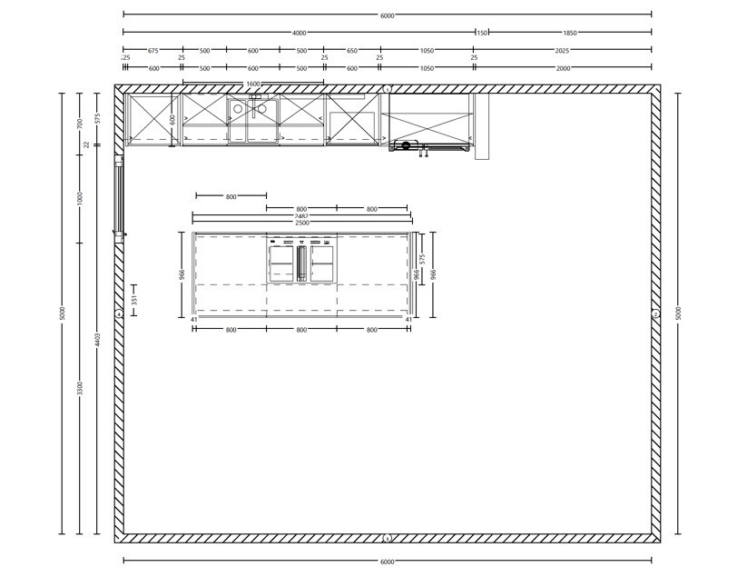
Anbei gerenderte Bilder und der Grundriss des Wohn- /Essbereichs.
Ziel war eine moderne Küche ohne High End Anspruch für einen 2-Personen-Haushalt.
Die Farbe ist lichtgrau und die Arbeitsplatte Granit in wolkigem anthrazit (matt).
Meinen Side By Side Kühlschrank möchte ich auf jeden Fall behalten, auch wenn der nächste wohl ein French Door wird.
Die Spülmaschine ist links unten unter dem Backofen (mit Dampfgarer).
Die Insel ist 2,00 x 1,00 m breit. Der Abstand zwischen Küchenzeile und Insel ca. 1m.
In der Planungsskizze sind wir noch von einer breiteren Insel ausgegangen, das haben wir vor Ort dann umgeplant, weil es wohl zu mächtig würde.







ich würde mich über kritische Rückmeldungen zu meiner Küchenplanung freuen.
Anbei gerenderte Bilder und der Grundriss des Wohn- /Essbereichs.
Ziel war eine moderne Küche ohne High End Anspruch für einen 2-Personen-Haushalt.
Die Farbe ist lichtgrau und die Arbeitsplatte Granit in wolkigem anthrazit (matt).
Meinen Side By Side Kühlschrank möchte ich auf jeden Fall behalten, auch wenn der nächste wohl ein French Door wird.
Die Spülmaschine ist links unten unter dem Backofen (mit Dampfgarer).
Die Insel ist 2,00 x 1,00 m breit. Der Abstand zwischen Küchenzeile und Insel ca. 1m.
In der Planungsskizze sind wir noch von einer breiteren Insel ausgegangen, das haben wir vor Ort dann umgeplant, weil es wohl zu mächtig würde.
B
bauenmk202017.05.20 12:26sind die gerenderten Bilder aus dem Küchenstudio? Wie tief ist dein Side By Side Kühlschrank (auf dem Bild sieht es so aus, dass dieser ca. 60cm tief ist - wie die Küchenmöbel)?
Ansonsten sieht das okay aus aber ich bin auch kein Küchenfachmann. Für mich wäre an der Küchenzeile zu wenig Stellfläche. Ist das ein integrierter Vollautomat (neber dem Kühlschrank)?
Ansonsten sieht das okay aus aber ich bin auch kein Küchenfachmann. Für mich wäre an der Küchenzeile zu wenig Stellfläche. Ist das ein integrierter Vollautomat (neber dem Kühlschrank)?
S
saralina8717.05.20 12:27Hi
Unsere geplante Küche sieht recht ähnlich aus, allerdings ist die Insel bei uns an der Wand angeschlossen (Platzgründe).
Mir gefällt der Stil gut, was ich allerdings noch ändern würde:
Die Oberschränke haben eine andere Tiefe als die hochschränke(*), was logisch ist weil man sonst mit dem Kopf nicht ans Spülbecken kommt - das gefiel mir aber nicht. Wir haben das deshalb so gelöst:

Es sind im Endeffekt nur die Hochschränke geteilt, eine Reihe weiter eingerückt als die andere. Kommt mir "ruhiger" vor. Das Regalbrett finde ich toll um noch ein bisschen Platz für Hübsches zu haben.
Unsere geplante Küche sieht recht ähnlich aus, allerdings ist die Insel bei uns an der Wand angeschlossen (Platzgründe).
Mir gefällt der Stil gut, was ich allerdings noch ändern würde:
Die Oberschränke haben eine andere Tiefe als die hochschränke(*), was logisch ist weil man sonst mit dem Kopf nicht ans Spülbecken kommt - das gefiel mir aber nicht. Wir haben das deshalb so gelöst:
Es sind im Endeffekt nur die Hochschränke geteilt, eine Reihe weiter eingerückt als die andere. Kommt mir "ruhiger" vor. Das Regalbrett finde ich toll um noch ein bisschen Platz für Hübsches zu haben.
bauenmk2020 schrieb:
sind die gerenderten Bilder aus dem Küchenstudio? Japp.
bauenmk2020 schrieb:
Wie tief ist dein Side By Side Kühlschrank (auf dem Bild sieht es so aus, dass dieser ca. 60cm tief ist - wie die Küchenmöbel)?Nee, das ist schlecht eingearbeitet. Der ist Standard. 71cm tief.
Konkret stelle ich mir folgende Fragen:
- ist die Küche harmonisch im Verhältnis zum gesamten Raum?
- ist die Aufteilung der Auszüge sinnvoll?
- fehlen schmale Auszüge, wie sie heutzutage modern sind (Olivenöl usw.)?
Auf der Rückseite der Insel hatte ich über (Milch-) Glastüren nachgedacht, das würde allerdings die durchgängige halbhohe Linie zerstören, die den Block auflockert.
P.S. Es handelt sich um eine ProNorm Y-Line.
- ist die Küche harmonisch im Verhältnis zum gesamten Raum?
- ist die Aufteilung der Auszüge sinnvoll?
- fehlen schmale Auszüge, wie sie heutzutage modern sind (Olivenöl usw.)?
Auf der Rückseite der Insel hatte ich über (Milch-) Glastüren nachgedacht, das würde allerdings die durchgängige halbhohe Linie zerstören, die den Block auflockert.
P.S. Es handelt sich um eine ProNorm Y-Line.
S
saralina8717.05.20 13:32Mal blöd gefragt - wieso ist denn Insel so ausgerichtet, wie sie ist?
Das wirkt ja fast als wäre sie dazu da den Fernseher im Blick zu haben...?
Das wirkt ja fast als wäre sie dazu da den Fernseher im Blick zu haben...?
Ähnliche Themen