Guten Tag zusammen,
aktuell sind wir in der Planungsphase unserer Küche (eigentlich soll die Planung der Küche erst im Januar sein, jedoch könnten wir uns hier erste Ideen/Hilfestellung holen).
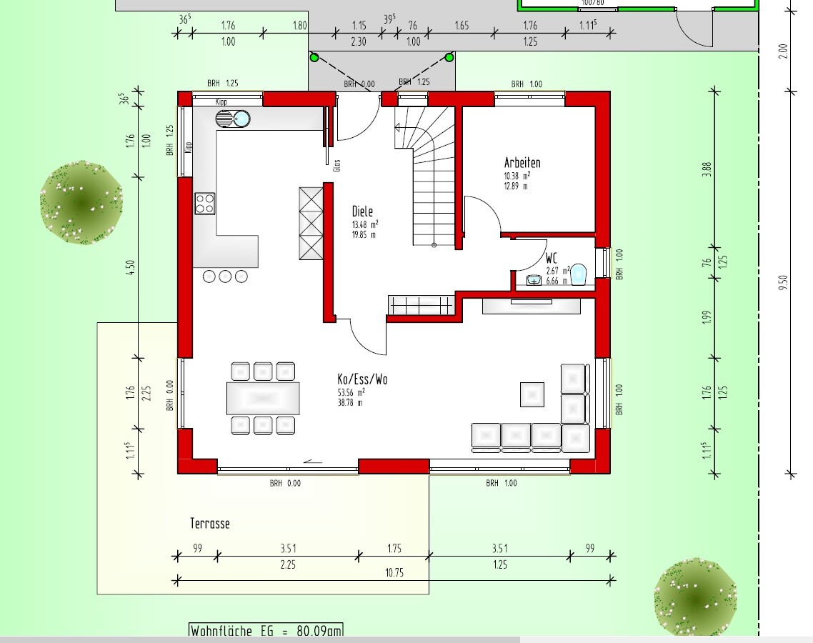
Anbei findet ihr unseren Grundriss. Die Vorstellungen unserer Küche sind ähnlich der bereits eingezeichneten Küche.
Wir wissen, dass die Küche sehr sehr groß ist, bzw. etwas schlauchförmig. An Platz sollte es definitiv nicht mangeln.
Hier ein paar "wichtige" Maße zur besseren Übersicht:
Wandbreite: 3,40m
Durchgangsbreite von Arbeitsplattenkante bis zur Hochschranktüre ca. 2,10m.
Wandtiefe von Fenster im Norden bis zur Wohnzimmertüre ca. 5,50m.
Durchgangsbreite von "Insel" bis zum hochschrank ca. 1,10m.
Das maßliche Verhältnis, von dem immer wieder gesprochen wird, ist bei dieser Küche nicht gegeben. Nichtsdestotrotz interessieren uns die "Laufwege", bzw. "wie weit ich von meinem Backofen zum Esszimmertisch, oder wie weit ich von meinem Sofa zum Kühlschrank laufen muss" nicht wirklich.
Wir möchten einfach so gut es geht unsere Küche in diesen dafür vorgesehenen Raum integrieren.
Gemäß Zeichnung hatten wir uns überlegt den Schenkel mit der "Insel" noch weiter nach unten zu ziehen, um so noch mehr Arbeitsfläche zu generieren (dafür die Insel nicht so lang, dafür etwas tiefer - so dass wir mehr Durchgangsbreite von der Insel bis zum Hochschrank generieren).
Dinge die definitiv "so bleiben sollen":
- Spüle bleibt vor dem Fenster, somit: Geschirrspüler soll neben der Spüle sein - somit nicht in einem Hochschrank integriert sein.
- Backofen kann in einem Hochschrank auf der rechten Seite integriert sein - daneben dann der Kühlschrank und noch ein Apothekerschrank.
- Der Herd soll definitiv an der Wand sein - nicht im Inselbereich
Was meint ihr? Lässt sich da was schönes planen? Stauraum und sehr viel Arbeitsfläche was wir unheimlich lieben wäre ja vorhanden 🙂
Speisekammer ist nicht enthalten! Somit sollte auch ausreichend Platz vorhanden sein.

aktuell sind wir in der Planungsphase unserer Küche (eigentlich soll die Planung der Küche erst im Januar sein, jedoch könnten wir uns hier erste Ideen/Hilfestellung holen).
Anbei findet ihr unseren Grundriss. Die Vorstellungen unserer Küche sind ähnlich der bereits eingezeichneten Küche.
Wir wissen, dass die Küche sehr sehr groß ist, bzw. etwas schlauchförmig. An Platz sollte es definitiv nicht mangeln.
Hier ein paar "wichtige" Maße zur besseren Übersicht:
Wandbreite: 3,40m
Durchgangsbreite von Arbeitsplattenkante bis zur Hochschranktüre ca. 2,10m.
Wandtiefe von Fenster im Norden bis zur Wohnzimmertüre ca. 5,50m.
Durchgangsbreite von "Insel" bis zum hochschrank ca. 1,10m.
Das maßliche Verhältnis, von dem immer wieder gesprochen wird, ist bei dieser Küche nicht gegeben. Nichtsdestotrotz interessieren uns die "Laufwege", bzw. "wie weit ich von meinem Backofen zum Esszimmertisch, oder wie weit ich von meinem Sofa zum Kühlschrank laufen muss" nicht wirklich.
Wir möchten einfach so gut es geht unsere Küche in diesen dafür vorgesehenen Raum integrieren.
Gemäß Zeichnung hatten wir uns überlegt den Schenkel mit der "Insel" noch weiter nach unten zu ziehen, um so noch mehr Arbeitsfläche zu generieren (dafür die Insel nicht so lang, dafür etwas tiefer - so dass wir mehr Durchgangsbreite von der Insel bis zum Hochschrank generieren).
Dinge die definitiv "so bleiben sollen":
- Spüle bleibt vor dem Fenster, somit: Geschirrspüler soll neben der Spüle sein - somit nicht in einem Hochschrank integriert sein.
- Backofen kann in einem Hochschrank auf der rechten Seite integriert sein - daneben dann der Kühlschrank und noch ein Apothekerschrank.
- Der Herd soll definitiv an der Wand sein - nicht im Inselbereich
Was meint ihr? Lässt sich da was schönes planen? Stauraum und sehr viel Arbeitsfläche was wir unheimlich lieben wäre ja vorhanden 🙂
Speisekammer ist nicht enthalten! Somit sollte auch ausreichend Platz vorhanden sein.
Anzeige
Hallo exto1791,
schau mal hier: Küchenplanung - Einfamilienhaus - erste Ansätze. Da wird jeder fündig!
schau mal hier: Küchenplanung - Einfamilienhaus - erste Ansätze. Da wird jeder fündig!
N
nordanney16.11.20 20:39Schau dich hier im Forum weiter um.
https://www.hausbau-forum.de/forums/kuechenplanung-und-kuechenbau.54/
Hier sind sehr viele Küchenprofis unterwegs!
Besonders groß ist die Küche allerdings nicht. Da bleiben nicht viele Möglichkeiten. Wobei ich persönlich zwingend den Durchgang vom Flur zur Küche schließen würde
https://www.hausbau-forum.de/forums/kuechenplanung-und-kuechenbau.54/
Hier sind sehr viele Küchenprofis unterwegs!
Besonders groß ist die Küche allerdings nicht. Da bleiben nicht viele Möglichkeiten. Wobei ich persönlich zwingend den Durchgang vom Flur zur Küche schließen würde
Ähnliche Themen