ᐅ Kontrollierte Wohnraumlüftungs-Planung / Installation in Eigenleistung
Erstellt am: 28.06.23 12:57
L
LostWolfIm Zusammenhang mit meinem Kernsanierungsprojekt (BJ‘61) soll in das Gebäude auch eine Kontrollierte-Wohnraumlüftung-Anlage montiert werden.
Da der Einbau im Bestand immer eine Herausforderung darstellt versuche ich gerade selbst, die Lüftungsrohre möglichst unauffällig in der Rippendecke unterzubringen. Angefragte Betriebe wollten hier größtenteils lieber auf eine Aufputzmontage setzten, was mich dazu bewegt hat dies jetzt selbst umzusetzen.


Auf der Light&Building Messe im letzten Jahr bin ich auf den Hersteller Helios gekommen.
Leider ist die Visitenkarte im Trubel der Sanierung untergekommen.
Daher meine erste Frage: Hat wer einen möglichen Kontakt zu Helios bei dem ich meine Planung einreichen kann und noch einmal prüfend darüber geschaut wird?
Nun zum Vorhaben:
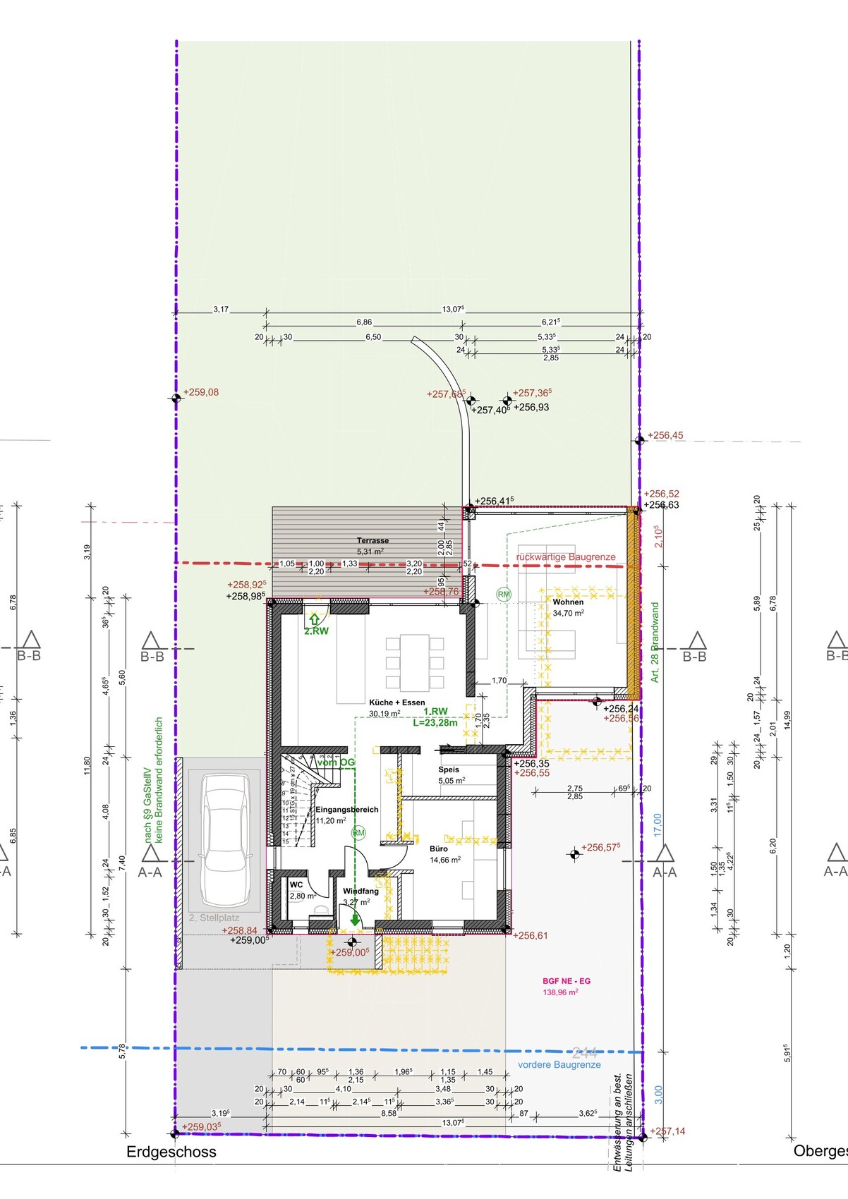
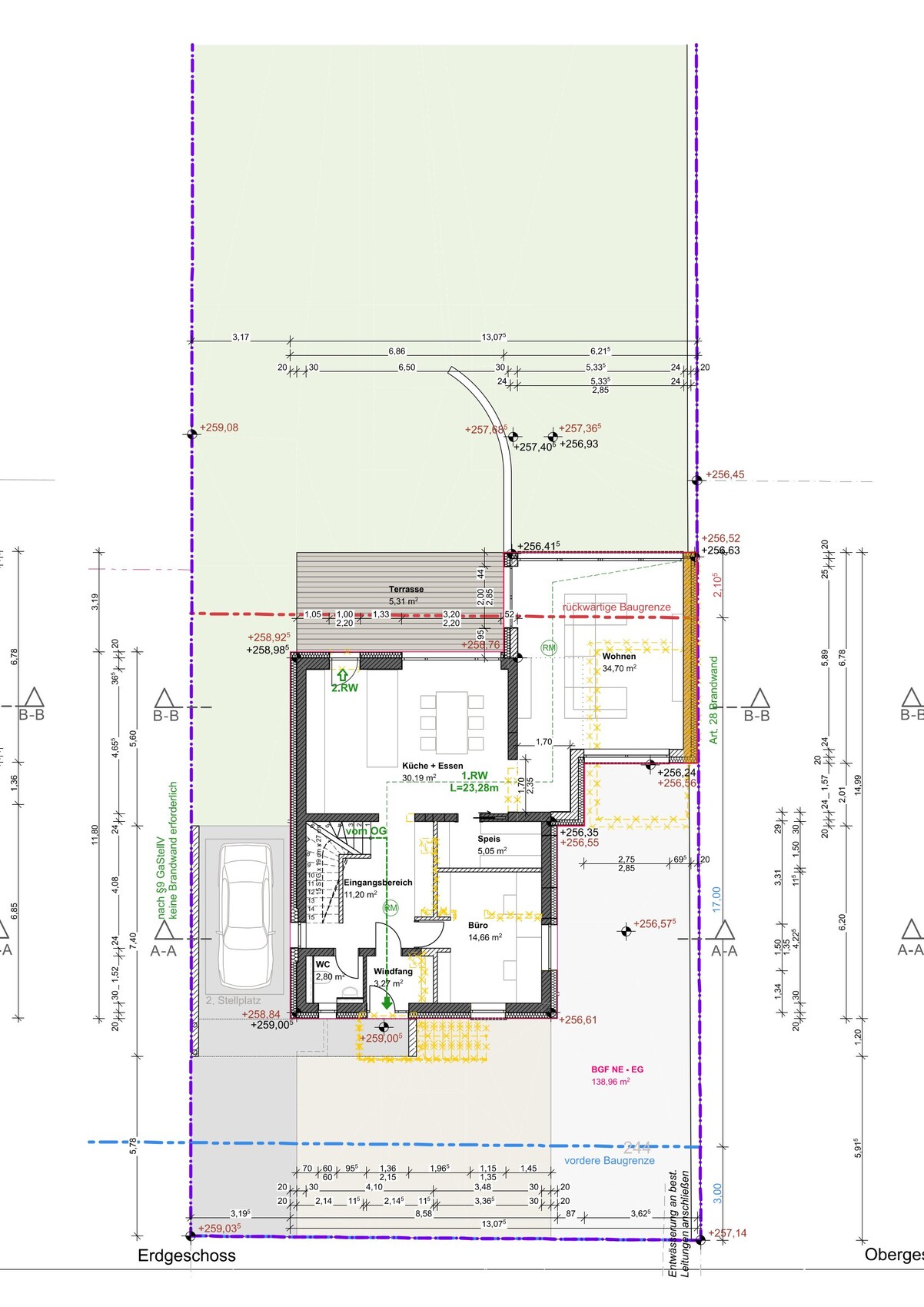
Geplant ist die Kontrollierte-Wohnraumlüftung-Anlage im Dachboden zu installieren.
Dies erfolgt in einem frostgesicherten Bereich.
Die Luftrohre zu den Ventilen wird hier in der Dämmung der Obergeschossdecke (Dachbodenfußboden) verlegt.
Die Raumventile von Helios sind auf einen Volumenstrom von bis zu 60m²/h ausgelegt, da diese mit zwei Rohren (zu je 30m³/h) angefahren werden können.
Da ich aber recht häufig gelesen habe das man bei Ventilen nicht über 40m³/h gehen soll, um den Geräuschpegel niedrig zu halten, habe ich in den Räumen wo mehr als 30m³/h Volumenstrom benötigen zwei Ventile vorgesehen (pro Rohr immer nur ein Ventil).



Zur Einregelung habe ich aber noch folgende Fragen:
Diese ist ja im Handbuch der Kontrollierte-Wohnraumlüftung recht gut beschrieben.
-Hierfür ist ein Differenzdruckmessgerät nötig -> könnt ihr mir ein günstiges, dennoch gutes Gerät empfehlen? Wie stelle ich die Messöffnungen am besten her und dichte diese danach wieder ab?
-Wie stelle ich das individuelle Luftvolumen der Ventile ein?
Dies ist ja durch auf und zudrehen regelbar, aber wie stelle ich sicher das der errechnete Wert auch eingestellt ist?
Kann auch wer etwas zur generellen Planung (per Kontrollierte-Wohnraumlüftung-easyplan) sagen?
Passt dies so, oder fällt etwas auf? (Die Rohre für die Außenluft [über das Dach] sind noch nicht enthalten)

Da der Einbau im Bestand immer eine Herausforderung darstellt versuche ich gerade selbst, die Lüftungsrohre möglichst unauffällig in der Rippendecke unterzubringen. Angefragte Betriebe wollten hier größtenteils lieber auf eine Aufputzmontage setzten, was mich dazu bewegt hat dies jetzt selbst umzusetzen.
Auf der Light&Building Messe im letzten Jahr bin ich auf den Hersteller Helios gekommen.
Leider ist die Visitenkarte im Trubel der Sanierung untergekommen.
Daher meine erste Frage: Hat wer einen möglichen Kontakt zu Helios bei dem ich meine Planung einreichen kann und noch einmal prüfend darüber geschaut wird?
Nun zum Vorhaben:
Geplant ist die Kontrollierte-Wohnraumlüftung-Anlage im Dachboden zu installieren.
Dies erfolgt in einem frostgesicherten Bereich.
Die Luftrohre zu den Ventilen wird hier in der Dämmung der Obergeschossdecke (Dachbodenfußboden) verlegt.
Die Raumventile von Helios sind auf einen Volumenstrom von bis zu 60m²/h ausgelegt, da diese mit zwei Rohren (zu je 30m³/h) angefahren werden können.
Da ich aber recht häufig gelesen habe das man bei Ventilen nicht über 40m³/h gehen soll, um den Geräuschpegel niedrig zu halten, habe ich in den Räumen wo mehr als 30m³/h Volumenstrom benötigen zwei Ventile vorgesehen (pro Rohr immer nur ein Ventil).
Zur Einregelung habe ich aber noch folgende Fragen:
Diese ist ja im Handbuch der Kontrollierte-Wohnraumlüftung recht gut beschrieben.
-Hierfür ist ein Differenzdruckmessgerät nötig -> könnt ihr mir ein günstiges, dennoch gutes Gerät empfehlen? Wie stelle ich die Messöffnungen am besten her und dichte diese danach wieder ab?
-Wie stelle ich das individuelle Luftvolumen der Ventile ein?
Dies ist ja durch auf und zudrehen regelbar, aber wie stelle ich sicher das der errechnete Wert auch eingestellt ist?
Kann auch wer etwas zur generellen Planung (per Kontrollierte-Wohnraumlüftung-easyplan) sagen?
Passt dies so, oder fällt etwas auf? (Die Rohre für die Außenluft [über das Dach] sind noch nicht enthalten)
R
RotorMotor28.06.23 13:09Wie gehst du denn mit den Rohren durch Balken und co.?
R
RotorMotor28.06.23 13:16Die Abluft über den WCs finde ich sehr nah an der Wand.
In der Küche könnte die Abluft weiter oben sein?
Braucht die Abstellkammer unten keine Abluft?
In der Küche könnte die Abluft weiter oben sein?
Braucht die Abstellkammer unten keine Abluft?
RotorMotor schrieb:
Die Abluft über den WCs finde ich sehr nah an der Wand.In den WCs werde ich das Ventil in die Wand (Vorbauwand) installieren.RotorMotor schrieb:
In der Küche könnte die Abluft weiter oben sein?Nein, durch die Führung der Rohre in der Wand, bin ich im EG bei der Küche/EZ leider stark gebunden was die Platzierung angeht.RotorMotor schrieb:
Braucht die Abstellkammer unten keine Abluft?Dachte ich könnte mir diesen kleinen Raum sparen, da dort ebenfalls die Rohrführung sehr aufwendig wäre.Der Zugang ist eine Schiebetüre, die ja eh nicht so richtig dicht ist und auch mehrmals am tag geöffnet wird.
Ähnliche Themen