S
Steffen8019.04.17 16:56Evolith schrieb:
Wir werden Homematic verbauen. Allerdings da sehr Schmalspur. Nur Rollos und Licht. Lässt sich super erweitern und auch etwas für den kleinen Geldbeutel. Dazu kommt, dass es recht einfach verbaut werden können soll. Also im Verhältnis zu KNX glaub sagte unser Elektriker.Größter Knackpunkt an homematic ist..das elv scheinbar den Bereich wired sterben lässt find ich shr schade und war einer der Hauptgründe gegen homematic..
So ich könnte noch den Elektriker doch von meinen KNX Projekt überzeugen und nun ist er Bereit alles, KNX "Like" zu verkabeln:
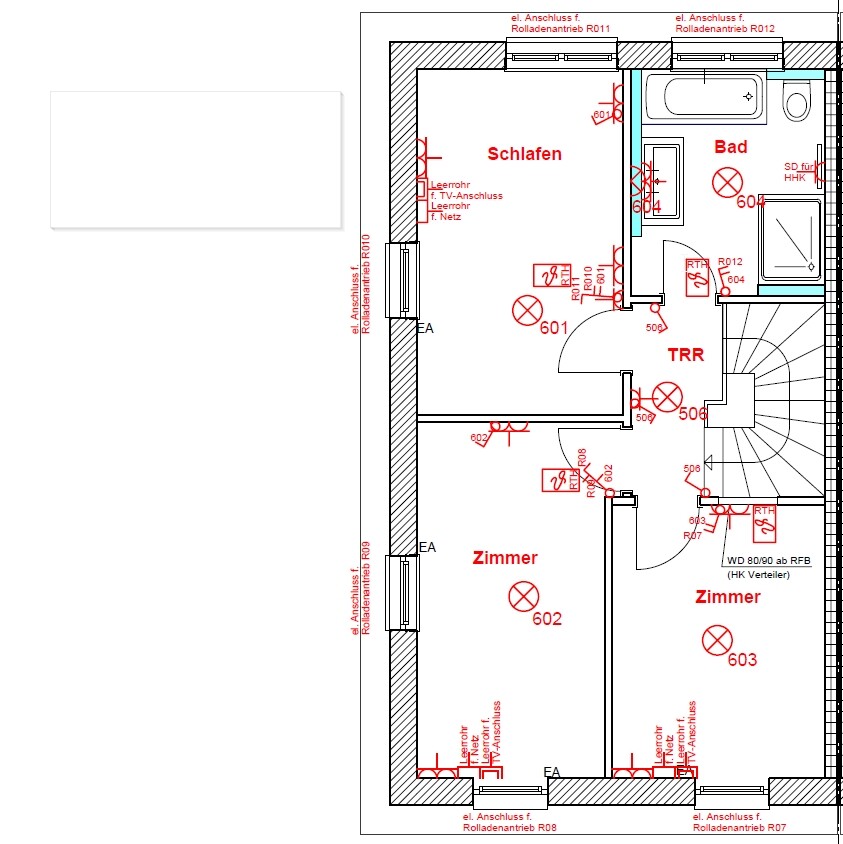
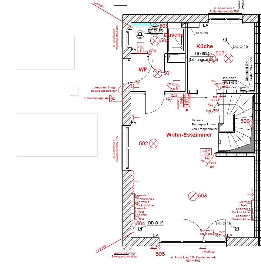
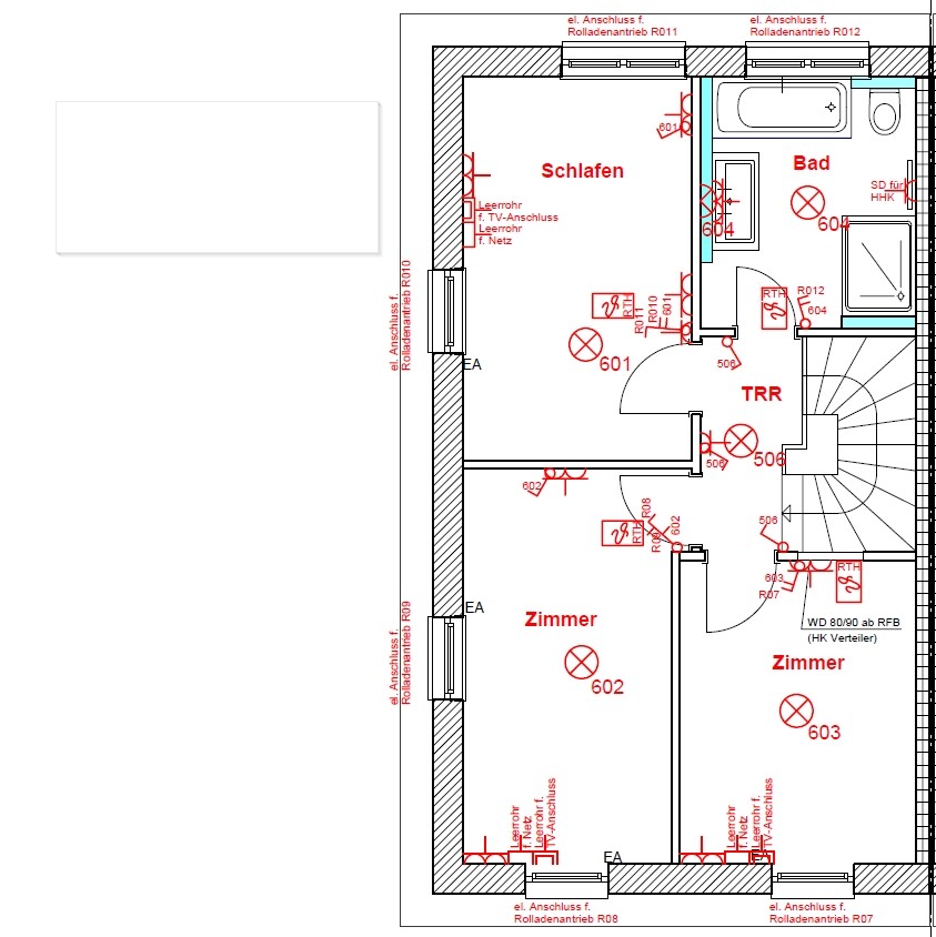
Taster, Aktoren, BM und Verbraucher (24 Lichtauslässen, ca. 18 Steckdosen, 12 Rollos...ect), Siehe bitte Auflistung!
Das Programmieren (ETS Inside) werde ich dann übernehmen.
Das ganze sollte um die 7500€ kosten.
Was haltet ihr davon?

Taster, Aktoren, BM und Verbraucher (24 Lichtauslässen, ca. 18 Steckdosen, 12 Rollos...ect), Siehe bitte Auflistung!
Das Programmieren (ETS Inside) werde ich dann übernehmen.
Das ganze sollte um die 7500€ kosten.
Was haltet ihr davon?
Wieso alle Schaltaktoren mit Strommessung? Ich würde min. einen 12er und 8er ohne Messung machen und stattdessen nen einfachen 20er-Schaltaktor nehmen. Sollten paar 100€ Einsparung bringen.
Für was brauchst du so absurd viele Schalter bei KNX? Hingegen NUR 5 Bewegungsmelder?
Wieso eigentlich Bewegungsmelder und nicht Präsenzmelder?
Da stimmt für mich die Relation absolut nicht und lässt vermuten, dass man trotz Bus eher konventionell denkt.
Ich würde in jedem Raum min. einen PM planen und zumindest mit Kabel und Dose vorbereiten. Das Ding ist in Nullkommanix nachgerüstet, sollte das Budget jetzt nicht dafür da sein.
Dafür die Schalter Drastisch senken, nur Mut
Wie sieht es mit Fensterkontakten aus?
Für was brauchst du so absurd viele Schalter bei KNX? Hingegen NUR 5 Bewegungsmelder?
Wieso eigentlich Bewegungsmelder und nicht Präsenzmelder?
Da stimmt für mich die Relation absolut nicht und lässt vermuten, dass man trotz Bus eher konventionell denkt.
Ich würde in jedem Raum min. einen PM planen und zumindest mit Kabel und Dose vorbereiten. Das Ding ist in Nullkommanix nachgerüstet, sollte das Budget jetzt nicht dafür da sein.
Dafür die Schalter Drastisch senken, nur Mut
Wie sieht es mit Fensterkontakten aus?
Er hat ja nur drei Aktoren geplant...da fällt die Strommessung ja kaum ins Gewicht. Dafür bekommt man aber einen echten Mehrwert an Funktionen.
Bei den Tastern muss ich zustimmen, das ist viel zu viel...ich nutze von meinen 8 auch etwa nur die Hälfte.
PM's in jedem Zimmer ist Geschmacksache.
Bei den Tastern muss ich zustimmen, das ist viel zu viel...ich nutze von meinen 8 auch etwa nur die Hälfte.
PM's in jedem Zimmer ist Geschmacksache.
Ähnliche Themen