Hausbau - Ratgeber
Bauherrenhilfe
- Bauherrenhilfe vor Vertragsabschluss
-- Warum einen unabhängigen Baubetreuer?
-- Vertragsgrundlagen
-- Bausumme
-- Zahlungsplan zur Kostenkontrolle
-- Pflichten des Bauherren vor Vertragsabschluss
-- Unterlagen beim Hausbau vor Vertragsabschluss
- Bauherrenhilfe nach Vertragsabschluss
-- Bauantrag bei Behörden
-- Bau-Genehmigungsverfahren bei Baubehörden
-- Bauspezifische Versicherungen
-- Bauzeitenplan
-- Baubeginn - die Letzten Pflichten der Bauherrschaft
- Bauherrenhilfe während der Bauzeit
- Gewährleistungsansprüche
- Bauabnahme
Baufinanzierung
- Baufinanzierung - Allgemeine Fragen
- Kreditarten
- Kredit-Konditionen
- Bausparen
- Staatliche Förderungen
- Verkehrswert
- Haushaltsrechnung und Bonität
Hausbau Planung
- Haustypen
- Hausbau Vorbereitungsarbeiten
- Das Baugrundstück
- Baugrund beim Hausbau
- Baurecht
- Gebäudeschutz
- Erdarbeiten und Wasserhaltung
- Stützmauern
- Einfriedung
- Untergeschoss
- Kanalisation
- Tragende Elemente
- Nichttragende Innenwände
- Fundation / Fundament
- Deckenkonstruktionen
- Dächer
- Kaminanlagen
- Treppen Rampen Leitern
- Dachbeläge und Spengler
- Fenster
- Sonnen und Wetterschutz
- Aussenputze
- Einbauten, Küchen, Türen
- Bodenbeläge und Unterlagsböden
- Parkett
- Gips, Wand, Decke
Haustechnik und Energie
- Heiztechnik
- Lüftung und Klimatechnik
- Sanitärtechnik
- Elektrotechnik
- Erneuerbare Energie
Whirlpools / Jacuzzi
Hausbau Magazin
- Baufinanzierung trotz Krise?
- Das Blockhaus
- Moderne Dämmstoffe im Vergleich
- Erker Vor- und Nachteile
- Glasflächen beim Hausbau
- Günstig ein Haus Bauen
- Mediterraner Hausbaustil
- Mehrgenerationenhaus
- Moderne Architektur
- Gartengestaltung leicht gemacht
- Traditioneller Ziegelbau
- Villa als höchster Traum
- Im Eigenheim Ruhestand geniessen
- Altbau sanieren
- Kauf einer Holzgarage
- Immobilienmakler
- Arbeitshandschuhe für den Winter
- Zuhause verschönern
- Outdoor-Plissees
- Schlafzimmer planen
- Terrassenüberdachung
- Wohngebäudeversicherung
- Zaunarten und Eigenschaften
- Hauseingang gestalten
- Der perfekte Grundriss
- Sparsamer heizen im Altbau
- Einfamilienhaus smart finanzieren
- Planung einer PV-Anlage
- Neues Haus
- Immobilienfinanzierung
- Installation einer Photovoltaikanlage
- Asbest erkennen und entfernen
- Gartenpflege im Frühling – worauf achten
- Sauna im Fokus - Wellness zuhause
- Erfolgreich vermieten
- Die perfekte Winterbekleidung
- Das Niedrigenergiehaus
- Der April und seine Stürme
- Architektonische Vielfalt
- Ökologisch und nachhaltig bauen
- Das perfekte Schlafzimmer
- Nachhaltige Energieversorgung
- Zukunftsorientiert bauen
- Nachhaltigkeit beim Hausbau
- Tiny Houses
- Wärmepumpen als nachhaltige Heizvariante
- Maßgeschneiderten Kleiderschrank
- Der richtige Baukredit
- Ratgeber für erfolgreichen Hausbau
- Haus als Altersvorsorge
Do-it-yourself Anleitungen
- Verlegeanleitung für Bodenbeläge und Parkett
- Bodenbeläge und Parkett reinigen und pflegen
- Malerarbeiten am Haus
- Garten Tipps
- Umzug und Reinigung

ᐅ Ich habe Probleme mit meinem Grundriss

Erstellt am: 15.05.23 23:27
H
Hannes-
H
Hannes-
16.05.23 07:41
11ant schrieb:

Ach, gleich mehrere Architekten. Und jetzt darf die Community die Kastanien aus dem Feuer holen - aber selbstverständlich ohne mehr Einblick als "nötig". Ein bißchen mehr Wertschätzung wäre nett, als so einen Einzelgrundriß hinzuwerfen. Wenigstens ist der synoptisch, aber das Ganze erfaßt man daraus dennoch nicht. Ein Siedlungshäuschen wird an den Geldbeutel der neuen Besitzer angepaßt, das läßt sich immerhin herauslesen.
Hallo 11ant,
mit mehreren Architekten meine ich meine Architektin mit Partner. Wir versuchen das Gebäude unseren Bedürfnis anzupassen. Daran finde ich nichts verwerfliches. In unserer Region war und ist es leider fast unmöglich eine Immobilie zu erwerben.
Daher war dieses Objekt nun mal vorhanden und wir finden es gut.
Architektenzeichnung: modernes Haus mit Front- und Seitenansicht, Hanglage, Garten und Carport.

Zweigeschossiges Wohnhaus mit Terrasse, Carport und Hanglage – Architekturzeichnung.

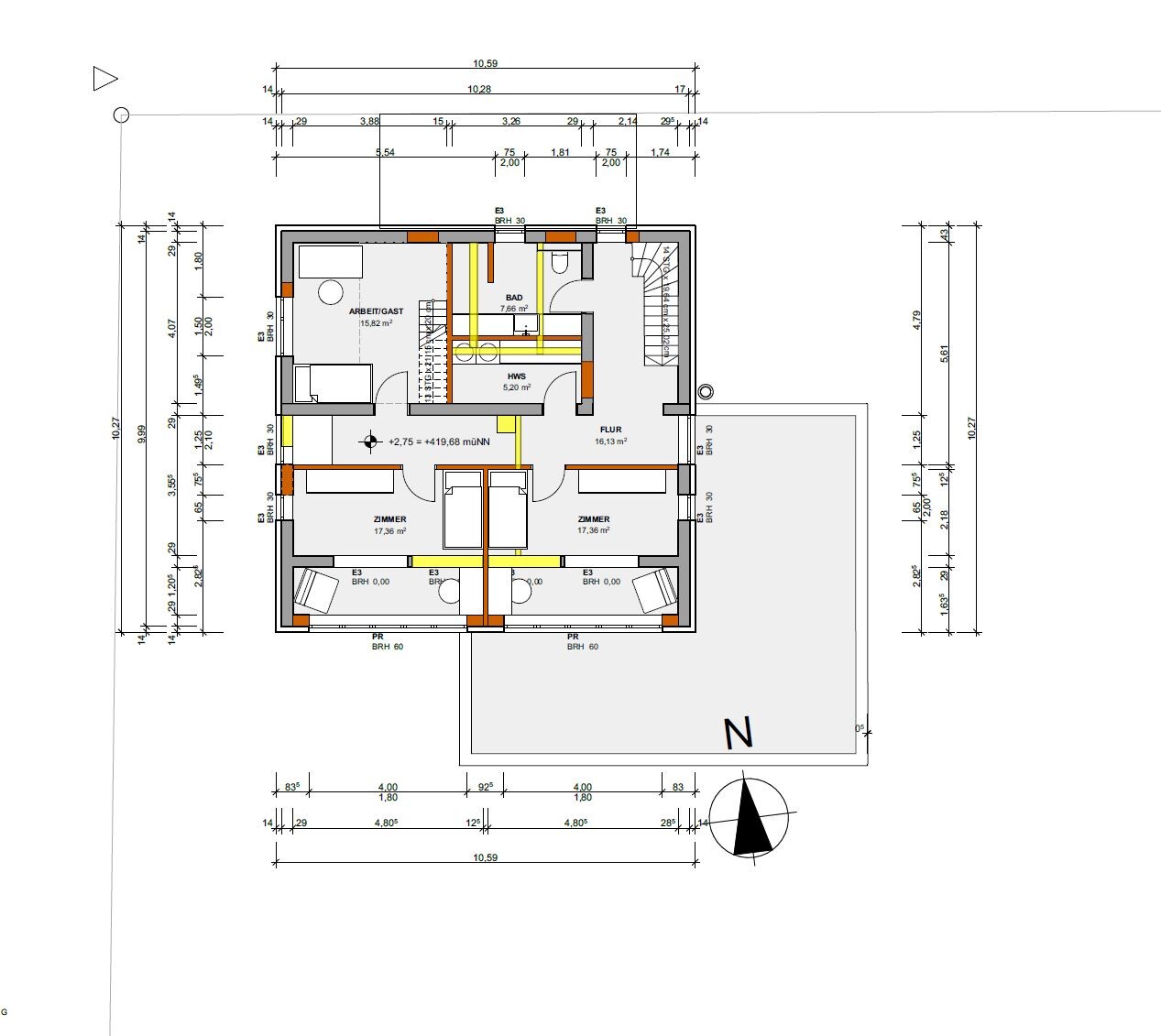
Grundriss eines Haus-Obergeschosses mit Flur, Bad, Arbeits-/Gästezimmer, zwei Zimmern, Terrasse rechts, Norden.

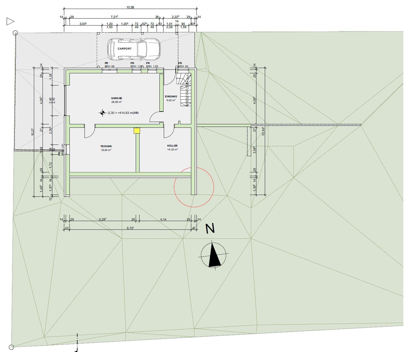
Grundriss eines Hauses: Garage, Technikraum, Keller, Eingang, Carport; Nordpfeil.

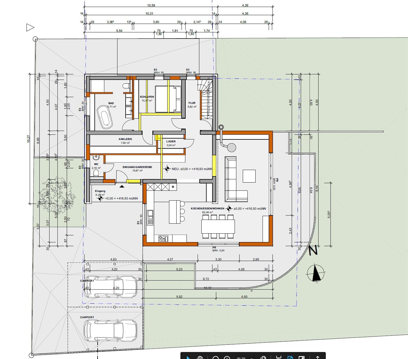
Grundriss eines Hauses mit Kochen/Essen/Wohnen, Schlafzimmer, Bad, Flur, Lager, Carport
S
Schorsch_baut
16.05.23 08:08
Also wenn eine Architektin aus so viel Fläche keine ordentliche „Suite“ basteln kann, dann liegts entweder an den Bauherren oder der Architektin. Der begehbare Wandschrank ist in meinen Augen in der Form eine Katastrophe und die freistehende Wanne bläst das Bad auf.
H
hanghaus2023
16.05.23 08:24
Dir geht es nur um das EG?

Warum hat man das OG komplett umgemodelt? Wenn der Balkon ungewünscht ist einfach da Fenster rein und gut ist.

Im EG gehört das Bad unter das Bad im OG.
11ant16.05.23 15:27
ypg schrieb:

Bitte den Fragebogen vollständig ausfüllen!
Yvonne meint den da: https://www.hausbau-forum.de/threads/grundriss-planung-unbedingt-vor-beitrag-erstellung-lesen.11714/ (eben den meistübersehenen, aber eben grundlagenschaffenden).
https://www.instagram.com/11antgmxde/
https://www.linkedin.com/company/bauen-jetzt/
architektin