Heinz von Heiden Schlüsselfertig Erfahrungen?

4,80 Stern(e) 6 Votes
Zuletzt aktualisiert 03.01.2026
Sie befinden sich auf der Seite 4 der Diskussion zum Thema: Heinz von Heiden Schlüsselfertig Erfahrungen?
>> Zum 1. Beitrag <<

M

MachsSelbst

Nein, die Dachlast für einfachste Binder liegen zwischen 75-100kg/m². Das reicht zum Begehen, aber nicht für Abbrettern und Lagern.
Das muss man unbedingt(!) klären, bevor man das Dach als Lager einplant.

Auch können Standardbinder so dumm gelegt sein, dass sich das Dach kaum nutzen lässt. Nimm Trockenbodenbinder, da hast du zumindest Kopffreiheit garantiert, Dachlast muss aber auch da nicht hoch sein. Daher erfragen.
 
M

motorradsilke

Nein, die Dachlast für einfachste Binder liegen zwischen 75-100kg/m². Das reicht zum Begehen, aber nicht für Abbrettern und Lagern.
Das muss man unbedingt(!) klären, bevor man das Dach als Lager einplant.

Auch können Standardbinder so dumm gelegt sein, dass sich das Dach kaum nutzen lässt. Nimm Trockenbodenbinder, da hast du zumindest Kopffreiheit garantiert, Dachlast muss aber auch da nicht hoch sein. Daher erfragen.
Warum sollte man bei 100 kg/m2 nichts lagern können? Wenn du da Dielen legst hast du ja beim Begehen die Last des Menschen nicht auf einem m2.
 
R

Rübe1

Man nehme sich den Grundriss und ein Geo-Dreieck und zeichne mal 25°. Dann sieht man schon mal, wo überhaupt Platz ist. Mit Chance gibts in der Mitte Kopffreiheit, dann gehts aber schon rapide runter

Na ja, dann Trockenbodenbinder beim Walmdach, da kannste dann schon mal das Portemonnaie öffnen und aufpassen, daß Du keinen Schluckauf bekommst.
 
N

Neuling8989

Vielen Dank für die Antwort.
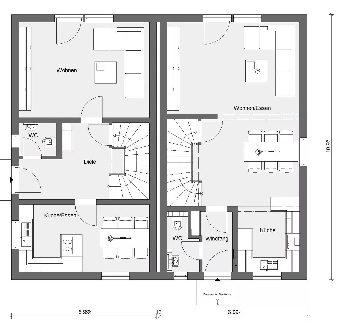
Weiß jemand, erfahrungsgemäß des Grundrisses, ob es machbar wäre die Nachbarn durchzuhören?
Für mich sieht es ja recht dick aus , mit einer Luftlücke.
Ich habe aber schon die schlimmsten Erfahrungen lesen können und das will ich vermeiden.
Ich möchte weder " trampeln" noch Gespräche mitbekommen
Zweifamilienhaus Grundrissplan mit zwei Wohneinheiten, Wohnzimmer, Küche und Treppen
 
M

MachsSelbst

Na ja, dann Trockenbodenbinder beim Walmdach, da kannste dann schon mal das Portemonnaie öffnen und aufpassen, daß Du keinen Schluckauf bekommst.
Jo. Bei uns damals 1.200 EUR Aufpreis. Das war ein Schluckauf sage ich dir. Dafür ein Bereich, in dem garantiert kein Binder quer im Weg sitzt und man Kopffreiheit über gute 3m Breite hat...

Auf 100kg/m² kann man leichte Sachen lagern und rauf, wenn man leicht ist... Rauspung wiegt 10 bis 15kg/m². Ne Bücherkiste schonmal 30kg, der Mensch 80kg.
Ich hab da oben auch Restfliesen liegen, Werkzeug, Restholz...

Wäre mir zu riskant. Aber wer meint er muss da sparen...
 
R

Rübe1

Na ja, es ist halt alles auf Standard berechnet, wennste was extra haben willst (oder anders) dann musste löhnen. Und dann sind wir wieder genau beim Thema, welchen Preisvorteil bieten Dir die bigplayer wirklich? Die Bude da ist ja kein großes Geheimnis, das bekommt jeder mittelmäßig begabte klein-GU ja hin, mit dem Unterschied, daß da halt kein großer Verwaltungsapparat mitbezahlt werden muß.

Zu #22: also, wenn das so gebaut wird, wie auf der Zeichnung, dann bekommt man schon Probleme mit den durchgehenden Außenwänden. Aber wer weiß das schon? Hoffen wir mal, daß die Maurer wissen was sie tun...
 
Zuletzt aktualisiert 03.01.2026
Im Forum Heinz von Heiden GmbH gibt es 29 Themen mit insgesamt 1106 Beiträgen
Oben