Guten Abend, wir wollten mal unsere Gedanken mit euch teilen. Wir haben vor nächstes Jahr im November zu bauen.
Grundstück steht schon in Aussicht. Würden gerne einiges selber machen, der Vater meiner Frau hat eine eigene Firma im Bereich Heizung/Sanitär. Im großen Freundes- und Bekanntenkreis viele Handwerker, Trockenbauer, Schreiner, Elektriker, Fliesenleger usw. . Wir persönlich würden den Innenausbau unterstützen, Malerarbeiten und Kleinkram.
Angebot für ein Rohbauhaus stehst schon!
Das Haus wäre soweit fertig bis auf den Innenausbau, dass bedeutet Trockenbau, Heizung, Sanitär,Strom,Böden, Türen/Zargen,Estrich,Treppe und noch ein paar Kleinigkeiten.
Kosten Grundstück ca. 185000€ inkl. Nebenkosten
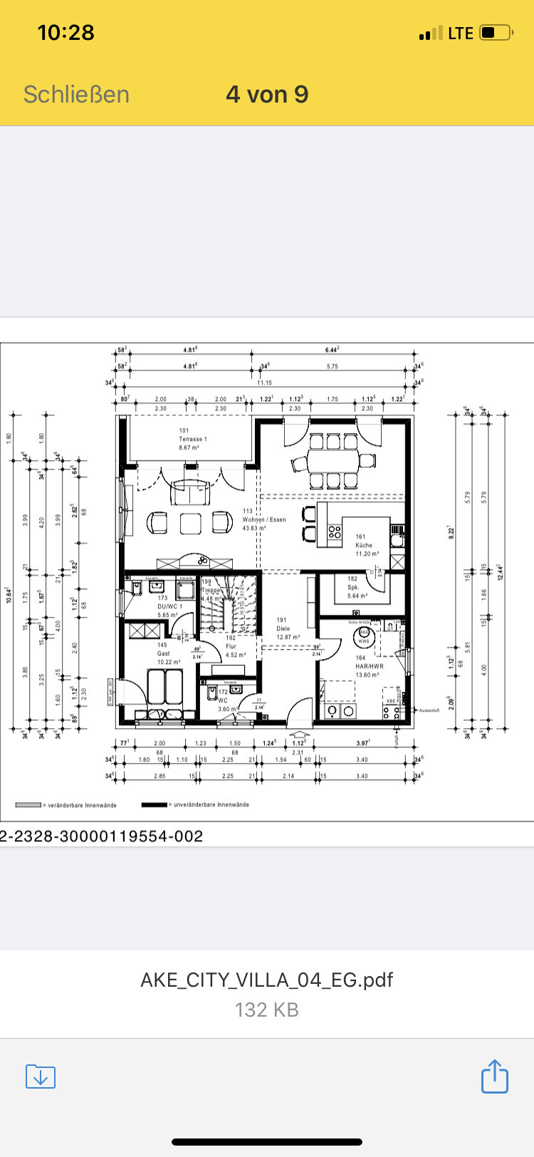
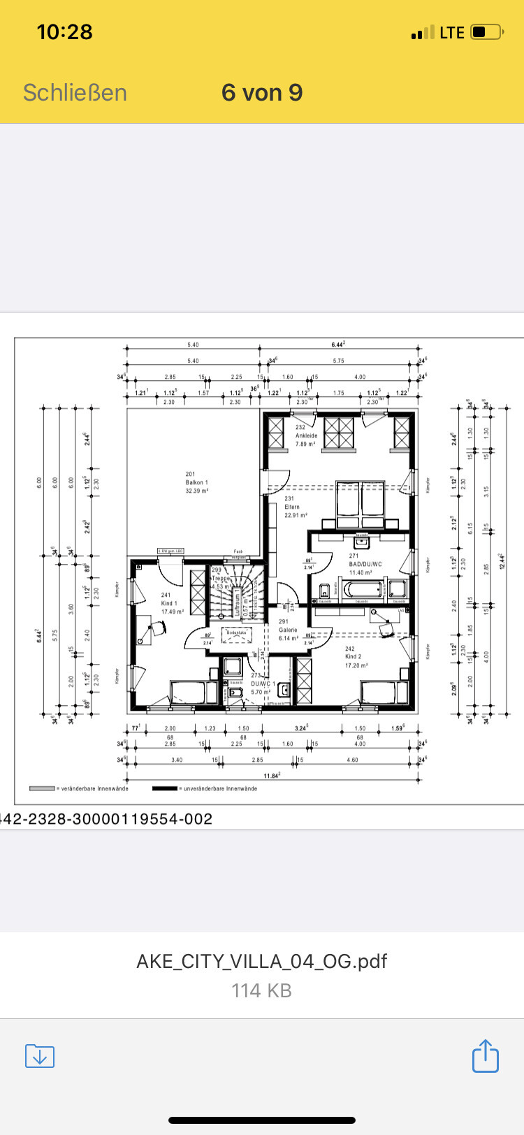
Rohbau 249qm 2 Stöckig /6 Zimmer /
2 Große Bäder/ 1 Gästebad /kein Keller! 208000€ inkl. Küche im Wert von 12000€ als gratis Zugabe / Bodenplatte inkl.
Nebenkosten Aushub/Baunebenkosten haben wir mal auf 15000€ veranlagt.
Innenausbau haben wir mal ca. mit 90000€ + Eigenleistung gerechnet, da wir wie schon gesagt sehr viele Freunde in der Familie haben und ich selbst auch Im Großhandel Arbeite und einige Vergünstigungen bekomme bezüglich Baumaterial.
Garage und Garten würden wir vorerst nicht mit einplanen, da wir sehr wahrscheinlich in den nächsten 5 Jahren ein Erbe von der Seite meiner Frau bekommen.
Gesamtkosten 498000€
Einkommen/Eigenkapital
Mein Einkommen ca. 3640€ Netto
Einkommen Frau ca. 900€ Netto
1 Kindergeld: 192€
Kinderbaugeld 120€/Monatlich
Gesamt : ca. 4852€ Netto
Aktuell Sparen wir jeden Monat 1500€ wäre noch mehr möglich.
Aktuelle Miete 520€ Warm
Zum Zeitpunkt der Finanzierungsanfrage keine offenen Kredite mehr!
Eigenkapital ca. 50000€
Puffer: 25000€ die wir aber erst mal nicht in die Finanzierung einplanen wollen.
Was denkt ihr, bekommen wir einen Kredit bei der Bank und wie stehen unsere Chancen? Was haltet wir von unserer Kalkulation?
Vielen Dank im Vorfeld
LG
Grundstück steht schon in Aussicht. Würden gerne einiges selber machen, der Vater meiner Frau hat eine eigene Firma im Bereich Heizung/Sanitär. Im großen Freundes- und Bekanntenkreis viele Handwerker, Trockenbauer, Schreiner, Elektriker, Fliesenleger usw. . Wir persönlich würden den Innenausbau unterstützen, Malerarbeiten und Kleinkram.
Angebot für ein Rohbauhaus stehst schon!
Das Haus wäre soweit fertig bis auf den Innenausbau, dass bedeutet Trockenbau, Heizung, Sanitär,Strom,Böden, Türen/Zargen,Estrich,Treppe und noch ein paar Kleinigkeiten.
Kosten Grundstück ca. 185000€ inkl. Nebenkosten
Rohbau 249qm 2 Stöckig /6 Zimmer /
2 Große Bäder/ 1 Gästebad /kein Keller! 208000€ inkl. Küche im Wert von 12000€ als gratis Zugabe / Bodenplatte inkl.
Nebenkosten Aushub/Baunebenkosten haben wir mal auf 15000€ veranlagt.
Innenausbau haben wir mal ca. mit 90000€ + Eigenleistung gerechnet, da wir wie schon gesagt sehr viele Freunde in der Familie haben und ich selbst auch Im Großhandel Arbeite und einige Vergünstigungen bekomme bezüglich Baumaterial.
Garage und Garten würden wir vorerst nicht mit einplanen, da wir sehr wahrscheinlich in den nächsten 5 Jahren ein Erbe von der Seite meiner Frau bekommen.
Gesamtkosten 498000€
Einkommen/Eigenkapital
Mein Einkommen ca. 3640€ Netto
Einkommen Frau ca. 900€ Netto
1 Kindergeld: 192€
Kinderbaugeld 120€/Monatlich
Gesamt : ca. 4852€ Netto
Aktuell Sparen wir jeden Monat 1500€ wäre noch mehr möglich.
Aktuelle Miete 520€ Warm
Zum Zeitpunkt der Finanzierungsanfrage keine offenen Kredite mehr!
Eigenkapital ca. 50000€
Puffer: 25000€ die wir aber erst mal nicht in die Finanzierung einplanen wollen.
Was denkt ihr, bekommen wir einen Kredit bei der Bank und wie stehen unsere Chancen? Was haltet wir von unserer Kalkulation?
Vielen Dank im Vorfeld
LG
R
RotorMotor20.11.20 19:18Ihr seid jung und habt ein gutes Einkommen, damit kann man sich wohl schon ein Haus leisten.
Das Grundstück ist allerdings nicht günstig und das Haus sehr groß.
Sollen/müssen es wirklich 250m² sein?
Der große Knackpunkt ist denke ich die Kalkulation des Baus genauer zu bekommen, sowie Eigen- und Freundesleistungen nicht überbewerten.
Baunebenkosten wirken auf jeden Fall sehr günstig. Hängt aber sehr vom Grundstück und der Eigenleistung ab.
Insgesamt klingt 300k für 250m² also 1200€/m² selbst bei einfacher Ausstattung unmöglich.
Was für eine Rate habt ihr euch denn vorgestellt?
Das Grundstück ist allerdings nicht günstig und das Haus sehr groß.
Sollen/müssen es wirklich 250m² sein?
Der große Knackpunkt ist denke ich die Kalkulation des Baus genauer zu bekommen, sowie Eigen- und Freundesleistungen nicht überbewerten.
Baunebenkosten wirken auf jeden Fall sehr günstig. Hängt aber sehr vom Grundstück und der Eigenleistung ab.
Insgesamt klingt 300k für 250m² also 1200€/m² selbst bei einfacher Ausstattung unmöglich.
Was für eine Rate habt ihr euch denn vorgestellt?
Mein letzter direkter Nachbar von dem ich bis jetzt hier noch nicht erzählt habe, baut sein Haus selbst aus weil, er sehr speziell ist und vermutlich alle seine Firmen/ Gewerke dadurch verloren hat. Sein Haus sieht nach 1,5 Jahren immer noch aus wie ein Rohbau. Dabei hat er Frau und Kind hockt aber trotzdem, wenn er da ist von morgens bis spät abends in seiner Butze und macht was.
Budget, Einzug samt Fertigstellung sind so wie Du es vor hast und schreibst „ungewiss“.
Wie kommt man auf 90k€ EL
Budget, Einzug samt Fertigstellung sind so wie Du es vor hast und schreibst „ungewiss“.
Wie kommt man auf 90k€ EL
Danke schonmal für deine Nachricht.
Hab jetzt nochmal bisschen drauf gerechnet meint ihr man könnte damit hinkommen?
Trockenbau: 12000€ inkl. Arbeitsleistung
Sanitär/Heizung 55000€ inkl. Arbeitsleistung
Böden/Fliesen/Türen 15000€ inkl. Arbeitsleistung
Estrich 10000€ inkl. Arbeitsleistung
Elektrik 8000€ inkl. Arbeitsleistung
Treppe 6500€ inkl. Arbeitsleistung
Malerarbeiten und Kleinigkeiten 2000€
Gesamt 113500€
wie schon erwähnt bekommen wir Heizung und Sanitär für Eigenkapital Preise sowie wird mein Schwiegervater kaum was verlangen.
Die restlichen Sachen würde ich über mein Geschäft einkaufen dem ich auch nur ein paar Euro vom Eigenkapital Preis entfernt bin.
Freunde und Bekannte kann man ja über das Finanzamt anmelden und dort werden wir auch keine Unmengen bezahlen.
Hab jetzt nochmal bisschen drauf gerechnet meint ihr man könnte damit hinkommen?
Trockenbau: 12000€ inkl. Arbeitsleistung
Sanitär/Heizung 55000€ inkl. Arbeitsleistung
Böden/Fliesen/Türen 15000€ inkl. Arbeitsleistung
Estrich 10000€ inkl. Arbeitsleistung
Elektrik 8000€ inkl. Arbeitsleistung
Treppe 6500€ inkl. Arbeitsleistung
Malerarbeiten und Kleinigkeiten 2000€
Gesamt 113500€
wie schon erwähnt bekommen wir Heizung und Sanitär für Eigenkapital Preise sowie wird mein Schwiegervater kaum was verlangen.
Die restlichen Sachen würde ich über mein Geschäft einkaufen dem ich auch nur ein paar Euro vom Eigenkapital Preis entfernt bin.
Freunde und Bekannte kann man ja über das Finanzamt anmelden und dort werden wir auch keine Unmengen bezahlen.
N
nordanney20.11.20 19:47Michi995 schrieb:
Was denkt ihr, bekommen wir einen Kredit bei der Bank und wie stehen unsere Chancen? Was haltet wir von unserer Kalkulation?Kredit ja. Eigenleistung bei 50€ Stundenlohn = 1.800 Arbeitsstunden = 45 Arbeitswochen zu je 40 Stunden
Das macht keine Bank mit. Da hilft nur viel mehr Eigenkapital bzw. höhere Finanzierung mit offizieller Vergabe (was bei Euch ja ausfällt).
Selbst zum Eigenkapital einkaufen kostet schon richtig Geld...
K
KingJulien20.11.20 20:20Michi995 schrieb:
Kinderbaugeld 120€/MonatlichDas Baukindergeld soll bis 31.03.2021 verlängert werden. Das werdet ihr aber nicht schaffen, oder?Ähnliche Themen