Hi!
Wir würden uns sehr über kurzfristige Ideen freuen, weil wir nur noch im laufe der Woche einen neuen Vorschlag vorstellen können.
Uns fiel leider erst recht spät auf, dass der Bauträger mit einer relativ kurzen Glastrennwand für die offene Dusche geplant hat (ca. 85cm). Wir machen uns da jetzt etwas Sorgen mit häufigen Wasserspritzern im halben Bad.
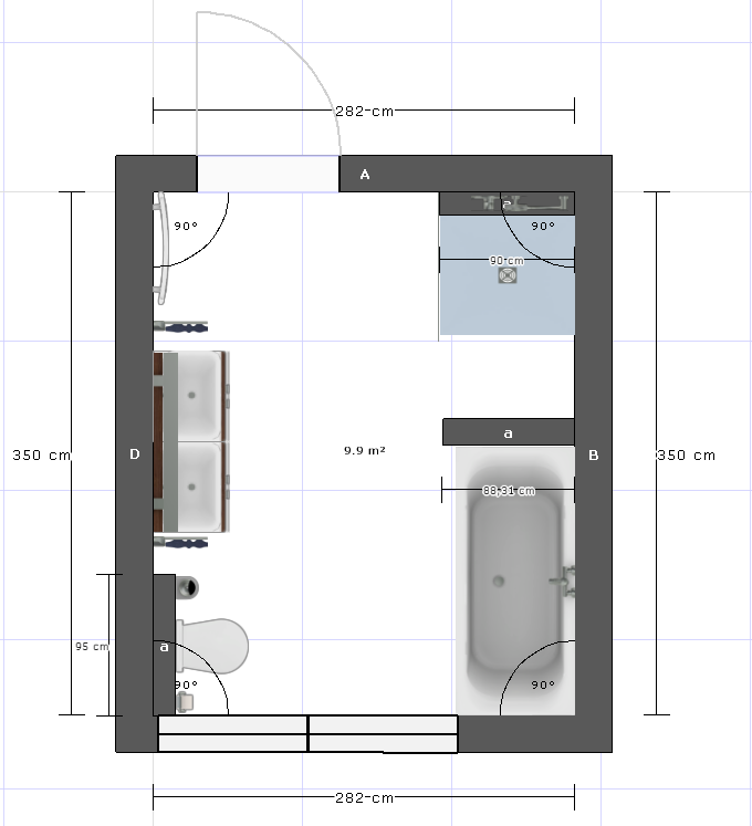
Das Badezimmer ist nur 10 m² groß mit den Maßen 2,85 x 3,55m. Wie in der Skizze zu sehen haben wir zwei Fenster, welche die Planung nicht unbedingt vereinfachen. Die Badewanne wird 180x80cm und der Waschtisch mit Doppelwaschbecken 120-140cm haben.
Ich habe schon etwas gegoogelt und dort wird von diesen "T-Wänden" gesprochen. Jedoch finde ich da keine sinnvolle Idee wie man das so planen könnte.
Habt ihr eine Idee, oder ist die Sorge mit der Duschwand unberechtigt?
Viele Grüße & danke für die Mühe!
Gatho
Wir würden uns sehr über kurzfristige Ideen freuen, weil wir nur noch im laufe der Woche einen neuen Vorschlag vorstellen können.
Uns fiel leider erst recht spät auf, dass der Bauträger mit einer relativ kurzen Glastrennwand für die offene Dusche geplant hat (ca. 85cm). Wir machen uns da jetzt etwas Sorgen mit häufigen Wasserspritzern im halben Bad.
Das Badezimmer ist nur 10 m² groß mit den Maßen 2,85 x 3,55m. Wie in der Skizze zu sehen haben wir zwei Fenster, welche die Planung nicht unbedingt vereinfachen. Die Badewanne wird 180x80cm und der Waschtisch mit Doppelwaschbecken 120-140cm haben.
Ich habe schon etwas gegoogelt und dort wird von diesen "T-Wänden" gesprochen. Jedoch finde ich da keine sinnvolle Idee wie man das so planen könnte.
Habt ihr eine Idee, oder ist die Sorge mit der Duschwand unberechtigt?
Viele Grüße & danke für die Mühe!
Gatho
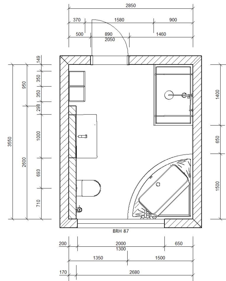
Die Duschwand ist jetzt übrigens 1,40m lang.
Hinausspritzen wird es vermutlich doch noch etwas, aber nicht weiter als bis zur Badewanne.
Hier noch die bemaßte Zeichnung und ein paar 3D Ansichten:

Edit: Huch, ich sehe gerade das die Vorwand nicht hoch genug für die Drückerplatte ist. Aber das sollte wohl bei der Umsetzung nicht das Problem sein
Hinausspritzen wird es vermutlich doch noch etwas, aber nicht weiter als bis zur Badewanne.
Hier noch die bemaßte Zeichnung und ein paar 3D Ansichten:
Edit: Huch, ich sehe gerade das die Vorwand nicht hoch genug für die Drückerplatte ist. Aber das sollte wohl bei der Umsetzung nicht das Problem sein
Guten Morgen,
vielen Dank für die Vorschläge! Die gefallen mir alle schon mal deutlich besser als die vom Bauträger.
Ich fasse mal zusammen:
Variante1:

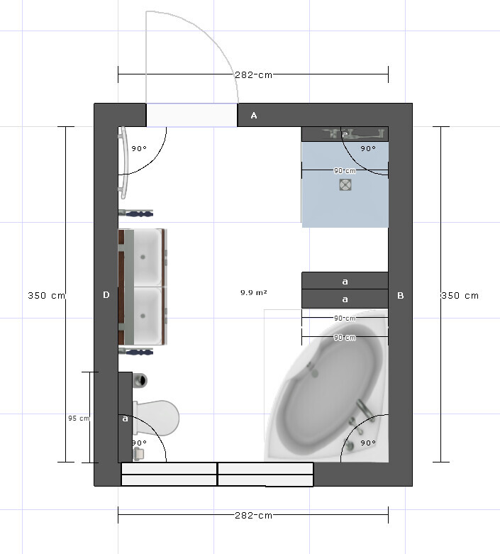
180x80er Badewanne direkt unter der Dusche. Duschtrennwand jedoch nur maximal 1m möglich.
Variante2:

Mit Eckbadewanne inkl. der gleichen Dusche wie bei Variante1.
Variante3:

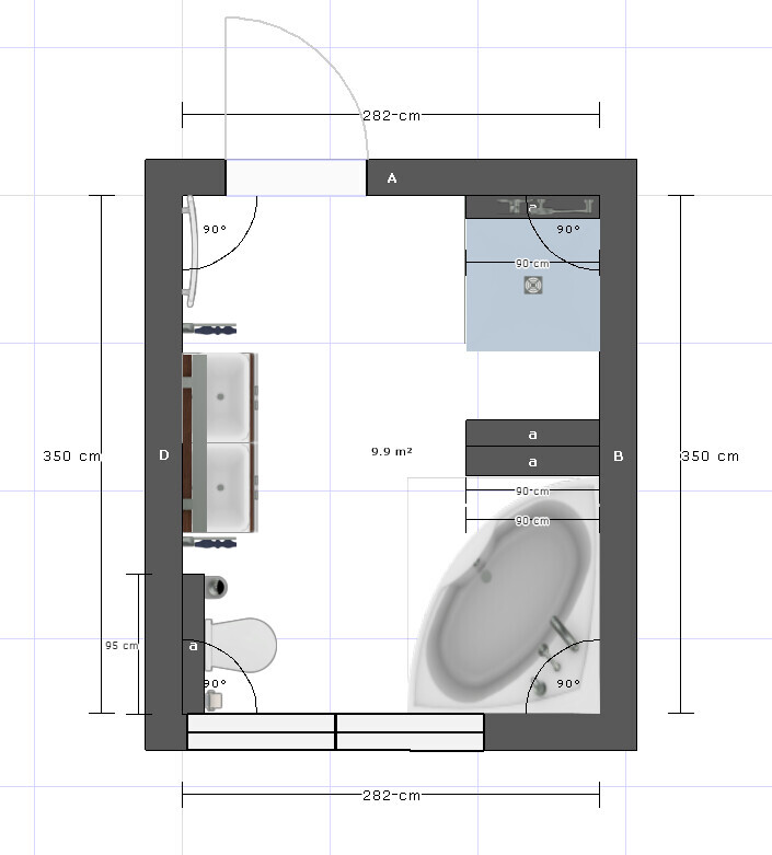
Mit Eckbadewanne, Dusche jedoch jetzt mit 1,4m Trennwand - offen in Richtung Badewanne.
Zum Thema Badewanne noch eine Frage. Welches Badewannenmaß (bei einer Eckwanne) muss man wählen um ein ähnliches Platzangebot wie bei einer 180x80 Wanne zu bekommen?
Viel Glück & danke!
Gatho
vielen Dank für die Vorschläge! Die gefallen mir alle schon mal deutlich besser als die vom Bauträger.
Ich fasse mal zusammen:
Variante1:
180x80er Badewanne direkt unter der Dusche. Duschtrennwand jedoch nur maximal 1m möglich.
Variante2:
Mit Eckbadewanne inkl. der gleichen Dusche wie bei Variante1.
Variante3:
Mit Eckbadewanne, Dusche jedoch jetzt mit 1,4m Trennwand - offen in Richtung Badewanne.
Zum Thema Badewanne noch eine Frage. Welches Badewannenmaß (bei einer Eckwanne) muss man wählen um ein ähnliches Platzangebot wie bei einer 180x80 Wanne zu bekommen?
Viel Glück & danke!
Gatho
Ja "BeHaElJa", da hast Du wohl recht. Je länger ich drüber nachdenke, desto besser ist glaube ich Variante3. Der Anstoß dafür ist von Jochen104, ich habe nur die Duscharmatur gedreht.
Die Frage ist nur ob das Platzangebot von der Eckbadewanne mit einer 180x80 Wanne vergleichbar ist?
Die Frage ist nur ob das Platzangebot von der Eckbadewanne mit einer 180x80 Wanne vergleichbar ist?
Also ich bin ja bekennender Dusch-Fan und habe auch das Talent, alles unter Wasser zu setzen. Da wir auch nur 10,8 qm Fläche haben, kann die Dusche deshalb nicht so offen werden wie ich es gerne hätte. Also ich würde dein Bad definitiv unter Wasser setzen.
Ist das denn wirklich so klein für ein Bad? In unserem Grundriss ist die offene Dusche mit 1,60 x 1,00 m vermaßt und die Eckbadewanne mit 1,60 an 1,60 m. Dazu halt WC und ein einzelner Waschtisch. Allerdings alles Platzhalter erst mal, die Badplanung mit dem Sanitärfachmann steht noch aus.
Ist das denn wirklich so klein für ein Bad? In unserem Grundriss ist die offene Dusche mit 1,60 x 1,00 m vermaßt und die Eckbadewanne mit 1,60 an 1,60 m. Dazu halt WC und ein einzelner Waschtisch. Allerdings alles Platzhalter erst mal, die Badplanung mit dem Sanitärfachmann steht noch aus.
Ähnliche Themen