Hallo Leute,
wir sitzen gerade über der Grundrissplanung und fragen uns, ob im Reihenendhaus unsere 9qm ausreichend sind - daher hat unser GU einen Vorschlag gemacht (rote Wände) und ich gerade per App (grüne Wände).
In jedem Fall wollen wir eine barrierefreie Dusche ohne Türe - die Frage ist nun, welcher Grundriss ein wenig „offener“ ist und der Raum nicht zu gequetscht wirkt?
Oder die Dusche von 1,00m auf 1,20m verbreitern und eine nur 1,60m lange Badewanne rein? Die Duschwand habe ich mal mit 1,40m geplant, damit das Wasser nicht zu sehr rausspritzt.
Was denkt ihr?

wir sitzen gerade über der Grundrissplanung und fragen uns, ob im Reihenendhaus unsere 9qm ausreichend sind - daher hat unser GU einen Vorschlag gemacht (rote Wände) und ich gerade per App (grüne Wände).
In jedem Fall wollen wir eine barrierefreie Dusche ohne Türe - die Frage ist nun, welcher Grundriss ein wenig „offener“ ist und der Raum nicht zu gequetscht wirkt?
Oder die Dusche von 1,00m auf 1,20m verbreitern und eine nur 1,60m lange Badewanne rein? Die Duschwand habe ich mal mit 1,40m geplant, damit das Wasser nicht zu sehr rausspritzt.
Was denkt ihr?
1m als Duschbreite reicht sehr gut. Da würde ich die Wanne nicht für verkürzen.
Alternativ wäre die Trennwand natürlich auch aus Glas.
Nachteil: Muss geputzt werden (vielleicht besser wenn satiniert)
Vorteil: Tageslicht in der Dusche, Nur 1cm Dicke, Bad wirkt insgesamt großzügiger, luftiger.
Zu den Grundrissen, dürft ihr im Reihenhaus das Badfenster schieben/verkleiner? Ist zumindest in Unterschied vom roten zum grünen Plan.
Alternativ wäre die Trennwand natürlich auch aus Glas.
Nachteil: Muss geputzt werden (vielleicht besser wenn satiniert)
Vorteil: Tageslicht in der Dusche, Nur 1cm Dicke, Bad wirkt insgesamt großzügiger, luftiger.
Zu den Grundrissen, dürft ihr im Reihenhaus das Badfenster schieben/verkleiner? Ist zumindest in Unterschied vom roten zum grünen Plan.
G
goalkeeper15.04.19 08:33goalkeeper schrieb:
Eine Tendenz ist ja schon mal abzusehen
Ich frage mich allerdings, ob eine Verbreiterung der Dusche und die dadurch resultierende Verkleinerung der Badewanne Vorteile bringen?
Außerdem hat unser GU die Duschtrennmauer mit nur 10cm geplant - also wohl aus Rigips.
Mauert man die Wand normalerweise nicht mit Kalksandstein?kaho674 schrieb:
1m breite Dusche ist völlig ausreichend. Wir haben auch den Meter und können sogar bequem zu zweit duschen.
Bei der Tiefe bin ich etwas unsicher. Wir haben 1,40m und das ist eher knapp. Wir planschen aber auch nicht wild rum. Das funktioniert. Bei Dir sieht es noch knapper aus. Was hast Du?
Ich würde überlegen, das WC neben das Waschbecken zu platzieren, um in der Mitte einen schönen Freiraum zu haben, wo man ans Fenster treten kann (was ich zentral setzen würde) und neben der Wanne noch einen Schrank für das Weinglas... oder was ist die "1"?
Wenn wir schon dabei sind, wie sieht denn der Rest vom Haus denn so aus bis jetzt? Die „1“ wurde von der Planungssoftware für den Badschrank vergeben. Die Duschtrennwand habe ich mit 1,40m geplant.
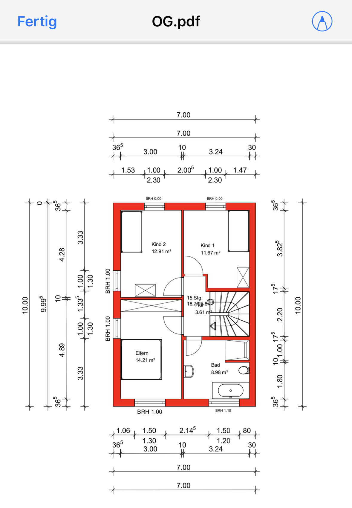
Anbei dann noch mal das ganze Haus - aktueller Stand.
G
goalkeeper15.04.19 08:35RomeoZwo schrieb:
1m als Duschbreite reicht sehr gut. Da würde ich die Wanne nicht für verkürzen.
Alternativ wäre die Trennwand natürlich auch aus Glas.
Nachteil: Muss geputzt werden (vielleicht besser wenn satiniert)
Vorteil: Tageslicht in der Dusche, Nur 1cm Dicke, Bad wirkt insgesamt großzügiger, luftiger.
Zu den Grundrissen, dürft ihr im Reihenhaus das Badfenster schieben/verkleiner? Ist zumindest in Unterschied vom roten zum grünen Plan.Wir haben aktuell eine Glasdusche und wollen zwingend von dieser weg.
Das Badfenster in der grünen Variante habe ich versetzt. Ob das so zulässig ist oder nicht kann ich aktuell nicht sagen. Das bleibt dann noch abzusprechen.
G
goalkeeper15.04.19 08:46kaho674 schrieb:
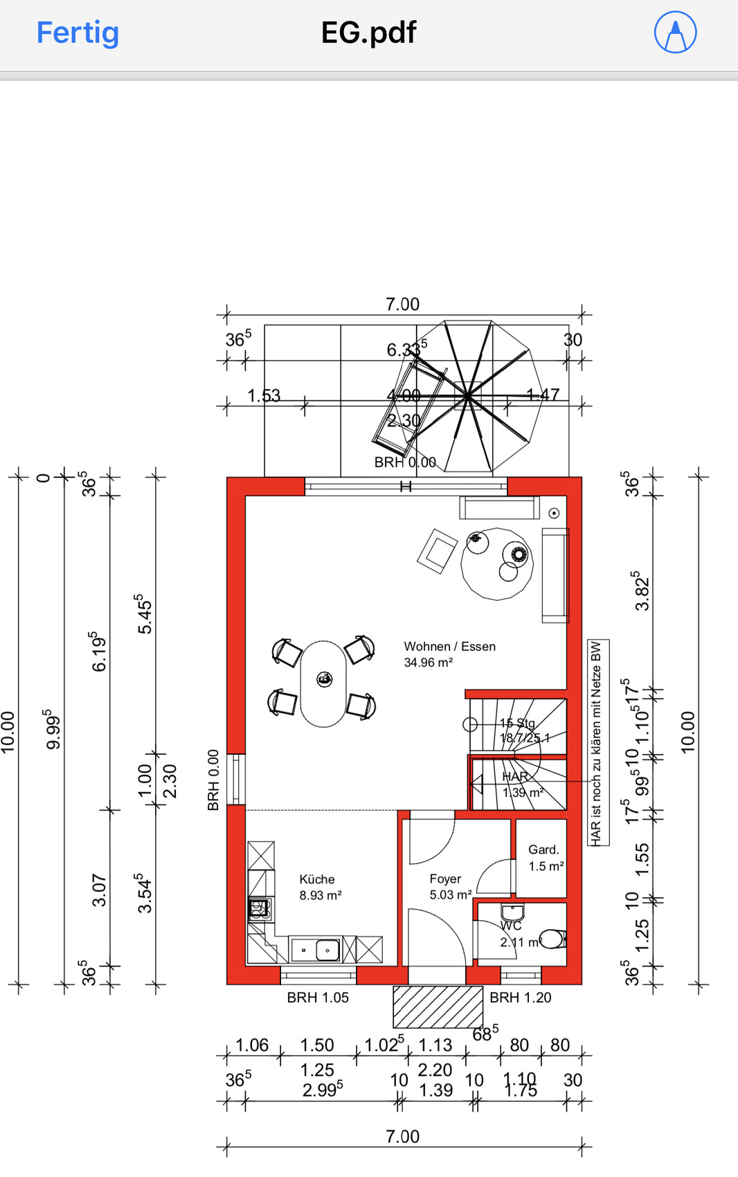
Kommt da noch ne Garage dran oder warum hat das WZ planlinks kein Fenster?Guter Einwand. Garage kommt da keine hin - allerdings später mal ein Carport bzw. Gartenhäuschen.
Mir wär ja der Eingang zu knapp. Die Garderobe würde ich auch keinesfalls mit einer Wand abtrennen. Vermutlich würde ich das WC "unter" die Küche legen, daneben noch ne kleine Speis einfügen und den Eingangsbereich damit entkrampfen.
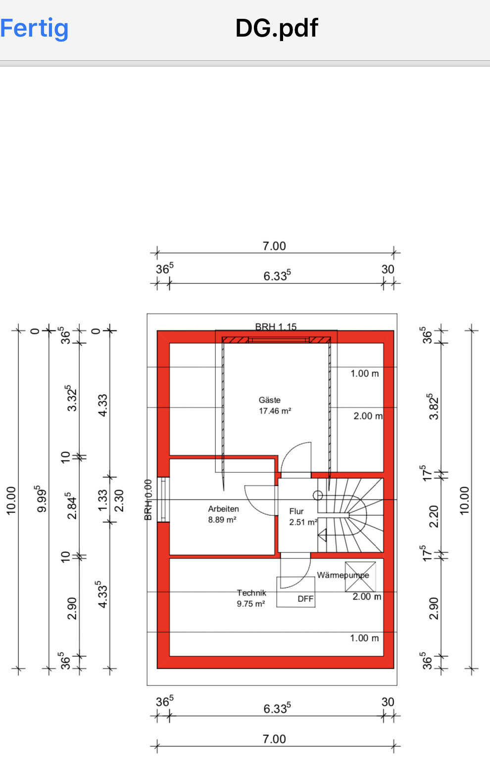
Wie ist die Galerie auf dem Dachboden belichtet? Mir scheint, mit Fenstern ist der Planer ziemlich geizig.
Wie ist die Galerie auf dem Dachboden belichtet? Mir scheint, mit Fenstern ist der Planer ziemlich geizig.
Ähnliche Themen