ᐅ Grundrissoptimierung Einfamilienhaus ca. 150qm - auf kleinem Grundstück
Erstellt am: 18.08.20 20:31
Y
Yaso2.0A
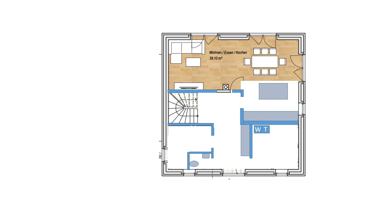
Alessandro19.08.20 11:25ich würde nicht auf die Speisekammer verzichten! Selbst wenn sie schmal ist. Getränkekisten, Handstaubsauger, Mixer und alles andere was nicht in der Küche rumstehen soll, passen da allemal rein!
Oder wo willst du sonst die Getränke lagern?
Im Hauswirtschaftsraum (ich nehme an du willst dort auch Wäsche trocknen oder bügeln) passt das alles nicht rein.
Oder wo willst du sonst die Getränke lagern?
Im Hauswirtschaftsraum (ich nehme an du willst dort auch Wäsche trocknen oder bügeln) passt das alles nicht rein.
Alessandro schrieb:
ch würde nicht auf die Speisekammer verzichten! Selbst wenn sie schmal ist. Getränkekisten, Handstaubsauger, Mixer und alles andere was nicht in der Küche rumstehen soll, passen da allemal rein!
Oder wo willst du sonst die Getränke lagern?
Im Hauswirtschaftsraum (ich nehme an du willst dort auch Wäsche trocknen oder bügeln) passt das alles nicht rein.Zwei große, raumhohe Hochschränke in 60 oder 80er Breite schlucken all das. Und planlinks in der Küche mit entfallender Speisekammer ergeben etwa drei Meter Hochschrank-Front...Arbeitsplatte dann durchgängig auf der rechten Seite.Yaso2.0 schrieb:
Zugang zur Küche über die DieleDas erschwert aber leider die Küchenplanung.A
Alessandro19.08.20 12:51Alessandro schrieb:
ich würde nicht auf die Speisekammer verzichten! Selbst wenn sie schmal ist. Getränkekisten, Handstaubsauger, Mixer und alles andere was nicht in der Küche rumstehen soll, passen da allemal rein!
Oder wo willst du sonst die Getränke lagern?
Im Hauswirtschaftsraum (ich nehme an du willst dort auch Wäsche trocknen oder bügeln) passt das alles nicht rein.In die Küche sollen Hoch/vorratsschränke integriert werden, wo das passen sollte.
Wasserkästen haben wir z. B.nicht, das Bier kommt als 6er Träger, der Handstaubsauger ist an der Wand montiert
Scout schrieb:
Zwei große, raumhohe Hochschränke in 60 oder 80er Breite schlucken all das. Und planlinks in der Küche mit entfallender Speisekammer ergeben etwa drei Meter Hochschränke-Front...Arbeitsplatte dann durchgängig auf der rechten Seite.Genau, es sollen Vorratsschränke mit eingeplant werden Pinky0301 schrieb:
Das erschwert aber leider die Küchenplanung.in wie fern? Mein Vorstellung ist die Tür von der Diele als Schiebetür zu planen, dann beginnende eine L-Zeile + eine eingekofferte Küche wo auch die Vorräte Platz finden.
Ich pack mal Bildbeispiele dazu, wie ich es mir wünschen würde, die Maße etc. fehlen aber ja noch
Alessandro schrieb:
du könntest den Flur etwas Richtung Treppe schieben, den Hauswirtschaftsraum kleiner machen und Waschmaschine und T in das enstandene Büro stellen.
Somit hast du ein größeres Bügel/Wäschezimmer das zusätzlich noch als Büro genutzt werden kann. Die Garderobe wird dadurch auch größer.
![bbb.jpg"]50714[/ATTACH]</blockquote><br />
Dann ist die Küche aber komplett offen. Das funktioniert nicht, ich koche/backe täglich und das ist uns Lärmtechnisch ein Dorn im Auge <br />
<br />
[ATTACH type="full" alt="Moderne Küche mit schwarzer Insel, weißen Hochglanz-Schränken, Spüle unter dem Fenster.](https://www.hausbau-forum.de/attachments/50715/)

Ähnliche Themen