ᐅ Grundrissideen Einfamilienhaus 140 m2
Erstellt am: 06.01.14 12:27
Hallo ihr Lieben,
die Planung für unser Bauvorhaben wird langsam konkreter, sodass wir uns hier sehr über Anregungen zu unseren Grundrissideen freuen würden. Unsere erste Grundrissidee habe ich unten angehängt. Fenster, Türen etc. sind noch nicht genau durchdacht; es geht erst mal um die grobe Raumaufteilung. Die Quadratmeter stimmen wahrscheinlich auch noch nicht ganz, da es sich jetzt, nachdem wir schon (glaube ich!) Schrägen abgezogen haben, auf ca. 150 m2 beläuft, was wir uns wohl nicht Leisten können, aber so ungefähr stimmt die Hausform- und Aufteilung mit unserer Vorstellung überein.
Vorgegeben sind für uns:
Baufenster 10x10 m, 1.5 geschossige Bauweise. Das Grundstück ist ca. 575 m2 groß, ca. 30 m OW, ca. 20 m NS. Platzierung des Hauses ist in der NO Ecke geplant, Dachfirstverlauf OW (weiß nicht ob das so muss, macht aber Sinn, oder?).
Wir sind eine fünfköpfige Familie mit Großeltern weit außerhalb unseres Wohnorts (Berlin) und wünschen uns daher:
mindestens: Wohn-Ess-Kochbereich, großer HAR, 1x Duschbad, 1x Familienbad, 4 Schlafzimmer
plus idealerweise: ein weiteres Zimmer (Arbeit/Gast) und/oder bewohnbare Ausweichfläche im Spitzboden
Das alles möglichst kostengünstig, denn das Budget nur fürs Haus liegt bei 190 TEUR.
Nach den bisherigen Empfehlungen würden wir gerne zumindest bereits eine Treppe in den Dachboden mit einbauen lassen, auch wenn es zum Komplettausbau vielleicht noch nicht reicht.
Nachdem wir uns am Wochenende ein 134 m2 (reine Wohnfläche) Musterhaus des bekannten Stadt & Land-Herstellers angeschaut haben, fanden wir, dass die von uns gewünschten 6 Wohnräume dort zwar eigentlich mit "Flair" untergebracht wurden aber es war schon etwas gequetscht.
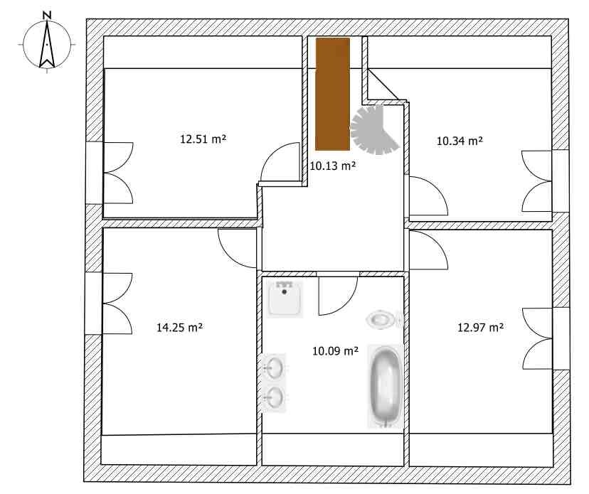
Wir haben uns also an einem Grundriss versucht, der das Haus insgesamt etwas größer macht, und bei dem es im EG noch für ein Duschbad und ein etwas größeres Extrazimmer reicht, so:


Das mittlere Schlafzimmer im DG funktioniert, weil es komplett in einer Gaube liegt. Eigentlich gefällt uns diese Aufteilung prima und ein Haus mit so einer Gaube auch von außen optisch sehr gut. Unsere Sorge ist aber, dass die Gaube zu teuer werden könnte und/oder, dass auch bei etwas mehr m2 als im besichtigten Musterhaus die Räume noch etwas knapp bleiben würden.
Die Alternativen, über die wir nachdenken, sind daher wie folgt:
Erstens, doch auf das 4. Zimmer im OG zu verzichten und dort ganz klassisch 3 gleichgroße Zimmer plus Bad hinzulegen. Dann müsste sich aber bei Großelternbesuch ein Bewohner in ein anderes Zimmer verdünnisieren oder der Spitzboden fix als Ausweichfläche klar gemacht werden können. Wichtig wäre dann auch, dass das Extrazimmer im EG groß genug ist um als vollwertiges Privatzimmer herzuhalten (das haben wir im EG-Grundriss schon so versucht).
Zweitens, falls wir uns die Gaube nicht leisten können, haben wir einen Versuch gemacht, wie man den Raum im DG maximieren könnte, in dem man das Bad in die Mitte schiebt, sodass dennoch alle 4 Schlafzimmer vernünftige Fenster haben. Dabei kam das hier raus:

Mal abgesehen davon, dass die "Quetschsorge" hier auch bleibt, stört mich an dieser Variante, dass man im Unterschied zur Version mit Gaube später nur schwerlich 2-3 gut geschnittene Zimmer draus machen könnte, was ja für die Zeit, wenn die Kinder aus dem Haus sind, eigentlich eine reizvolle Option wäre.
Soweit sind wir bis jetzt! Morgen haben wir einen Termin im Architektenbüro, in das wir gerne mit möglichst klaren Vorstellungen gehen würden, deshalb würden wir uns heute sehr über Rückmeldungen freuen, die uns dabei helfen, die hie aufgeführten Ideen zu konkretisieren und zu verbessern. Vielen Dank im Voraus für eure Anregungen!
Herzliche Grüße,
Kazazi
die Planung für unser Bauvorhaben wird langsam konkreter, sodass wir uns hier sehr über Anregungen zu unseren Grundrissideen freuen würden. Unsere erste Grundrissidee habe ich unten angehängt. Fenster, Türen etc. sind noch nicht genau durchdacht; es geht erst mal um die grobe Raumaufteilung. Die Quadratmeter stimmen wahrscheinlich auch noch nicht ganz, da es sich jetzt, nachdem wir schon (glaube ich!) Schrägen abgezogen haben, auf ca. 150 m2 beläuft, was wir uns wohl nicht Leisten können, aber so ungefähr stimmt die Hausform- und Aufteilung mit unserer Vorstellung überein.
Vorgegeben sind für uns:
Baufenster 10x10 m, 1.5 geschossige Bauweise. Das Grundstück ist ca. 575 m2 groß, ca. 30 m OW, ca. 20 m NS. Platzierung des Hauses ist in der NO Ecke geplant, Dachfirstverlauf OW (weiß nicht ob das so muss, macht aber Sinn, oder?).
Wir sind eine fünfköpfige Familie mit Großeltern weit außerhalb unseres Wohnorts (Berlin) und wünschen uns daher:
mindestens: Wohn-Ess-Kochbereich, großer HAR, 1x Duschbad, 1x Familienbad, 4 Schlafzimmer
plus idealerweise: ein weiteres Zimmer (Arbeit/Gast) und/oder bewohnbare Ausweichfläche im Spitzboden
Das alles möglichst kostengünstig, denn das Budget nur fürs Haus liegt bei 190 TEUR.
Nach den bisherigen Empfehlungen würden wir gerne zumindest bereits eine Treppe in den Dachboden mit einbauen lassen, auch wenn es zum Komplettausbau vielleicht noch nicht reicht.
Nachdem wir uns am Wochenende ein 134 m2 (reine Wohnfläche) Musterhaus des bekannten Stadt & Land-Herstellers angeschaut haben, fanden wir, dass die von uns gewünschten 6 Wohnräume dort zwar eigentlich mit "Flair" untergebracht wurden aber es war schon etwas gequetscht.
Wir haben uns also an einem Grundriss versucht, der das Haus insgesamt etwas größer macht, und bei dem es im EG noch für ein Duschbad und ein etwas größeres Extrazimmer reicht, so:
Das mittlere Schlafzimmer im DG funktioniert, weil es komplett in einer Gaube liegt. Eigentlich gefällt uns diese Aufteilung prima und ein Haus mit so einer Gaube auch von außen optisch sehr gut. Unsere Sorge ist aber, dass die Gaube zu teuer werden könnte und/oder, dass auch bei etwas mehr m2 als im besichtigten Musterhaus die Räume noch etwas knapp bleiben würden.
Die Alternativen, über die wir nachdenken, sind daher wie folgt:
Erstens, doch auf das 4. Zimmer im OG zu verzichten und dort ganz klassisch 3 gleichgroße Zimmer plus Bad hinzulegen. Dann müsste sich aber bei Großelternbesuch ein Bewohner in ein anderes Zimmer verdünnisieren oder der Spitzboden fix als Ausweichfläche klar gemacht werden können. Wichtig wäre dann auch, dass das Extrazimmer im EG groß genug ist um als vollwertiges Privatzimmer herzuhalten (das haben wir im EG-Grundriss schon so versucht).
Zweitens, falls wir uns die Gaube nicht leisten können, haben wir einen Versuch gemacht, wie man den Raum im DG maximieren könnte, in dem man das Bad in die Mitte schiebt, sodass dennoch alle 4 Schlafzimmer vernünftige Fenster haben. Dabei kam das hier raus:
Mal abgesehen davon, dass die "Quetschsorge" hier auch bleibt, stört mich an dieser Variante, dass man im Unterschied zur Version mit Gaube später nur schwerlich 2-3 gut geschnittene Zimmer draus machen könnte, was ja für die Zeit, wenn die Kinder aus dem Haus sind, eigentlich eine reizvolle Option wäre.
Soweit sind wir bis jetzt! Morgen haben wir einen Termin im Architektenbüro, in das wir gerne mit möglichst klaren Vorstellungen gehen würden, deshalb würden wir uns heute sehr über Rückmeldungen freuen, die uns dabei helfen, die hie aufgeführten Ideen zu konkretisieren und zu verbessern. Vielen Dank im Voraus für eure Anregungen!
Herzliche Grüße,
Kazazi
B
Bauexperte06.01.14 13:03Hallo,
Grüße, Bauexperte
Kazazi schrieb:Was bedeutet denn "weit außerhalb unseres Wohnortes Berlin"? Meine Frage fußt darauf, daß die Baukosten für ein Einfamilienhaus in den einzelnen Bundesländern stark schwanken.
Wir sind eine fünfköpfige Familie mit Großeltern weit außerhalb unseres Wohnorts (Berlin) und wünschen uns daher:
Grüße, Bauexperte
Hallo Bauexperte, das Bauvorhaben ist in Berlin Pankow. Das "weit außerhalb unseres Wohnortes" bezog sich darauf, dass unsere Eltern alle in NRW wohnen und deshalb also, wenn sie uns besuchen kommen, auch bei uns übernachten wollen, da sie nicht mal eben nur für den Nachmittag vorbeikommen können .
Viele Grüße, Kazazi
Viele Grüße, Kazazi
B
Bauexperte06.01.14 13:24Hallo,
Also denn ...
Einfamilienhaus, 150 qm/Wohnfläche auf Bodenplatte: TEUR 210.000,00
Weiterführung Treppe in Spitzboden: TEUR 6
Giebel, je nach Ausführung: TEUR 8-10
Baunebenkosten: TEUR 35-40
Malerarbeiten in EL: TEUR 10
Bodenbeläge in EL: TEUR 10
Außenanlagen in EL: TEUR 10
Rücklage für Extra´s: TEUR 10
Gesamtinvest ohne Garage/Carport: TEUR 306
In und um Berlin herum zu bauen, war immer schon günstiger; es sei denn, Du baust neben der Puderdose Allerdings haben sich die Baupreise zum Jahreswechsel zwischen 3 und 5% verteuert ... in allen Bundesländern.
Willst Du die TEUR 190 fürs Haus einhalten, sollte die Architektur gradlinig ausfallen und nicht mehr als 130-135 qm/Wohnfläche aufweisen. Dann solltest Du zwingend die Treppe in den Spitzboden führen und nach und nach ausbauen (ist auch für den Laien kein Problem, da sämtliche Leitungen oberhalb der Geschossdecke enden). Du mußt lediglich "vorne" bei der Planung den später höheren Heizbedarf berücksichtigen! Sonst wirst Du ein Problem mit Deinen Raumwünschen bekommen .... auch wenn Stadt & Land das natürlich ganz anders sehen wird.
Grüße, Bauexperte
Kazazi schrieb:Ja, kenne ich - ein Teil meiner Familie lebt auch in Berlin
Hallo Bauexperte, das Bauvorhaben ist in Berlin Pankow. Das "weit außerhalb unseres Wohnortes" bezog sich darauf, dass unsere Eltern alle in NRW wohnen und deshalb also, wenn sie uns besuchen kommen, auch bei uns übernachten wollen, da sie nicht mal eben nur für den Nachmittag vorbeikommen können .
Also denn ...
Einfamilienhaus, 150 qm/Wohnfläche auf Bodenplatte: TEUR 210.000,00
Weiterführung Treppe in Spitzboden: TEUR 6
Giebel, je nach Ausführung: TEUR 8-10
Baunebenkosten: TEUR 35-40
Malerarbeiten in EL: TEUR 10
Bodenbeläge in EL: TEUR 10
Außenanlagen in EL: TEUR 10
Rücklage für Extra´s: TEUR 10
Gesamtinvest ohne Garage/Carport: TEUR 306
In und um Berlin herum zu bauen, war immer schon günstiger; es sei denn, Du baust neben der Puderdose Allerdings haben sich die Baupreise zum Jahreswechsel zwischen 3 und 5% verteuert ... in allen Bundesländern.
Willst Du die TEUR 190 fürs Haus einhalten, sollte die Architektur gradlinig ausfallen und nicht mehr als 130-135 qm/Wohnfläche aufweisen. Dann solltest Du zwingend die Treppe in den Spitzboden führen und nach und nach ausbauen (ist auch für den Laien kein Problem, da sämtliche Leitungen oberhalb der Geschossdecke enden). Du mußt lediglich "vorne" bei der Planung den später höheren Heizbedarf berücksichtigen! Sonst wirst Du ein Problem mit Deinen Raumwünschen bekommen .... auch wenn Stadt & Land das natürlich ganz anders sehen wird.
Grüße, Bauexperte
Mit Euren Grundrissvorstellungen wird es Probleme geben.
Da die Maße fehlen, gehe ich einfach mal davon aus, dass Ihr den Flair 134 umgeändert habt. (ich hatte übrigens Brett vorm Kopf bei dem "Stadt-und-Land"-Hersteller - jetzt habs ich aber )
Zum einen: durch Eure "Nische" im Wohnbereich wird wahrscheinlich durch die Treppenführung keine Tür zu dem Zimmer führen können (zumindest nicht vom Flur aus). Außerdem wird der Wohnbereich Euch keine adäquate und qualitative Wohnfläche zur Verfügung stellen. An der Wand soll wohl die Couch hin, wo aber zB der Fernseher... ?
Wie viel Personen seid Ihr jetzt definitiv? 5 ? Und ein zusätzliches Gästezimmer?
Ich kann mir vorstellen, dass die Baufirma bzw der Architekt Euch mit Euren Wünschen in Bezug zur Individualität etwas enttäuschen wird... so flexibel sind sie meist nicht und die Architekten sind meist aus der Kreativen Phase herausgewachsen (gibt natürlich Ausnahmen), da jedes Typenhaus schon seine Statik mitbringt. Jede Veränderung kostet somit Geld, welches Ihr dann mitbezahlen müsst.
Nehmt auf jeden Fall bei dem Termin dieses Wissen mit, kann ja nicht schaden
Außerdem gibt es hier im Forum ein Mitglied, die auch mehrere Schlafzimmer planen musste, als vorgegeben. Es wird zwar in Bayern gebaut, aber von einem bundesweiten Hersteller... auch nicht so teuer (unter 200000) - entweder sie meldet sich hier selbst oder ich stell mal den Kontakt per PN her, wenn gewünscht.
Da die Maße fehlen, gehe ich einfach mal davon aus, dass Ihr den Flair 134 umgeändert habt. (ich hatte übrigens Brett vorm Kopf bei dem "Stadt-und-Land"-Hersteller - jetzt habs ich aber )
Zum einen: durch Eure "Nische" im Wohnbereich wird wahrscheinlich durch die Treppenführung keine Tür zu dem Zimmer führen können (zumindest nicht vom Flur aus). Außerdem wird der Wohnbereich Euch keine adäquate und qualitative Wohnfläche zur Verfügung stellen. An der Wand soll wohl die Couch hin, wo aber zB der Fernseher... ?
Wie viel Personen seid Ihr jetzt definitiv? 5 ? Und ein zusätzliches Gästezimmer?
Ich kann mir vorstellen, dass die Baufirma bzw der Architekt Euch mit Euren Wünschen in Bezug zur Individualität etwas enttäuschen wird... so flexibel sind sie meist nicht und die Architekten sind meist aus der Kreativen Phase herausgewachsen (gibt natürlich Ausnahmen), da jedes Typenhaus schon seine Statik mitbringt. Jede Veränderung kostet somit Geld, welches Ihr dann mitbezahlen müsst.
Nehmt auf jeden Fall bei dem Termin dieses Wissen mit, kann ja nicht schaden
Außerdem gibt es hier im Forum ein Mitglied, die auch mehrere Schlafzimmer planen musste, als vorgegeben. Es wird zwar in Bayern gebaut, aber von einem bundesweiten Hersteller... auch nicht so teuer (unter 200000) - entweder sie meldet sich hier selbst oder ich stell mal den Kontakt per PN her, wenn gewünscht.
Hallo & danke für die Rückmeldungen.
@ ypg: Ja, wir sind 5 Personen und wollen es auch bleiben Und ein zusätzliches Gästezimmer wäre ideal... aber wenn ich mir Bauexperte`s Rat zu Herzen nehme, vielleicht doch besser langfristig im Dach und bis das finanziell/zeitlich klappt eben mit vorübergehender Räumung eines anderen Zimmers.
Wo meinst du klappt keine Tür? Das habe ich noch nicht ganz verstanden. Wie wäre ein besseres Wohnzimmer - länger? Mehr Wand? Ich finde diese Schläuche eigentlich immer etwas doof, bin insofern für weitere Anregungen sehr dankbar!
Ansonsten gilt, dass wir voraussichtlich in relativ freier Planung bauen können - Town & Country Flair war nur eine Anregung für uns. Aber die Baufirma steht noch nicht ganz fest, morgen weiß ich hoffentlich mehr.
Dank & Gruß,
Kazazi
@ ypg: Ja, wir sind 5 Personen und wollen es auch bleiben Und ein zusätzliches Gästezimmer wäre ideal... aber wenn ich mir Bauexperte`s Rat zu Herzen nehme, vielleicht doch besser langfristig im Dach und bis das finanziell/zeitlich klappt eben mit vorübergehender Räumung eines anderen Zimmers.
Wo meinst du klappt keine Tür? Das habe ich noch nicht ganz verstanden. Wie wäre ein besseres Wohnzimmer - länger? Mehr Wand? Ich finde diese Schläuche eigentlich immer etwas doof, bin insofern für weitere Anregungen sehr dankbar!
Ansonsten gilt, dass wir voraussichtlich in relativ freier Planung bauen können - Town & Country Flair war nur eine Anregung für uns. Aber die Baufirma steht noch nicht ganz fest, morgen weiß ich hoffentlich mehr.
Dank & Gruß,
Kazazi
Ähnliche Themen