Liebe Leute,
wir planen schon lange, aber ich zweifle immer noch, ob wir den optimalen Grundriss haben.
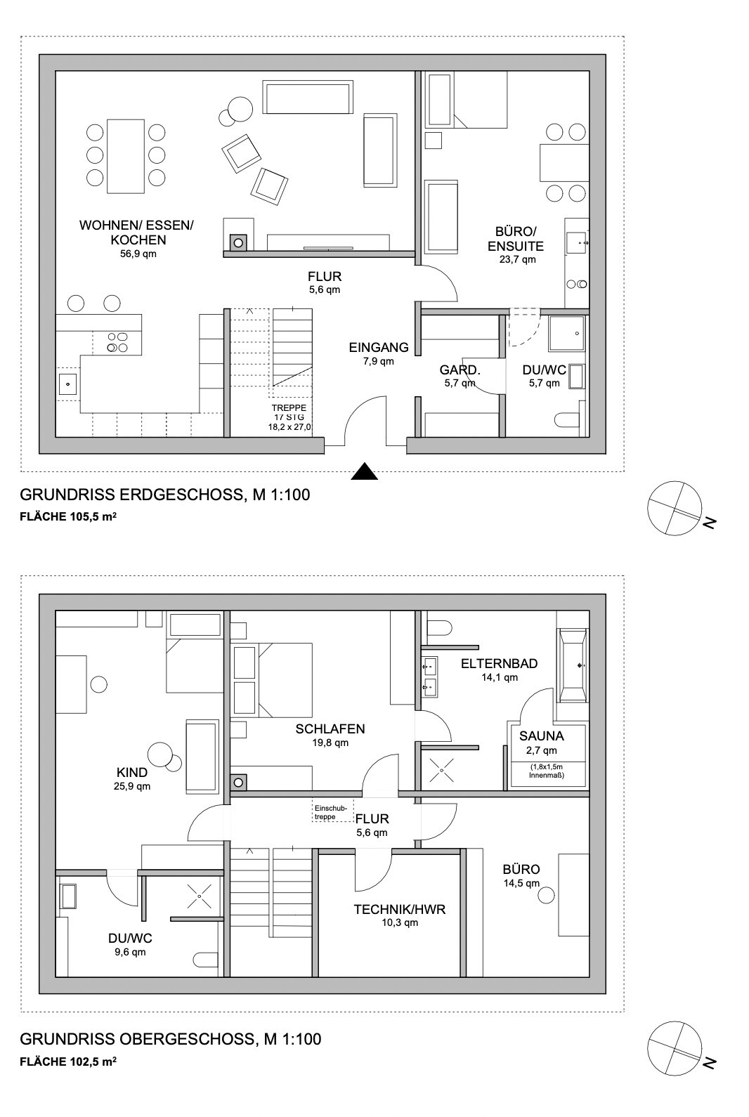
Die Außenmaße betragen 13,40 x 9,7. Wir sind 2 Erw., 1 Tochter, Sie soll ein Kinderzimmer mit eigenem Bad haben. Eltern ein "Wellnessbad mit Sauna. Kein Keller. Technik / Waschraum muss also im EG oder OG untergebracht werden.
Was fällt Euch auf, was habt ihr für Tipps? Mich würde interessieren, ob Euch das Gleiche auffällt wie mir. Ich freue mich über alle Hinweise, was wir besser machen können.
Herzlichen Dank,
Susanne

wir planen schon lange, aber ich zweifle immer noch, ob wir den optimalen Grundriss haben.
Die Außenmaße betragen 13,40 x 9,7. Wir sind 2 Erw., 1 Tochter, Sie soll ein Kinderzimmer mit eigenem Bad haben. Eltern ein "Wellnessbad mit Sauna. Kein Keller. Technik / Waschraum muss also im EG oder OG untergebracht werden.
Was fällt Euch auf, was habt ihr für Tipps? Mich würde interessieren, ob Euch das Gleiche auffällt wie mir. Ich freue mich über alle Hinweise, was wir besser machen können.
Herzlichen Dank,
Susanne
H
hanghaus200028.05.21 07:36Der Maßstab 1:100 ist nix wert ohne Bezug sag mal die Abmessung vom Haus.
Fenster braucht kein Mensch. WC im EG ueber Büro Zugang?
Fenster braucht kein Mensch. WC im EG ueber Büro Zugang?
hanghaus2000 schrieb:
sag mal die Abmessung vom Haus.Stehen doch oben...Aber arg dunkel isses schon....
Hauswirtschaftsraum viel zu klein für quasi ALLES...