Hallo,
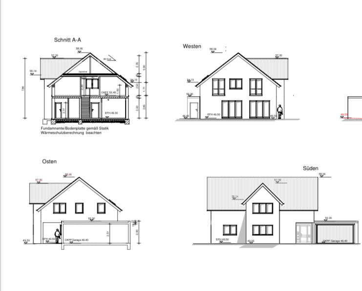
wir haben nach diversen Fehlversuchen einen Grundriss gefunden, der zumindestens unsere Vorgaben erfüllt. Wir würden uns über Meinungen/Ideen hinsichtlich der Raumaufteilung/Nutzung, besonders im EG freuen. Der fehlende Schmutzbereich scheint aktuell noch eine größere Baustelle zu sein.
Die Positionierung der Türen im Innenbereich bitte außer Acht lassen.
Bebauungsplan/Einschränkungen
Größe des Grundstücks. 463qm
Grund/Geschossflächenzahl. kein Bebauungsplan vorhanden
Baufenster, Baulinie und -grenze. ---> siehe Lageplan
Anzahl Stellplatz 2
Geschossigkeit 2
Dachform Satteldach
Stilrichtung klassisch --> keine besondere Vorgaben
Ausrichtung keine Vorgaben
Maximale Höhen/Begrenzungen. kein Bebauungsplan --> §34
Anforderungen der Bauherren
Stilrichtung, Dachform, Gebäudetyp. - klassisches Einfamilienhaus, Satteldach, monolithische Bauweise
Keller, Geschosse - 1,5 -2 Geschosse, Mehrkosten Keller zu hoch (ca.130k)
Anzahl der Personen, Alter - noch 4, ( 39J, 37, 6,4,0)
Raumbedarf im EG, OG - EG: Gym mit min16qm zwingend erforderlich, Wohnen ,Essen, Küche, Hauswirtschaftsraum, WC
- OG: Schlafen, 3x Kinderzimmer, Bad, HO
offene oder geschlossene Architektur. Offener Wohn/Essbereich
konservativ oder moderne Bauweise. eher konservativ
offene Küche, Kochinsel ja
Anzahl Essplätze 8
Kamin Ja
Balkon, Dachterrasse Nein
Garage, Carport Garage
Nutzgarten, Treibhaus. Spielrasen
Hausentwurf
Von wem stammt die Planung:
Architekt nach unseren Vorgaben
Was gefällt besonders? Warum? großer Wohn/Essbereich im EG, Platz im OG ist unserer Meinung nach gut ausgenutzt um 5 Zimmer unterzukriegen
Was gefällt nicht? Warum? noch nicht optimal finden wir die Raumaufteilung im EG, insbesondere der fehlende Schmutzbereich am Eingang. Deswegen auch dieser verwinkelte Eingangsbereich, um hier evtl. die Garderobe zu platzieren. Die Treppe hätten wir gerne gedreht, was allerdings zu Platzverlust im OG führen würde.
Preisschätzung laut Architekt/Planer: 650k. ---> laut ersten Angeboten wird es weniger, ohne Außenanlage
Persönliches Preislimit fürs Haus, inkl. Ausstattung: 800k
favorisierte Heiztechnik: Luft-Wärme-Pumpe mit zusätzlichem Wasserspeicher
Wenn Ihr verzichten müsst, auf welche Details/Ausbauten
-könnt Ihr nicht verzichten: große Garage, Gym im EG,5 Zimmer im OG
Warum ist der Entwurf so geworden, wie er jetzt ist? ZB
Architekt hat unsere Vorgaben im Rahmen der Möglichkeiten , welche die Grundstücksform bietet umgesetzt. Schlussendlich würden wir an der "Hülle" auch nichts mehr ändern wollen. Die Raumaufteilung, insbesondere im EG finden wir noch nicht optimal. Über Verbesserungsvorschläge/Ideen würden wir uns freuen.



wir haben nach diversen Fehlversuchen einen Grundriss gefunden, der zumindestens unsere Vorgaben erfüllt. Wir würden uns über Meinungen/Ideen hinsichtlich der Raumaufteilung/Nutzung, besonders im EG freuen. Der fehlende Schmutzbereich scheint aktuell noch eine größere Baustelle zu sein.
Die Positionierung der Türen im Innenbereich bitte außer Acht lassen.
Bebauungsplan/Einschränkungen
Größe des Grundstücks. 463qm
Grund/Geschossflächenzahl. kein Bebauungsplan vorhanden
Baufenster, Baulinie und -grenze. ---> siehe Lageplan
Anzahl Stellplatz 2
Geschossigkeit 2
Dachform Satteldach
Stilrichtung klassisch --> keine besondere Vorgaben
Ausrichtung keine Vorgaben
Maximale Höhen/Begrenzungen. kein Bebauungsplan --> §34
Anforderungen der Bauherren
Stilrichtung, Dachform, Gebäudetyp. - klassisches Einfamilienhaus, Satteldach, monolithische Bauweise
Keller, Geschosse - 1,5 -2 Geschosse, Mehrkosten Keller zu hoch (ca.130k)
Anzahl der Personen, Alter - noch 4, ( 39J, 37, 6,4,0)
Raumbedarf im EG, OG - EG: Gym mit min16qm zwingend erforderlich, Wohnen ,Essen, Küche, Hauswirtschaftsraum, WC
- OG: Schlafen, 3x Kinderzimmer, Bad, HO
offene oder geschlossene Architektur. Offener Wohn/Essbereich
konservativ oder moderne Bauweise. eher konservativ
offene Küche, Kochinsel ja
Anzahl Essplätze 8
Kamin Ja
Balkon, Dachterrasse Nein
Garage, Carport Garage
Nutzgarten, Treibhaus. Spielrasen
Hausentwurf
Von wem stammt die Planung:
Architekt nach unseren Vorgaben
Was gefällt besonders? Warum? großer Wohn/Essbereich im EG, Platz im OG ist unserer Meinung nach gut ausgenutzt um 5 Zimmer unterzukriegen
Was gefällt nicht? Warum? noch nicht optimal finden wir die Raumaufteilung im EG, insbesondere der fehlende Schmutzbereich am Eingang. Deswegen auch dieser verwinkelte Eingangsbereich, um hier evtl. die Garderobe zu platzieren. Die Treppe hätten wir gerne gedreht, was allerdings zu Platzverlust im OG führen würde.
Preisschätzung laut Architekt/Planer: 650k. ---> laut ersten Angeboten wird es weniger, ohne Außenanlage
Persönliches Preislimit fürs Haus, inkl. Ausstattung: 800k
favorisierte Heiztechnik: Luft-Wärme-Pumpe mit zusätzlichem Wasserspeicher
Wenn Ihr verzichten müsst, auf welche Details/Ausbauten
-könnt Ihr nicht verzichten: große Garage, Gym im EG,5 Zimmer im OG
Warum ist der Entwurf so geworden, wie er jetzt ist? ZB
Architekt hat unsere Vorgaben im Rahmen der Möglichkeiten , welche die Grundstücksform bietet umgesetzt. Schlussendlich würden wir an der "Hülle" auch nichts mehr ändern wollen. Die Raumaufteilung, insbesondere im EG finden wir noch nicht optimal. Über Verbesserungsvorschläge/Ideen würden wir uns freuen.
ypg schrieb:
Bei uns dürfen die Anschlussleitungen nicht überbaut werden, weil man dann nicht an sie rankommt. Wie ist es bei Euch? Der TK-Raum wäre dann gar nicht zulässig…Bei uns ist das auch der Fall. Der Versorger bietet uns hierzu 2 Optionen. Entweder wir lassen die Leitungen außen ums Haus legen oder (und dazu tendieren wir), der Anschlusskasten kommt in die Speisekammer und ab können wir es über den geplanten Hauswirtschaftsraum laufen lassen.kbt09 schrieb:
Gibt es auch Grundrisse mit Maßen?
Erster Eindruck ... Kochfeld/Spüle maximal weit auseinander, kein Workflow.Ja. Küchenplanung haben wir noch nicht abgeschlossen. Spüle kommt vielleicht auch neben die Spüle.