ᐅ Große Fensterfront - Sicht- und Sonnenschutz
Erstellt am: 24.03.20 10:38
Hallo,
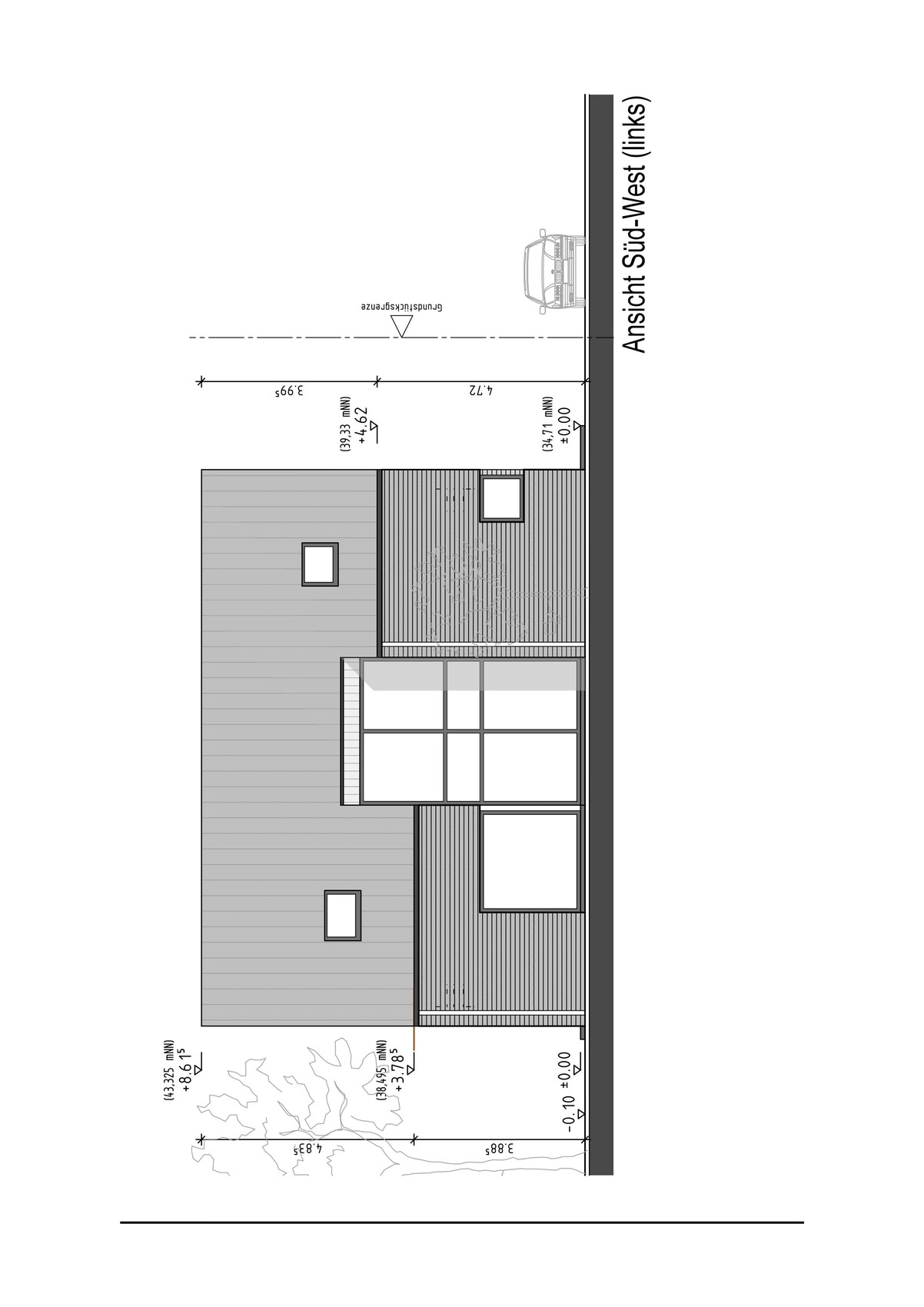
bei meinem im Bau befindlichen Haus gibt es auf einer Seite eine große Fensterfront mit ca. 3,30 m Breite und 5,50 m Höhe (von den Plänen abgelesen, siehe Foto).
Nach Wärmeschutznachweis muss hier natürlich auch ein Sonnenschutz bzw. Sichtschutz angebracht werden. An der Innenseite befindet sich keine Decke, es ist ein großer Galeriebereich. Habt ihr eine Idee, welche Art Sonnenschutz man dort anbringen kann? Bei Rollläden wäre die Gesamtfläche zu groß, ein Raffstore zu instabil und auch hier die Fläche zu groß? Zipscreen könnte bei Feuchtigkeit schimmeln? Ich bedanke mich bereits im Voraus bei Euch.
Gruß


bei meinem im Bau befindlichen Haus gibt es auf einer Seite eine große Fensterfront mit ca. 3,30 m Breite und 5,50 m Höhe (von den Plänen abgelesen, siehe Foto).
Nach Wärmeschutznachweis muss hier natürlich auch ein Sonnenschutz bzw. Sichtschutz angebracht werden. An der Innenseite befindet sich keine Decke, es ist ein großer Galeriebereich. Habt ihr eine Idee, welche Art Sonnenschutz man dort anbringen kann? Bei Rollläden wäre die Gesamtfläche zu groß, ein Raffstore zu instabil und auch hier die Fläche zu groß? Zipscreen könnte bei Feuchtigkeit schimmeln? Ich bedanke mich bereits im Voraus bei Euch.
Gruß
B
Birkenfelder24.03.20 12:54Hallo,
das ist schon reichlich Fensterfläche
Vielleicht wären Großlamellen (zu finden beim SonnenLichtManager Fa. War....) was dafür? Quasi ein starrer, nicht hoch- oder runterfahrbarer Raffstore mit trotzdem drehbaren Lamellen. Werden aber sicherlich nicht günstig sein.
"Normale" Raffstore sollten aber trotzdem auch möglich sein. Mittig kommt ja noch eine kleinere Scheibe mit rein. Wenn du die sehr dunkel bzw. in schwarz bestellst, könnte davor ein weiterer Raffstore gehängt werden. Also ein Raffstore für die großen Scheiben oben und ein separater für unten.
das ist schon reichlich Fensterfläche
Vielleicht wären Großlamellen (zu finden beim SonnenLichtManager Fa. War....) was dafür? Quasi ein starrer, nicht hoch- oder runterfahrbarer Raffstore mit trotzdem drehbaren Lamellen. Werden aber sicherlich nicht günstig sein.
"Normale" Raffstore sollten aber trotzdem auch möglich sein. Mittig kommt ja noch eine kleinere Scheibe mit rein. Wenn du die sehr dunkel bzw. in schwarz bestellst, könnte davor ein weiterer Raffstore gehängt werden. Also ein Raffstore für die großen Scheiben oben und ein separater für unten.
Welcher Teufel hat Dich denn bei so einer gigantischen Fensterfront geritten, wieso denkst Du jetzt erst daran, die zu erwartende Überdosis Besonnung im Zaum halten zu müssen (und warum wegen des "Wärmeschutznachweises" - nicht der Nachweis, sondern Du wirst da zur Dörrpflaume und ganztags die Ray Ban auf der Nase haben) ?
https://www.instagram.com/11antgmxde/
https://www.linkedin.com/company/bauen-jetzt/
https://www.instagram.com/11antgmxde/
https://www.linkedin.com/company/bauen-jetzt/
A
Alessandro24.03.20 14:48so ein Teil wirst du wohl nur von Innen Beschatten können
B
Birkenfelder24.03.20 14:50Hallo,
mir fällt jetzt auf den erst auf den zweiten Blick diese schier unendlich große quadratische Scheibe mit geschätzt 2,80m x 2,80m links daneben auf!!
Was kommt denn da an Verschattung dran? Was auf dieser Breite funktioniert, schafft meist auch noch einen halben Meter mehr Spannweite.
mir fällt jetzt auf den erst auf den zweiten Blick diese schier unendlich große quadratische Scheibe mit geschätzt 2,80m x 2,80m links daneben auf!!
Was kommt denn da an Verschattung dran? Was auf dieser Breite funktioniert, schafft meist auch noch einen halben Meter mehr Spannweite.
Wie wäre es mit einem schiebbaren Fensterladen mit verstellbaren Lamellen. So a la Scheunentor zum Schieben. Verschwindet dann bei Nichtgebrauch in einer Vormauerung der Außenfassade?
Sry aber wer hat denn das geplant? Da kommt man doch nicht erst so spät darauf?
Da wird nichts so ohne weiteres funktionieren.
Kannst mal im Gewerbebau schauen wie die das machen. Gibt ja bei manchen so vorgesetzte Metallkonstruktionen. Alles sicher astronomisch teuer und auch fraglich ob schön.
Sry aber wer hat denn das geplant? Da kommt man doch nicht erst so spät darauf?
Da wird nichts so ohne weiteres funktionieren.
Kannst mal im Gewerbebau schauen wie die das machen. Gibt ja bei manchen so vorgesetzte Metallkonstruktionen. Alles sicher astronomisch teuer und auch fraglich ob schön.
Ähnliche Themen