ᐅ Fragen zu Grundrissoptimierung EFH 8,5 x 11,5 m und optimale Grundstücksnutzung
Erstellt am: 22.04.26 23:03
H
HausamSeeH
HausamSee22.04.26 23:03Liebe Community,
ich lese seit einem Jahr interessiert mit - ebenso lange schrauben wir schon an unserem Grundriss herum. Am Montag soll nun unser Bauantrag mit dem Planungsbüro unseres GUs besprochen werden, weshalb wir wenn, dann jetzt einen kritischen Blick sehr begrüßen würden!
Lage:
Es geht um eine Lückenbebauung mit viel Fuß- und Autoverkehr (30er Zone, Schule gegenüber und touristisches Naherholungsgebiet mit begehrten Parkplätzen)
- ca 19m hohes Gebäude gegenüber auf der Westseite, daher ca 4 Monate lang keine Abendsonne (Terrasse oder Wohnzimmer Westseite daher kein Thema)
- Baufenster beginnt erst 5m hinter der westlichen Grundrisslinie, Gestaltungssatzung mit Verbot von bodentiefen Fenstern oder Lichtbändern im von der Straße einsehbaren Bereich)
Die drängendsten Fragen:
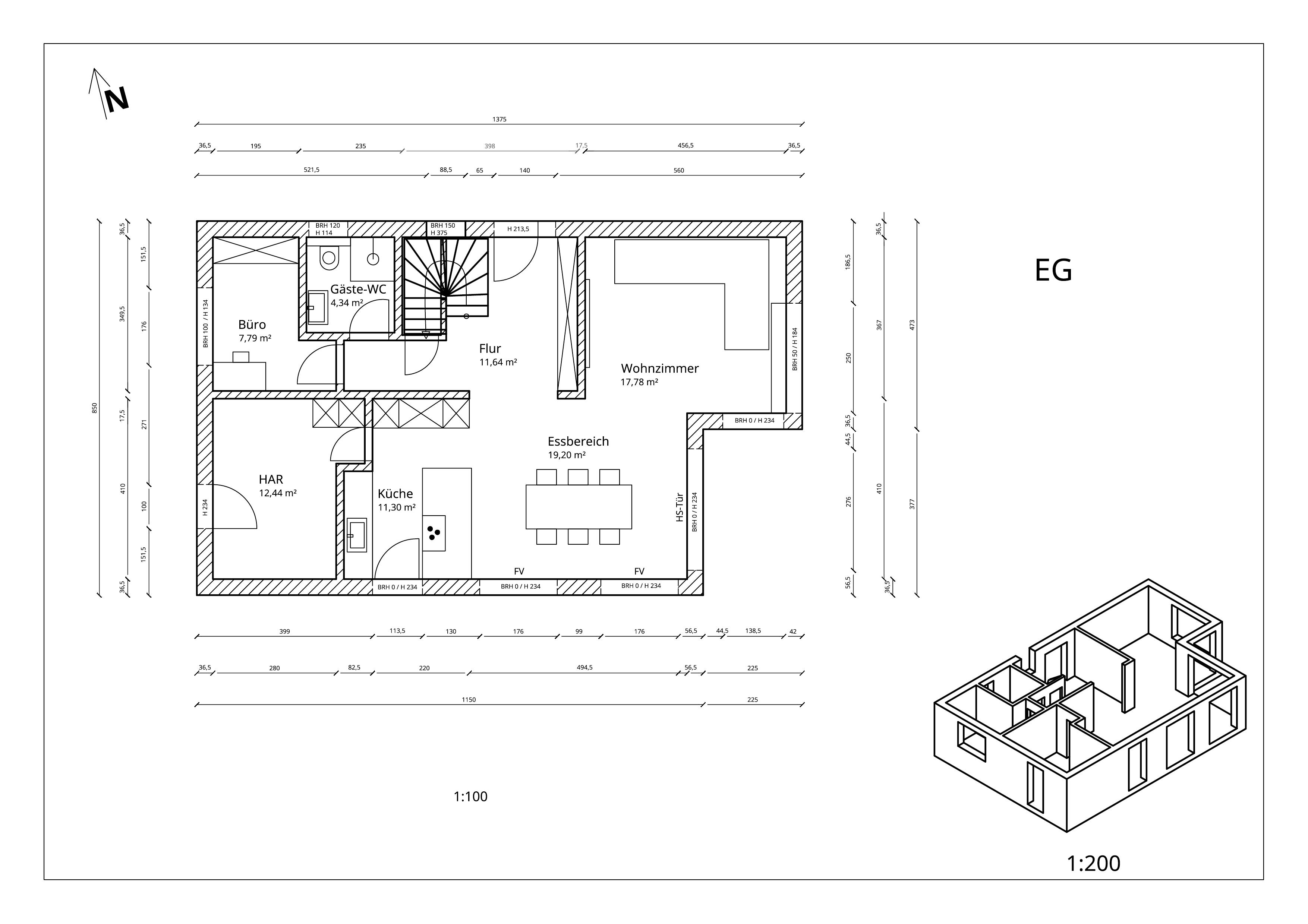
- Grundstück: wie kann es optimal genutzt werden, wo wäre ein zweiter Stellplatz möglich für Gäste, ohne die Südseite mit einer großen Garage zuzumauern oder der Küche das Licht zu nehmen? Unser Gedanke: zweite Einfahrt an der Nordwand entlang beantragen, aber 3,5m sind recht knapp für Stellplatz und Hauseingang. Wichtig ist zudem, dass ein mindestens 15 m² großer Schuppen / Abstellraum für Gartengeräte, Autoreifen, Fahrräder im vorderern Bereich erhalten bleibt.
- EG: Wie könnte man die Aufteilung Büro, möglichst großzügiges EG-Dusch-WC und den HAR mit Speisekammeranteil optimieren?
Eine Verbindung vom Hausanschlussraum in den Flur wäre uns lieber als zur Küche (wegen Schmutz von draußen), dann müsste aber der "Speisekammerteil" des HARs
abgetrennt sein für direkten Zugang zur Küche
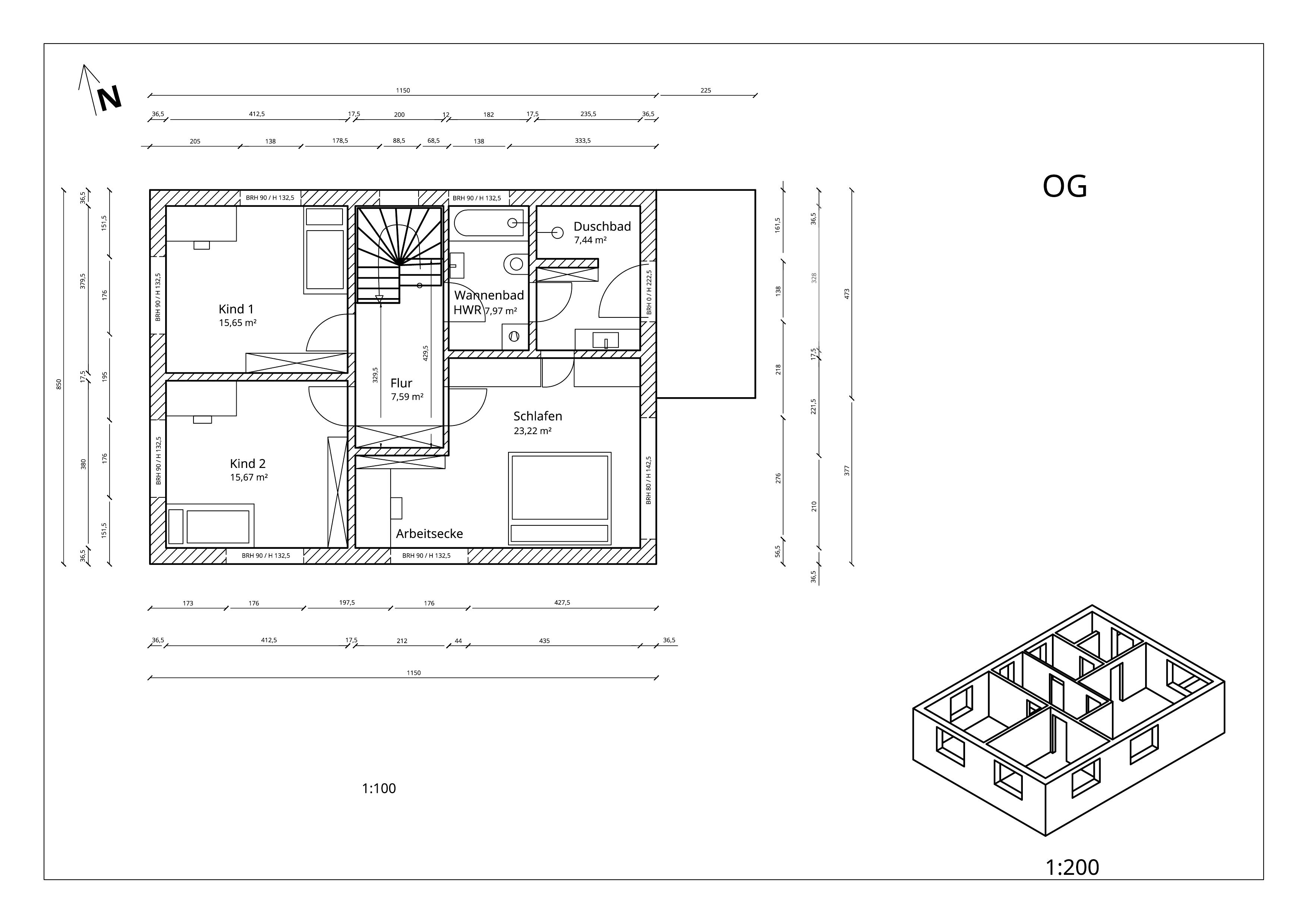
- OG: Die Idee ist, über dem Erker im EG im 1. OG einen Wäsche-Balkon einzurichten und evtl. später dort sogar eine Außentreppe nachzurüsten, um aus Wannenbad und Schlafzimmer ein abgetrenntes Mini-Apartment zu machen. Jedoch müsste dann gleich eine Art Eingangsbereich mitgedacht werden, die Balkontür also nicht vom Bad abgehen (was im Moment wegen des großen Baums privatssphäretechnisch kein Problem ist)
- Fassade: Was sind eure Gedanken zur Fensteraufteilung auf der Nordseite? Sind es zu viele Fensterformate?
- Fällt euch ansonsten etwas auf?
Danke!
Bebauungsplan (gibt es nicht, nur Erhaltungssatzung)
Größe des Grundstücks: 544 m²
Hang: nein
Grundflächenzahl: -
Geschossflächenzahl: -
Baufenster, Baulinie und –grenze: wie Nachbargrundstücke, 5m hinter Grundstücksgrenze, 0,4 H (mind. 3m) Abstandsfläche
Randbebauung: Garagen und Schuppen bis 3m Höhe und max. 9m Länge unbeheizt ohne Wohnraum
Anzahl Stellplatz: 1-2
Geschossigkeit: 2-3
Dachform: Satteldach
Stilrichtung: "neutral", da neben vielen älteren Häusern gebaut wird
Ausrichtung: Giebelseite zur Straße, Eingang hof- und straßenseitig möglich
Maximale Höhen/Begrenzungen: Firsthöhe bis 11m (bei uns ca. 9,5 m geplant)
weitere Vorgaben: aufrechtstehende rechteckförmige Fenster, bei breiten Formaten mit Flügel-Unterteilung, symmetrische Verteilung, untenliegende Fenster mindestens gleichgroß wie darüberliegende, keine straßenseitig sichtbaren Lichtbänder oder bodentiefe Fenster
Anforderungen der Bauherren
Stilrichtung, Dachform, Gebäudetyp: massives Satteldachhaus, 2 Vollgeschosse + Dachgeschoss mit 70cm Kniestock als Ausbaureserve
Kein Keller, 2,5 Geschosse
Anzahl der Personen: 2 Erwachsene, 2 Kinder (3 und 6)
Raumbedarf insg. 160 m² + Dachboden, im EG 85m², OG: 7m²
Büro Homeoffice: 1x Büro im EG, 1x Nische im Schafzimmer OG
Schlafgäste pro Jahr: 8x ein Wochenende (mit je 1 zu 4 Personen)
offene oder geschlossene Architektur: halboffen
konservativ oder moderne Bauweise: konservativ
offene Küche, Kochinsel: beides
Anzahl Essplätze 6, erweiterbar auf 10
Kamin: nein
Musik/Stereowand: nein
Balkon, Dachterrasse: Dach des Erkers am Wohnzimmer perspektivisch um Geländer erweiterbar, Wäsche-Balkon am Bad im OG, unten HS-Tür zur Terrasse
Garage, Carport: ein Carportstellplatz, daneben ein Schuppen bis zur Grundstücksgrenze, gern noch unüberdachter "Ausweichstellplatz" für Gäste
Nutzgarten, Treibhaus: nur Ziergarten
weitere Wünsche/Besonderheiten/Tagesablauf, gern auch Begründungen, warum dieses oder das nicht sein soll
Hausentwurf
Von wem stammt die Planung: uns
Was gefällt besonders? Warum?
- maximaler Abstand zum Nachbarn auf der Südseite (mehr Licht und Privatsphäre)
- Treppenhausfenster Nordseite mit unverbautem Blick auf Obstwiese und Kirche
- Bad, Schlafzimmer, Ess- und Wohnzimmer auf Ostseite (im Westen stark frequentierte Straße)
- Carport und Schuppen als Schall- und Sichtschutz zur Straße
- Kombination abgetrenntes WC und Wäscheraum im OG (Ausweichmöglichkeit bei paralleler Nutzung, Wäsche waschen wo sie anfällt)
- Durchgang Küche zum HAR für Tiefkühlschrank, Vorratsschrank und Multifunktions-Arbeitsplatte
- Sitzfenster im Wohnzimmer mit Blick in den Garten
- Wohnzimmer über Eck, etwas separiert von Küche/Essbereich
- großzügige durchgehende Garderobenwand im Eingangsbereich (Kinder, Stauraum)
- Blick in den Garten von der Haupteingangstür
- Platz für Schränke hinter den meisten Türen
- Ausbaureserve Dachgeschoss als zusätzlicher Lagerraum und Hobby-/Gästeraum
Was gefällt nicht? Warum?
- Arbeitszimmer EG verwinkelt (Dusch-WC im EG soll auch im Alter als alleiniges Bad funktionieren und auch jetzt schon ausreichend Bewegungsfläche bieten, was das Arbeitszimmer verkleinert)
- Fenstersymmetrie Nordseite sehr unruhig
- Haupteingang Nordseite evtl. zu versteckt? (Einbruchgefahr erhöht)
-Küche ggf. zu dunkel durch Carport an der Südseite und hohe Bebauung auf der anderen Straßenseite (Westen)
Preisschätzung laut Architekt/Planer: 500.000 Euro
Persönliches Preislimit fürs Haus, inkl. Ausstattung: 650.000 Euro
favorisierte Heiztechnik: LW-Wärmepumpe, Fußbodenheizung, Strom durch PV
Wenn Ihr verzichten müsst, auf welche Details/Ausbauten
-könnt Ihr verzichten: Nebeneingangstür, Kammer unter der Treppe,
-könnt Ihr nicht verzichten:
- ausreichend Platz im HAR für Trinkwasser-und Pufferspeicher, Be- und Entlüftungsanlage, Batteriespeicher (PV), Anschlüsse
- zwei Kinderzimmer mit mindestens 14m2
- an der Außenwand ausgerichtete halbgewendelte Treppe (Weiterführung ins DG bei späterem Ausbau)
Warum ist der Entwurf so geworden, wie er jetzt ist?
1-jähriges Abwägen und Weiterentwickeln, mit technischem Input vom GU
Was macht ihn in Euren Augen besonders gut oder schlecht?
suboptimale Flächennutzung durch : Einschränkungen (Fensterformate, 5m Abstandslinie, zugebaute Westseite mit viel Fußverkehr)
gut: Vorausschauende Gestaltung des EGs als alleinige Wohnetage im Alter (Wohnzimmer später als Schlafraum abtrennbar, komfortables Dusch-WC im EG, Treppe außerhalb des Wohnraums)





ich lese seit einem Jahr interessiert mit - ebenso lange schrauben wir schon an unserem Grundriss herum. Am Montag soll nun unser Bauantrag mit dem Planungsbüro unseres GUs besprochen werden, weshalb wir wenn, dann jetzt einen kritischen Blick sehr begrüßen würden!
Lage:
Es geht um eine Lückenbebauung mit viel Fuß- und Autoverkehr (30er Zone, Schule gegenüber und touristisches Naherholungsgebiet mit begehrten Parkplätzen)
- ca 19m hohes Gebäude gegenüber auf der Westseite, daher ca 4 Monate lang keine Abendsonne (Terrasse oder Wohnzimmer Westseite daher kein Thema)
- Baufenster beginnt erst 5m hinter der westlichen Grundrisslinie, Gestaltungssatzung mit Verbot von bodentiefen Fenstern oder Lichtbändern im von der Straße einsehbaren Bereich)
Die drängendsten Fragen:
- Grundstück: wie kann es optimal genutzt werden, wo wäre ein zweiter Stellplatz möglich für Gäste, ohne die Südseite mit einer großen Garage zuzumauern oder der Küche das Licht zu nehmen? Unser Gedanke: zweite Einfahrt an der Nordwand entlang beantragen, aber 3,5m sind recht knapp für Stellplatz und Hauseingang. Wichtig ist zudem, dass ein mindestens 15 m² großer Schuppen / Abstellraum für Gartengeräte, Autoreifen, Fahrräder im vorderern Bereich erhalten bleibt.
- EG: Wie könnte man die Aufteilung Büro, möglichst großzügiges EG-Dusch-WC und den HAR mit Speisekammeranteil optimieren?
Eine Verbindung vom Hausanschlussraum in den Flur wäre uns lieber als zur Küche (wegen Schmutz von draußen), dann müsste aber der "Speisekammerteil" des HARs
abgetrennt sein für direkten Zugang zur Küche
- OG: Die Idee ist, über dem Erker im EG im 1. OG einen Wäsche-Balkon einzurichten und evtl. später dort sogar eine Außentreppe nachzurüsten, um aus Wannenbad und Schlafzimmer ein abgetrenntes Mini-Apartment zu machen. Jedoch müsste dann gleich eine Art Eingangsbereich mitgedacht werden, die Balkontür also nicht vom Bad abgehen (was im Moment wegen des großen Baums privatssphäretechnisch kein Problem ist)
- Fassade: Was sind eure Gedanken zur Fensteraufteilung auf der Nordseite? Sind es zu viele Fensterformate?
- Fällt euch ansonsten etwas auf?
Danke!
Bebauungsplan (gibt es nicht, nur Erhaltungssatzung)
Größe des Grundstücks: 544 m²
Hang: nein
Grundflächenzahl: -
Geschossflächenzahl: -
Baufenster, Baulinie und –grenze: wie Nachbargrundstücke, 5m hinter Grundstücksgrenze, 0,4 H (mind. 3m) Abstandsfläche
Randbebauung: Garagen und Schuppen bis 3m Höhe und max. 9m Länge unbeheizt ohne Wohnraum
Anzahl Stellplatz: 1-2
Geschossigkeit: 2-3
Dachform: Satteldach
Stilrichtung: "neutral", da neben vielen älteren Häusern gebaut wird
Ausrichtung: Giebelseite zur Straße, Eingang hof- und straßenseitig möglich
Maximale Höhen/Begrenzungen: Firsthöhe bis 11m (bei uns ca. 9,5 m geplant)
weitere Vorgaben: aufrechtstehende rechteckförmige Fenster, bei breiten Formaten mit Flügel-Unterteilung, symmetrische Verteilung, untenliegende Fenster mindestens gleichgroß wie darüberliegende, keine straßenseitig sichtbaren Lichtbänder oder bodentiefe Fenster
Anforderungen der Bauherren
Stilrichtung, Dachform, Gebäudetyp: massives Satteldachhaus, 2 Vollgeschosse + Dachgeschoss mit 70cm Kniestock als Ausbaureserve
Kein Keller, 2,5 Geschosse
Anzahl der Personen: 2 Erwachsene, 2 Kinder (3 und 6)
Raumbedarf insg. 160 m² + Dachboden, im EG 85m², OG: 7m²
Büro Homeoffice: 1x Büro im EG, 1x Nische im Schafzimmer OG
Schlafgäste pro Jahr: 8x ein Wochenende (mit je 1 zu 4 Personen)
offene oder geschlossene Architektur: halboffen
konservativ oder moderne Bauweise: konservativ
offene Küche, Kochinsel: beides
Anzahl Essplätze 6, erweiterbar auf 10
Kamin: nein
Musik/Stereowand: nein
Balkon, Dachterrasse: Dach des Erkers am Wohnzimmer perspektivisch um Geländer erweiterbar, Wäsche-Balkon am Bad im OG, unten HS-Tür zur Terrasse
Garage, Carport: ein Carportstellplatz, daneben ein Schuppen bis zur Grundstücksgrenze, gern noch unüberdachter "Ausweichstellplatz" für Gäste
Nutzgarten, Treibhaus: nur Ziergarten
weitere Wünsche/Besonderheiten/Tagesablauf, gern auch Begründungen, warum dieses oder das nicht sein soll
Hausentwurf
Von wem stammt die Planung: uns
Was gefällt besonders? Warum?
- maximaler Abstand zum Nachbarn auf der Südseite (mehr Licht und Privatsphäre)
- Treppenhausfenster Nordseite mit unverbautem Blick auf Obstwiese und Kirche
- Bad, Schlafzimmer, Ess- und Wohnzimmer auf Ostseite (im Westen stark frequentierte Straße)
- Carport und Schuppen als Schall- und Sichtschutz zur Straße
- Kombination abgetrenntes WC und Wäscheraum im OG (Ausweichmöglichkeit bei paralleler Nutzung, Wäsche waschen wo sie anfällt)
- Durchgang Küche zum HAR für Tiefkühlschrank, Vorratsschrank und Multifunktions-Arbeitsplatte
- Sitzfenster im Wohnzimmer mit Blick in den Garten
- Wohnzimmer über Eck, etwas separiert von Küche/Essbereich
- großzügige durchgehende Garderobenwand im Eingangsbereich (Kinder, Stauraum)
- Blick in den Garten von der Haupteingangstür
- Platz für Schränke hinter den meisten Türen
- Ausbaureserve Dachgeschoss als zusätzlicher Lagerraum und Hobby-/Gästeraum
Was gefällt nicht? Warum?
- Arbeitszimmer EG verwinkelt (Dusch-WC im EG soll auch im Alter als alleiniges Bad funktionieren und auch jetzt schon ausreichend Bewegungsfläche bieten, was das Arbeitszimmer verkleinert)
- Fenstersymmetrie Nordseite sehr unruhig
- Haupteingang Nordseite evtl. zu versteckt? (Einbruchgefahr erhöht)
-Küche ggf. zu dunkel durch Carport an der Südseite und hohe Bebauung auf der anderen Straßenseite (Westen)
Preisschätzung laut Architekt/Planer: 500.000 Euro
Persönliches Preislimit fürs Haus, inkl. Ausstattung: 650.000 Euro
favorisierte Heiztechnik: LW-Wärmepumpe, Fußbodenheizung, Strom durch PV
Wenn Ihr verzichten müsst, auf welche Details/Ausbauten
-könnt Ihr verzichten: Nebeneingangstür, Kammer unter der Treppe,
-könnt Ihr nicht verzichten:
- ausreichend Platz im HAR für Trinkwasser-und Pufferspeicher, Be- und Entlüftungsanlage, Batteriespeicher (PV), Anschlüsse
- zwei Kinderzimmer mit mindestens 14m2
- an der Außenwand ausgerichtete halbgewendelte Treppe (Weiterführung ins DG bei späterem Ausbau)
Warum ist der Entwurf so geworden, wie er jetzt ist?
1-jähriges Abwägen und Weiterentwickeln, mit technischem Input vom GU
Was macht ihn in Euren Augen besonders gut oder schlecht?
suboptimale Flächennutzung durch : Einschränkungen (Fensterformate, 5m Abstandslinie, zugebaute Westseite mit viel Fußverkehr)
gut: Vorausschauende Gestaltung des EGs als alleinige Wohnetage im Alter (Wohnzimmer später als Schlafraum abtrennbar, komfortables Dusch-WC im EG, Treppe außerhalb des Wohnraums)
Anzeige
Hallo HausamSee,
schau mal hier: Fragen zu Grundrissoptimierung EFH 8,5 x 11,5 m und optimale Grundstücksnutzung. Da wird jeder fündig!
schau mal hier: Fragen zu Grundrissoptimierung EFH 8,5 x 11,5 m und optimale Grundstücksnutzung. Da wird jeder fündig!