ᐅ Erster Schritt in die neue offene Küche! Planung so machbar?
Erstellt am: 01.03.20 08:09
S
SubwklooferSubwoofer schrieb:
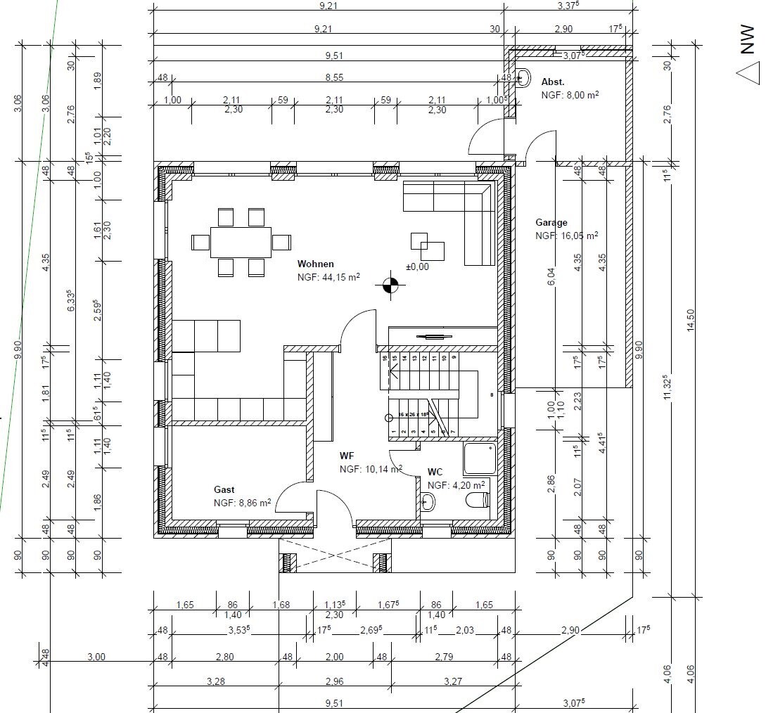
Genau das ist mein Anliegen. Länge ist 181cm + links 90cm nach innen gehenden Schrank. Breite 353cmWas ist denn jetzt planunter der Küche? Und was ist mittig des Hauses? Gibt es Potential, Wände zu verschieben etc?
Subwoofer schrieb:
Nein sogar 17500. Das habe ich aber schon kategorisch abgelehnt, da ich für selbstgekaufte Geräte wesentlich weniger zahlen würde.Einbau und Garantie kostet auch Geld. Ich würde mich jetzt an Deiner Stelle mal hier schnell, entblößen, damit die Wandplanung mal zu sehen ist, um jetzt noch das beste herauszuholen. Der Preis ist jetzt das geringste Problem bei Euch.Oder ist alles schon gemauert?
ypg schrieb:
Was ist denn jetzt planunter der Küche? Und was ist mittig des Hauses? Gibt es Potential, Wände zu verschieben etc?Also in der Tat sind die Außenwände fix. Lediglich die Innenwand könnte man etwas abändern. Andere Räume möchten wir nicht mehr ändern, deswegen gibt es die Maße, wie oben beschrieben.
Rechts die Nische ist durch das weglassen der Abtrennung etwas verlängerbar, aber auch nur etwas bei einer 11,5er Wand. Links hingegen könnte man frei in den Raum gehen und etwas mehr in den Raum gehen.
ypg schrieb:
Einbau und Garantie kostet auch Geld.Klar aber die sind auch im Preis ohne Geräte drin. Abgesehen davon übernimmt die Garantie der Geräte ja der Gerätehersteller.ich kann mir die Küche nur so vorstellen, wenn der Geschirrspüler erhöht eingebaut werden soll.

ich gehe davon aus, dass die Spüle nicht in der Insel eingebaut sein soll, obwohl es mehr Sinn macht.
Die Insel ist 240 lang, plus Blende/Deckseite.
Der Spüler ist erhöht planlinks, zwischen den hochschränken ist Platz für 2 x 80er US, einer davon für die Spüle, die man dann 15-20cm planlinks im US einbaut.
Du solltest Ecken vermeiden, weil der Raum nicht der größte ist.
ich gehe davon aus, dass die Spüle nicht in der Insel eingebaut sein soll, obwohl es mehr Sinn macht.
Die Insel ist 240 lang, plus Blende/Deckseite.
Der Spüler ist erhöht planlinks, zwischen den hochschränken ist Platz für 2 x 80er US, einer davon für die Spüle, die man dann 15-20cm planlinks im US einbaut.
Du solltest Ecken vermeiden, weil der Raum nicht der größte ist.
Aktuell geht unsere Planung zu dieser Variante eines renommierten Küchenstudio.
Lediglich das Fenster passt von der Größe und Anordnung nicht. Das muss etwas kleiner und tiefer, sodass die Arbeitsplatte als Fensterbank eingebettet werden kann.
Kurze Frage an die Experten: Die Kühlschrank- und Backofenzeile soll mit einer Leichtbauwand verkleidet werden. Wird diese besser vor oder nach dem Verputzen erstellt?



Lediglich das Fenster passt von der Größe und Anordnung nicht. Das muss etwas kleiner und tiefer, sodass die Arbeitsplatte als Fensterbank eingebettet werden kann.
Kurze Frage an die Experten: Die Kühlschrank- und Backofenzeile soll mit einer Leichtbauwand verkleidet werden. Wird diese besser vor oder nach dem Verputzen erstellt?
H
hampshire22.05.20 14:24Wird diese besser vor oder nach dem Verputzen erstellt?
Vor dem Verputzen spart Arbeitsgänge.
Vor dem Verputzen spart Arbeitsgänge.
Ähnliche Themen