ᐅ Einseitiger oder zweiseitiger Kamin
Erstellt am: 12.11.18 09:56
Liebe Forenmitglieder,
ich plane den Bau eines Einfamilienhaus und möchten auch einen Kamin einbauen lassen (gemauert).
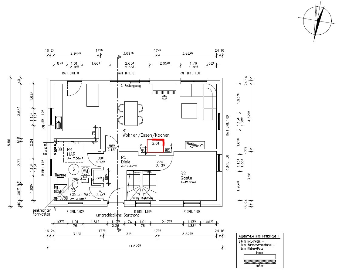
Der Kamin soll zwischen Wohn- und Essbereich platziert werden. Der Standort des Schornsteins steht schon fest. Der Kamin soll neben den Schornstein und je nach einseitiger oder zweiseitiger Ausführung würde er mehr in den Raum hineinragen (siehe Bilder).
Ich hätte prinzipiell nichts gegen einen einseitigen Kamin, ich weiß nur nicht, ob ich schräg vom Sofa aus gut in die Scheibe sehen könnte. Daher die Überlegung des L-Kamins, wo man sehr gut schräg sehen kann. Dieser würde dann natürlich schon fast als "Raumteiler" fungieren, da er sicher ca. 80cm in den Raum ragen wird.
Was haltet ihr von den Ideen oder was denkt ihr würde besser aussehen?
Danke!


ich plane den Bau eines Einfamilienhaus und möchten auch einen Kamin einbauen lassen (gemauert).
Der Kamin soll zwischen Wohn- und Essbereich platziert werden. Der Standort des Schornsteins steht schon fest. Der Kamin soll neben den Schornstein und je nach einseitiger oder zweiseitiger Ausführung würde er mehr in den Raum hineinragen (siehe Bilder).
Ich hätte prinzipiell nichts gegen einen einseitigen Kamin, ich weiß nur nicht, ob ich schräg vom Sofa aus gut in die Scheibe sehen könnte. Daher die Überlegung des L-Kamins, wo man sehr gut schräg sehen kann. Dieser würde dann natürlich schon fast als "Raumteiler" fungieren, da er sicher ca. 80cm in den Raum ragen wird.
Was haltet ihr von den Ideen oder was denkt ihr würde besser aussehen?
Danke!
A
Aliban201412.11.18 10:26Es gibt auch dreiseitige Kamine, wäre das nichts?
D
Deliverer12.11.18 10:39Die Threads mit den Vor- und Nachteilen von Kaminen im Neubau hast Du gelesen? Ich möchte die Diskussion hier nicht noch einmal führen, aber vielleicht löst das Nachlesen in dem Fall das Problem schon an der Wurzel...
Deliverer schrieb:
Die Threads mit den Vor- und Nachteilen von Kaminen im Neubau hast Du gelesen? Ich möchte die Diskussion hier nicht noch einmal führen, aber vielleicht löst das Nachlesen in dem Fall das Problem schon an der Wurzel...Verstehe ich nicht so ganz..du wärst also komplett gegen einen Kamin? Was sollte es denn für Nachteile geben?chrisw81 schrieb:
Verstehe ich nicht so ganz..du wärst also komplett gegen einen Kamin? Was sollte es denn für Nachteile geben?Hast du den erwähnten Thread gelesen? da geht's genau um dieses Thema.Ähnliche Themen