Einfamilienhaus planen: 550-qm-Grundstück, L-Form, Südausrichtung, Satteldach

4,60 Stern(e) 9 Votes
Zuletzt aktualisiert 10.12.2025
Sie befinden sich auf der Seite 3 der Diskussion zum Thema: Einfamilienhaus planen: 550-qm-Grundstück, L-Form, Südausrichtung, Satteldach
>> Zum 1. Beitrag <<

M

MachsSelbst

Weiß ich jetzt nicht, ich behaupte mein Flair 152 kann es auf 18m² weniger besser als euer 170m² Eigenentwurf.
Unsere Küche hat 17m², das Wohnzimmer 40m², Kinderzimmer knapp 15m², Arbeitszimmer 10m² im OG. Ok nur ein Bad im OG, nicht 2.

Backup-Küche ist was für Influencer Häuser, die glauben für 10 Gäste bräuchte man 2 Küchen. Du brauchst Abstellfläche, ja. Aber du brauchst nicht 3 oder 4 Backöfen. 17m² reichen locker für 30 Gäste, wenn man es kann...
 
H

hanghaus2023

Wie kommst du auf 15qm, da in der Zeichnung nur 12qm für das Hauptbad sind? Ich habe deinen OG-Grundriss noch nicht nachgebildet, um die exakten Maße zu sehen, aber um ehrlich zu sein, gefällt uns diese Variante nicht so gut. Es ist ein zusätzlicher Raum dazugekommen, den wir so nicht brauchen. Dafür ist das Haupt-Badezimmer mir persönlich zu klein geworden. Wir brauchen kein Luxus-Badezimmer, aber etwas größer darf es schon sein. Die Kinderzimmer sind vermutlich deutlich kleiner geworden, aber wahrscheinlich immer noch ausreichend groß und dafür haben wir eine Ankleide. Ich hätte nichts gegen eine Ankleide, aber mir sind die Kinderzimmer wichtiger als eine Ankleide. Wie gesagt, ich habe jetzt keine exakten Maße nachgebildet.
Da habe ich wohl etwas übertrieben. Schade das dir der Grundriss nicht gefällt. Wie gesagt ist der mMn etwas aufgeräumter. Es macht z.B. wenig Sinn Leitungen durchs ganze Haus zu ziehen. Daher der Ansatz beide Bäder nebeneinander. Wenn Ihr Euch bei dem knappen Budget die Luxusvariante Bad leisten wollt, dann streicht doch mein Kinderbad macht eine Galerie draus und dann reicht vermutlich der Bonusraum mit 9m2 auch für ein Luxusbad.

Die Kinderzimmer haben mMn 15m2 wie gewünscht.
Die zweite Variante gefällt mir schon viel besser. Bei der "Kücheninsel" sind wir uns aber nicht noch nicht sicher, ob das gut aussieht. Würde momentan dazu tendieren die Kücheninsel kleiner zu belassen und dennoch Küche und Allraum über Schiebetüren o. Ä. bei Bedarf schließen zu können.
Das kann man Alles besser planen. Nur habe ich das Problem, das das Haus generell noch zu gross ist. MMn solltest pro Etage 10m2 einsparen. Nicht das am Ende ein halb fertiges Haus da steht. Eure Ansprüche passen nicht zum Budget.
 
Y

ypg

Von mir kommen nur ein paar Hinweise, die man sich mal durch den Kopf gehen lassen sollte
Wie kommst du auf 15qm, da in der Zeichnung nur 12qm für das Hauptbad sind?
Er meint 16,5 für Bäder im OG.
Von wem stammt die Planung:
- Als Basis dienten diverse Grundrisse von begabten Forenteilnehmern
Ja, leider sieht man den Grundrissen an, dass da vieles zusammengetragen wurde. Statt dann ein rundes perfektes Haus zu entwerfen, ist ein Flickenteppich herausgekommen. Das fängt bei unharmonischen Flurformen an, geht über in teils schlecht funktionierende Musthaves wie Küche oder Garderobe, dafür unverhältnismässig große Kinderzimmer und hört bei der Statik und Außenfassade auf. Mittendrin viele Inst-Objekte bzw. Highlight der ganzen Ausstattungswelt.
  • Podesttreppe -> unser absoluter Favorit
  • nicht allzu tiefer Baukörper (9,4m) bringt mehr Gartenfläche
Das ist für eine schlüssige Planung schon ein Widerspruch: eine Podesttreppe trägt in ihrer Tiefe auf und zieht Räume in einen breiten Bereich wie auch andere Räume nach hinten.
Backup-Küche fehlt -> evtl. Ankleide kleiner
Mit Ankleide meinst Du die jetzt schon zu enge Garderobenecke?
Wohn-Ess-Bereich plus Küche, da es unseren Vorgaben entspricht. Haben wir so in einem Musterhaus gesehen und waren uns direkt einig, dass es so aussehen soll.
Ja, das kann ich nachvollziehen, dass man das mag. Ich verstehe aber ehrlich gesagt gar nicht, worauf Du Dich hier jetzt beziehst.
Wenn man sowas mit Lofttüren o. Ä. umsetzt, sieht es vermutlich viel, viel besser als als eine halbe Wand, auf die man zuläuft.
Warum dann noch mit Lofttüren kommen..
Küche und Allraum über Schiebetüren o. Ä. bei Bedarf schließen zu können.
.. und Trennwände..
Das ergibt doch dann ein ganz anderer Raum: Für Türen, egal ob Loft- oder Schiebe- braucht es Wände. Zusätzliche Wände geben einem Raum wieder eine ganz andere Note und Wirkung.
Würde momentan dazu tendieren die Kücheninsel kleiner zu belassen
Noch kleiner? Wieviel Arbeits- und Abstellfläche bleiben? Die Insel kann ja gern kleiner, den Raumverhältnissen angepasst, aber die Küche sollte ja schon funktionieren. Das sehe ich hier nicht.
Ich hätte nichts gegen eine Ankleide, aber mir sind die Kinderzimmer wichtiger als eine Ankleide.
Ob nun Ankleide oder nicht: Kinderzimmer wollen eingerichtet werden. Da sind 18qm schon eine Herausforderung, sie gemütlich zu gestalten.
Persönliches Preislimit fürs Haus, inkl. Ausstattung: 500.000
Dann würde ich eine Nummer kleiner planen. Drei Bäder, Podesttreppe, 2 Vollgeschosse plus Dach. Ohne Baunebenkosten könnte da schon eine 550 vorstehen.
Da möchte ich mal stumpf nachfragen, was eine Backup Küche ist?
Im Prinzip ist das der halb funktionierende Küchenanhängsel zur offenen Küche, die zwar nett und ach so toll aussehen soll mit Hochschrankwand und Insel, aber eigentlich nur alles verkompliziert, weil man sie nicht be-nutzen mag. In der Backup ist dann einiges an Funktion, aber auf engen Raum. Der Wunsch nach so einer Küche wächst mit diesen stapelbaren durchsichtigen Mepalbehältern und den in Modefarben eingefärbten Klappboxen jeglicher Größe für Äppel und Eier.
Diejenigen, die sie haben wollen, sind sich dieser Krux aber nicht bewusst. Sie wären eigentlich Typen einer geschlossenen Küche, aber das ist für sie ein Nogo, weil es derzeit nicht angesagt ist.
Nur aus Interesse. Wie kommt es zu diesem Wunsch - ist mir einfach fremd, aber ihr habt evtl. ganz andere Lebensgewohnheiten als wir.
Indem man vormittags arbeitet oder anderweitig busy ist und nichts von der Sonne im Haus bis 15 Uhr mitbekommt, weil man dann erst nach Hause kommt.
 
Y

ypg

Es macht z.B. wenig Sinn Leitungen durchs ganze Haus zu ziehen.
Oder anders gesagt: Eltern-Schlafzimmer Tür an Tür zum Kinderbad. Das gibt doch nur Ärger und dann Verbote. Ein gekacheltes Bad hat eine sehr schöne Akustik. Akzeptanz kann da „kompliziert“ werden. Am Ende hilft nur der unbefriedigende Bad-Tausch.
Aber letztendlich ist das auch nur die Spitze des Eisbergs.
 
W

WoodyXYZ

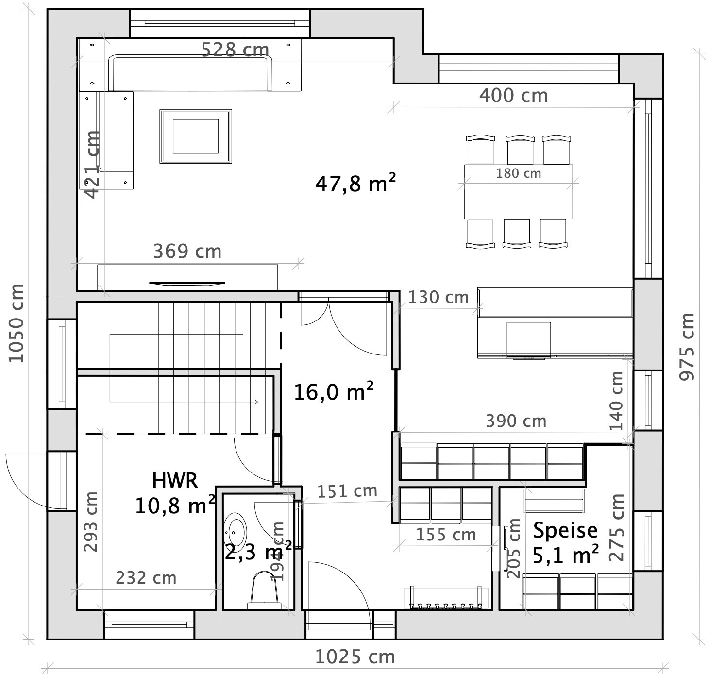
So, wir haben uns nochmal Gedanken gemacht und einen ersten Entwurf erstellt, der die Wohnfläche auf ca. 150qm reduziert. Hier gibt es mit Sicherheit noch jede Menge Optimierungspotential. Daher freue mich über euer Feedback. Ich habe dummerweise Norden und Süden vertauscht, also oben ist jetzt Süden.

Auf das Büro im EG verzichten wir bewusst, da sich beruflich eine Veränderung ergibt und wir dann lieber das Dachgeschoss bei Bedarf ausbauen werden.

Was uns sonst noch gefällt:
  • Es wirkt auf den ersten Blick nicht so gequetscht wie der erste Entwurf.
  • Garderobe hat mehr Bewegungsfreiheit.
  • Wohn-/Essbereich etwas großzügiger.
Wo wir uns unsicher sind:
  • Direkter Durchgang zur Speisekammer von Garderobe sowie Küche. Beibehalten oder auf einen (welchen) beschränken?
  • Kann man den Bereich Hauswirtschaftsraum/WC so lassen?
  • Gleiches gilt für die Aufteilung Schlafzimmer/Ankleide.
  • Der Flur im EG hat auf dem schmalsten Stück eine Breite von 1,5m und ansonsten sogar 1,85m. Das erscheint mir doch etwas zu viel des Guten, da nicht geplant ist noch weitere Garderobenschränke dort zu platzieren. Vermutlich reichen 1,2m bzw. 1,55m?
2D-Grundrissplan eines Hauses mit Wohnzimmer, Küche, Speise und Flur


Grundriss eines Hauses mit zwei Kinderzimmern, Bad, Schlafzimmer und Flur
 
Zuletzt aktualisiert 10.12.2025
Im Forum Grundrissplanung / Grundstücksplanung gibt es 2549 Themen mit insgesamt 88415 Beiträgen
Oben