Naja, du hast in dem Bereich Kochen jetzt eh nur Fenster mit relativ hoher Brüstungshöhe gedacht.
Wohnen statt Kochen .. heißt blendfreier TV und ruhige Ecke und für den öffentlicheren Bereich Terrasse/Küche/Essen die besser passenden Laufwege etc.
Wann sitzt man denn in aller Regel im Wohnbereich .. abends .. evtl. noch an den Wochenenden mal tagsüber. Der Wohnbereich wäre dann übrigens von Nordost bis Südost, was eben in aller Regel auch für den blendfreien TV sorgen würde.
Na ja, man kann es nur anregen, mal intensiv über die üblichen Raumgebräuche etc. nachzudenken.
Wohnen statt Kochen .. heißt blendfreier TV und ruhige Ecke und für den öffentlicheren Bereich Terrasse/Küche/Essen die besser passenden Laufwege etc.
Wann sitzt man denn in aller Regel im Wohnbereich .. abends .. evtl. noch an den Wochenenden mal tagsüber. Der Wohnbereich wäre dann übrigens von Nordost bis Südost, was eben in aller Regel auch für den blendfreien TV sorgen würde.
Na ja, man kann es nur anregen, mal intensiv über die üblichen Raumgebräuche etc. nachzudenken.
sn4tch schrieb:
Die Überlegung hatten wir auch schon, den Friesengiebel zur Straße auszurichten. Haben uns dann aber dagegen entschieden, weil wir das Haus ja für uns bauen und es somit danach ausrichten wollten, wie es uns gefällt und nicht, damit man den Giebel von der Straße sieht (hoffe, das war jetzt verständlich)....Nun ja: ihr seid es, die jeden Tag auf das Haus zu fahren oder gehen 🙂
Aber es ist sicherlich eure Entscheidung.
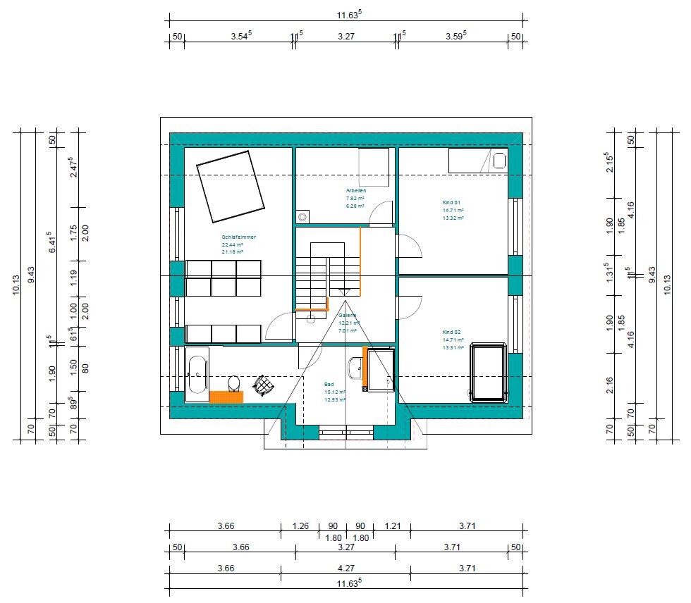
So, ich möchte mich hier nochmal zu Wort melden, da sich in den vergangenen Wochen einiges getan hat.
Einen überarbeiteten Grundriss habe ich hier noch einmal angefügt und ein paar Punkte aus vorherigen Kommentaren übernommen:
-Anpassung der Treppe, damit man im OG mehr Platz beim "Aufstieg" hat
-Anpassung der Fensterabstände zum Aufstellen von Schränken o.ä. (ist im Schlafzimmer noch nicht abgeschlossen)
-Anordnung der Sanitärarmaturen, auch wenn diese noch nicht ganz final ist (das WC wird bspw. noch verrutscht warden etc.): Die Entwässerung ist mit vom Architekten abgesegnet
-...
Für weitere Kommentare bin ich natürlich offen.


MarcWen schrieb:Wir dürfen die Garage an der Stelle planen.
Ist ja doch schon eine ordentliche Anfahrt und um einiges weiter als die üblichen 5-6 Meter,
Einen überarbeiteten Grundriss habe ich hier noch einmal angefügt und ein paar Punkte aus vorherigen Kommentaren übernommen:
-Anpassung der Treppe, damit man im OG mehr Platz beim "Aufstieg" hat
-Anpassung der Fensterabstände zum Aufstellen von Schränken o.ä. (ist im Schlafzimmer noch nicht abgeschlossen)
-Anordnung der Sanitärarmaturen, auch wenn diese noch nicht ganz final ist (das WC wird bspw. noch verrutscht warden etc.): Die Entwässerung ist mit vom Architekten abgesegnet
-...
Für weitere Kommentare bin ich natürlich offen.
Ähnliche Themen