ᐅ Einfamilienhaus für 5 Personen: Grundrissplanung auf der Zielgeraden!?
Erstellt am: 02.03.17 03:21
Z
zehn0813
Hallo zusammen!
Eigentlich befinden wir uns gefühlt auf der Zielgeraden in puncto Planung des Grundrisses. Ich würde mich daher freuen, wenn ihr euch drauf stürzt und uns ehrliches Feedback gebt.
Ich habe versucht die Aufstellung so gut es geht auszufüllen.
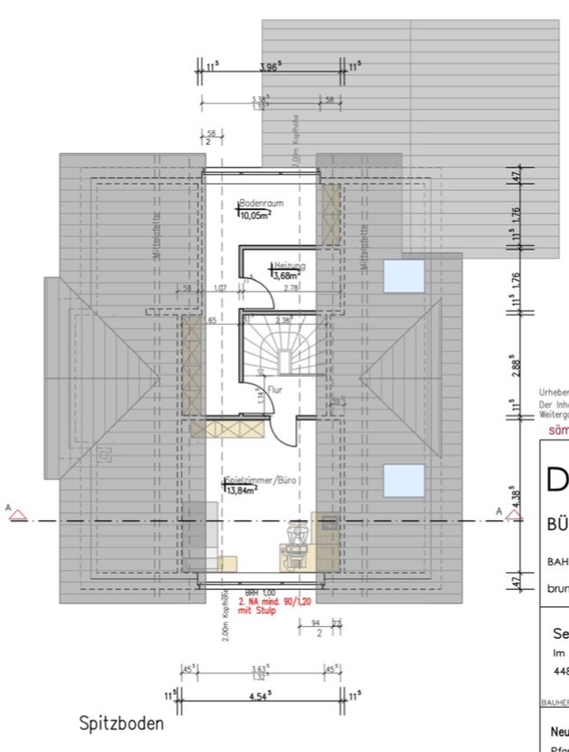
Beigefügt habe ich neben dem Erdgeschoss, dem Obergeschoss und dem Dachgeschoss, noch die passenden Ausschnitte aus dem Bebauungsplan, sowie dem Lageplan des Grundstücks.
Das Grundstück befindet sich in einer Sackgasse und wird über die süd-östliche Seite erschlossen.
Das Haus soll so auf dem Grundstück platziert werden, dass die Garage auf der nord-östlichen Grenze steht.
Nachbarn haben wir im Süden und im Osten. Im Westen ist Wald und im Norden ein breiter Grünstreifen.
Vielen Dank für euer Feedback. Vllt. habt ihr auch noch einen passenden Vorschlag in puncto Erschließung des Wohn- & Esszimmers, da uns das noch nicht gefällt.
Gruß,
Sebastian
Bebauungsplan/Einschränkungen
Anforderungen der Bauherren
Hausentwurf
Wenn Ihr verzichten müsst, auf welche Details/Ausbauten:

Eigentlich befinden wir uns gefühlt auf der Zielgeraden in puncto Planung des Grundrisses. Ich würde mich daher freuen, wenn ihr euch drauf stürzt und uns ehrliches Feedback gebt.
Ich habe versucht die Aufstellung so gut es geht auszufüllen.
Beigefügt habe ich neben dem Erdgeschoss, dem Obergeschoss und dem Dachgeschoss, noch die passenden Ausschnitte aus dem Bebauungsplan, sowie dem Lageplan des Grundstücks.
Das Grundstück befindet sich in einer Sackgasse und wird über die süd-östliche Seite erschlossen.
Das Haus soll so auf dem Grundstück platziert werden, dass die Garage auf der nord-östlichen Grenze steht.
Nachbarn haben wir im Süden und im Osten. Im Westen ist Wald und im Norden ein breiter Grünstreifen.
Vielen Dank für euer Feedback. Vllt. habt ihr auch noch einen passenden Vorschlag in puncto Erschließung des Wohn- & Esszimmers, da uns das noch nicht gefällt.
Gruß,
Sebastian
Bebauungsplan/Einschränkungen
- Größe des Grundstücks: 779m²
- Hang: --
- Grundflächenzahl:
- Geschossflächenzahl: 0,4
- Baufenster, Baulinie und -grenze: Das dunkelrote im beigefügten Ausschnitt aus dem Bebauungsplan. Sind ca. 12m breite von Ost nach West und ca. 20m - bei Grenzbebauung - von Süd nach Nord
- Randbebauung:
- Anzahl Stellplatz: keine Vorgabe
- Geschossigkeit: maximal 2 Vollgeschosse
- Dachform: Satteldach 38-48°
- Stilrichtung: Einfamilienhaus
- Ausrichtung: Firstrichtung frei wählbar
- Maximale Höhen/Begrenzungen: TF= 4,20m / FH = 9,50m
- weitere Vorgaben:
Anforderungen der Bauherren
- Stilrichtung, Dachform, Gebäudetyp: 1,5 geschossig; Satteldach; "Landhaus"
- Keller, Geschosse: kein Keller; 1,5 Geschosse + Ausbaureserve im Spitzboden + große Garage mit Satteldach
- Anzahl der Personen, Alter: 2 Erwachsene + aktuell 2 Kinder (geplant 3)
- Raumbedarf im EG, OG: im EG Küche, Esszimmer, Wohnzimmer, Hauswirtschaftsraum, Gästebad mit Dusche und ein Gäste / TV-Zimmer; im OG drei Kinderzimmer, Elternschlafzimmer, 1 Kinderbad und ein Elternbad
- Büro: wird nicht benötigt. Ggf. kommt nen Schreibtisch in den Spitzboden
- Schlafgäste pro Jahr: große Familie = häufig (Gästezimmer Pflicht)
- offene oder geschlossene Architektur: eher geschlossen
- konservativ oder moderne Bauweise: konservativ
- offene Küche, Kochinsel: separate Küche mit Schiebetür zum Esszimmer
- Anzahl Essplätze: am liebsten in der Küche Platz für 5 Personen; separat dazu das Esszimmer
- Kamin: Ja
- Musik/Stereowand: Nein
- Balkon, Dachterrasse: Nein
- Garage, Carport: Ja
- Nutzgarten, Treibhaus: Nein
- weitere Wünsche/Besonderheiten/Tagesablauf, gern auch Begründungen, warum dieses oder das nicht sein soll: beide sind im Schichtdienst tätig. Daher der "Trakt" für die Eltern. Küche soll nach vorne zur Straße hin ausgerichtet sein.
Hausentwurf
- Von wem stammt die Planung: Vorgaben von uns, Umsetzung durch einen Architekten
- Was gefällt besonders? Warum? Die Aufteilung im 1. OG ist eigentlich, bis auf die Fenster im Nordosten, nahezu perfekt
- Was gefällt nicht? Warum? Der Zugang zum Wohnzimmer. Uns wäre ein Zugang zum Esszimmer lieber über das sich dann das Wohnzimmer erschließt. Dann müsste die Küche aber kleiner oder die Wand weggelassen werden, was wir eigentlich nicht wollen. Skeptisch sind wir zudem bei der Größe des Hauswirtschaftsraum, da hier wohl auch die gesamte Heizung, Technik und Kontrollierte-Wohnraumlüftung untergebracht werden muss
- Preisschätzung lt Architekt/Planer: 295.000 Euro
- Persönliches Preislimit fürs Haus, inkl Ausstattung: 300.000€
- favorisierte Heiztechnik: ursprünglich Sole-Wasser-Wärmepumpe / mittlerweile doch eher Gas
Wenn Ihr verzichten müsst, auf welche Details/Ausbauten:
- könnt Ihr verzichten: einen Kompromiss sind wir bereits der Treppe eingegangen. Eigentlich wollten wir gerne eine Podesttreppe um 90° oder 180° gedreht und keine gewendelte Treppe.
- könnt Ihr nicht verzichten: Der abgetrennte Bereich der Eltern mit Ankleide (Schichtdienst). Das Kinderbad im OG (wir haben zwei Töchter). Das Gästezimmer und Gästebad mit Dusche im EG (viel und oft Besuch).