ᐅ Eigener Grundrissentwurf Stadtvilla 180qm mit Doppelgarage Feedback
Erstellt am: 30.12.22 10:14
D
dimba234Was ich noch unbedingt erwähnen möchte und mir tatsächlich nicht mehr so richtig bewusst war, da wir in den letzten Tagen und Wochen doch so einige Häuser gesehen haben: Unser ursprünglicher Grundriss ist sehr stark am Maxime 710 II angelehnt. Von daher wundert es mich doch etwas, dass zumindest das Konzept und die Aufteilung der Zimmer meinem Empfinden nach hier so durchgefallen sind (meine Unzulänglichkeiten bezüglich der Treppe und Türenanordnung jetzt mal ausgenommen) 🙂
X
xMisterDx31.12.22 15:56Nunja, ich empfang es als großen Vorteil, dass ich bei den Anbietern, die in meiner engeren Auswahl waren, schonmal den "schlüsselfertig ab"-Preis sehen konnte.
Damit konnte man nämlich eine bestimmte Hausgröße oder Form direkt ausschließen, zu dem Sento 504 hätte ich z.B. gar nicht hinfahren bzw. weiter drüber nachdenken müssen, nicht meine Preisliga.
Was daran so kompliziert sein soll, sowas in eine Website zu integrieren, das weiß vermutlich nur derjenige, der sich nicht Programmierung beschäftigt.
Der größte Kritikpunkt an deinem Entwurf war, dass die Treppe im EG nicht zum OG passt. Das ist nun wahrlich keine Kleinigkeit, denn dadurch passt rein gar nix mehr zusammen.
Und um meine These von oben zu bestätigen:
Hätte Viebrockhaus auf seiner Internetseite den "ab xxx.xxx EUR bist du an Bord"- Preis angegeben, hättet ihr über dieses Haus in der Größe gar nicht mehr nachgedacht.
Eine unverbindliche Preisanfrage würde bei denen höchstwahrscheinlich ab 4xx.000 EUR ergeben und ist damit für ein Gesamtbudget von 500.000 "way out of range"...
Damit konnte man nämlich eine bestimmte Hausgröße oder Form direkt ausschließen, zu dem Sento 504 hätte ich z.B. gar nicht hinfahren bzw. weiter drüber nachdenken müssen, nicht meine Preisliga.
Was daran so kompliziert sein soll, sowas in eine Website zu integrieren, das weiß vermutlich nur derjenige, der sich nicht Programmierung beschäftigt.
Der größte Kritikpunkt an deinem Entwurf war, dass die Treppe im EG nicht zum OG passt. Das ist nun wahrlich keine Kleinigkeit, denn dadurch passt rein gar nix mehr zusammen.
Und um meine These von oben zu bestätigen:
Hätte Viebrockhaus auf seiner Internetseite den "ab xxx.xxx EUR bist du an Bord"- Preis angegeben, hättet ihr über dieses Haus in der Größe gar nicht mehr nachgedacht.
Eine unverbindliche Preisanfrage würde bei denen höchstwahrscheinlich ab 4xx.000 EUR ergeben und ist damit für ein Gesamtbudget von 500.000 "way out of range"...
dimba234 schrieb:
Von daher wundert es mich doch etwas, dass zumindest das Konzept und die Aufteilung der Zimmer meinem Empfinden nach hier so durchgefallen sindDas Problem ist halt, dass die Räume bei korrekt übereinander gelegter Treppe nicht mehr so funktionieren, wie du es gezeichnet hast. Daher ist es im Grunde genommen ein unvollständiger Entwurf.dimba234 schrieb:
Vermutlich wird es das beste sein, mit unseren konkreten Vorstellungen auf die Baufirmen zuzugehen und ein "Typenhaus" ggf. geringfügig anzupassen.Das denke ich auch.dimba234 schrieb:
Ich kann mir das gerade nicht so richtig vorstellen. So in der Art wie auf meinem Bild - von der Ecke bis zur Garage? Oder hast du ein konkretes Beispiel?quasi so, in rot gezeichnet. EG wird eingezogen, also einen Gehweg generieren. OG bleibt dabei ein Rechteck und bedeckt den „Gehweg“.
In grün (Farbe sagt nichts aus) eine schlechte Idee: direkter Zugang von Garage erübrigt sich bei dieser Eingangstürlage. Die ist mit ihrem Abstand von 2 Metern zum Garagentor praktischer als die innenliegende Verbindungstür. Außerdem geht die Tür in genau falsche Richtung auf. Das ist ein Fehler von vielen, die passieren, wenn man selbst rumdoktort.
dimba234 schrieb:
Warum muss immer alles so kompliziert sein? Am Sento gefällt mir die um 90° gedrehte Treppe zur längeren Hausseite hin - im Gegensatz zu unserem Entwurf. Vermutlich wird es das beste sein, mit unseren konkreten Vorstellungen auf die Baufirmen zuzugehen und ein "Typenhaus" ggf. geringfügig anzupassen. [...] Ich arbeite an 1-2 Tagen die Woche von zu Hause aus. Meine Frau muss jeden Abend Unterricht vorbereiten.Da ist nichts kompliziert. Es gibt genügend unzählige Bauvorschläge, um auf "transgene Inspirationen" verzichten zu können. Die Betonung beim Typenhaus liegt auf der "geringen" Anpassung - was hier jedoch tatsächlich komplizierter wird (ich berate jedoch gern). Die Schilderung des Arbeitszimmergrundes klingt nicht nach leicht streichbarem Nicetohave. Ein solches de facto "drittes Kinderzimmer" läßt sich allerdings nicht mal eben so "durch Wändeschieberei dazwischenquetschen". Im übrigen: bei budget- und/oder raumzahlbedingten mindestens "mittelgroßen Operationen" nimmt man besser ein zu kleines Modell und vergrößert / erweitert es, als ein zu großes zu schrumpfen oder ein größenpassendes umzuschneidern. Alles keine Hexerei, wenn man es als "täglich´ Brot" macht ;-)dimba234 schrieb:
In meinem Beitrag ist das Bild mit gedrehtem OG angehängt.Das einzelne Bild des OG habe ich durchaus gesehen, aber die Operation habe ich "sprachlich" dennoch nicht nachvollzogen. Inzwischen denke ich, die Erklärung sei wohl ganz einfach: Du meintest offenbar, das OG einzeln zu spiegeln. Das geht aber prinzipiell eigentlich nicht, da dieses Modell eine außermittig gelegene Treppe hat. Im Zusammenhang mit der Änderung von Kniestockhaus auf "Stadtvilla" könntest Du Glück haben, daß es im Einzelfall doch gerade so hinhaut (wobei die Konsequenzen für die Fallrohrverläufe nicht ganz von Pappe sind).dimba234 schrieb:
Was ich noch unbedingt erwähnen möchte und mir tatsächlich nicht mehr so richtig bewusst war, da wir in den letzten Tagen und Wochen doch so einige Häuser gesehen haben: Unser ursprünglicher Grundriss ist sehr stark am Maxime 710 II angelehnt.Beim Anblick des EG des Sento 504 habe ich gleich an das Maxime AchthundertzehnZwo denken müssen 🙂xMisterDx schrieb:
Hätte Viebrockhaus auf seiner Internetseite den "ab xxx.xxx EUR bist du an Bord"- Preis angegeben, hättet ihr über dieses Haus in der Größe gar nicht mehr nachgedacht.Der Preis eines Viebrockhaus trifft nur eine Aussage über dieses Viebrockhaus, oder ein Viebrockhaus oder Gussek Haus gleicher Größe, nicht jedoch über ein Fingerhaus. Und selbst zwischen Viebrockhaus und Gussek Haus wäre zu bedenken, daß deren Regionalpreisabweichungen nicht denselben "Regeln" folgen.https://www.instagram.com/11antgmxde/
https://www.linkedin.com/company/bauen-jetzt/
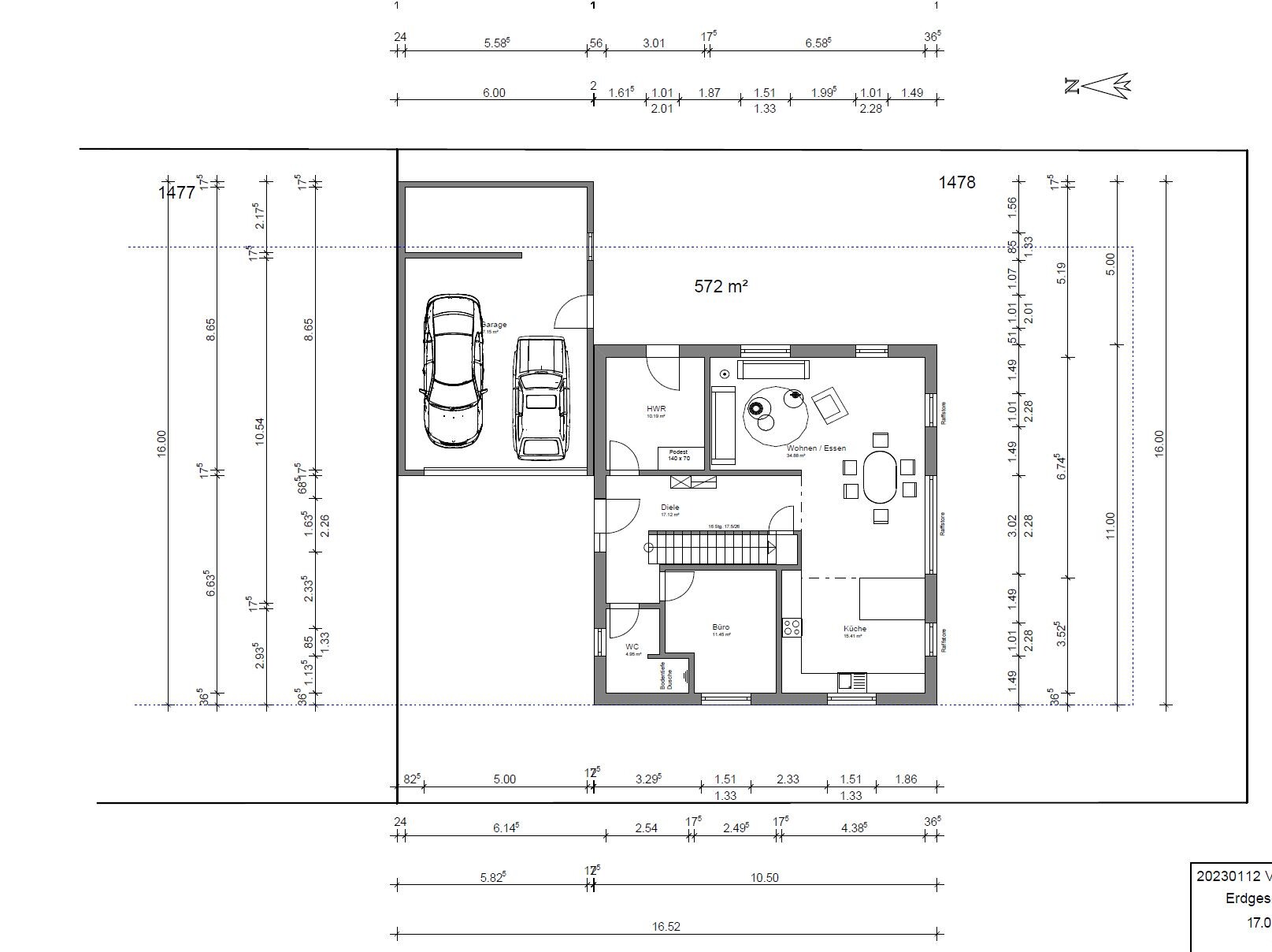
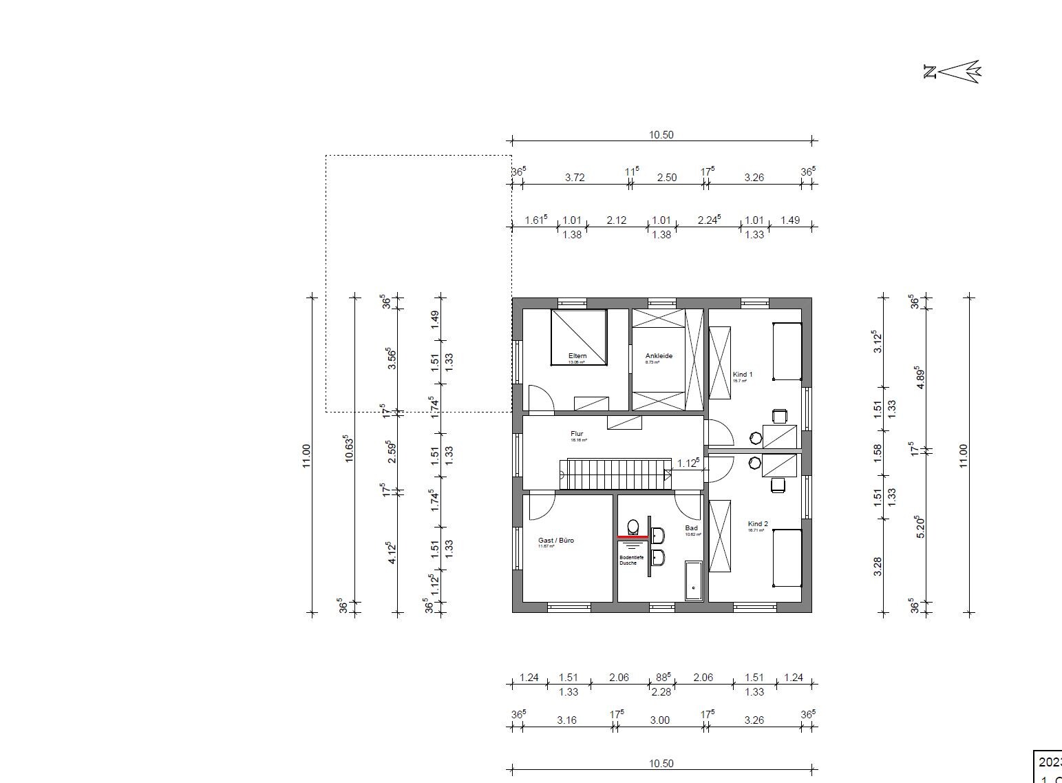
Wir haben unseren Vorentwurf erhalten. An sich gefällt es gut. Bis auf die Sofaecke, die wahrscheinlich doch etwas zu knapp ist - dafür ist der Küchenbereich riesig. Deshalb werden wir die Küche mit dem Wohnbereich tauschen.
Außerdem haben wir erstmal ohne das auskragende OG über dem Eingangsbereich geplant (tolle Idee von ypg) und nur mit einer Überdachung, wobei die auf dem Entwurf noch nicht zu sehen ist. Laut GU wären es ca. 11.000,- Eur mehr (7m Breite, 1m Tiefe) für den Erker.
Welche groben Schnitzer fallen euch auf?


Außerdem haben wir erstmal ohne das auskragende OG über dem Eingangsbereich geplant (tolle Idee von ypg) und nur mit einer Überdachung, wobei die auf dem Entwurf noch nicht zu sehen ist. Laut GU wären es ca. 11.000,- Eur mehr (7m Breite, 1m Tiefe) für den Erker.
Welche groben Schnitzer fallen euch auf?
Ähnliche Themen