Doppelhaushälfte: Abschätzbare Kosten richtig und Machbar, Erfahrungen?

4,70 Stern(e) 6 Votes
Zuletzt aktualisiert 28.11.2025
Sie befinden sich auf der Seite 3 der Diskussion zum Thema: Doppelhaushälfte: Abschätzbare Kosten richtig und Machbar, Erfahrungen?
>> Zum 1. Beitrag <<

11ant

11ant

Nachbar kenn ich sogar.Der wird baulich nichts verändern, wir auch nicht.Der keller war vor dem Starkregen an einer Seite nass,
Du kennst ja nur den jetzigen Nachbarn, aber nicht seine Erben oder sonstigen Nachbesitzer. Ich meinte den Worst Case, daß Eure Häuser eine einteilige Kommunwand und einen niedrigen oder Teilkeller haben, und nur einer der Hälftenbesitzer mit dem Raumangebot nicht zufrieden ist und anbauen, aufstocken oder abreißen will. Wenn Ihr beide jetzt nur den Erwartungshorizont habt, im wesentlichen würden jüngere Kabel genügen, ist das nicht dauerhaft garantiert und in heutiger Zeit eher untypisch. Fast jeder Käufer oder Erbe betagter u100qm-Doppelhaushälfte hat "höhere" Ziele. Spätestens nach der Erkenntnis "ui, so wenig kostet auch schon so viel Geld" wollen die meisten mehr oder gleich abreißen.
 
B

bananajohannes

Du kennst ja nur den jetzigen Nachbarn, aber nicht seine Erben oder sonstigen Nachbesitzer. Ich meinte den Worst Case, daß Eure Häuser eine einteilige Kommunwand und einen niedrigen oder Teilkeller haben, und nur einer der Hälftenbesitzer mit dem Raumangebot nicht zufrieden ist und anbauen, aufstocken oder abreißen will. Wenn Ihr beide jetzt nur den Erwartungshorizont habt, im wesentlichen würden jüngere Kabel genügen, ist das nicht dauerhaft garantiert und in heutiger Zeit eher untypisch. Fast jeder Käufer oder Erbe betagter u100qm-Doppelhaushälfte hat "höhere" Ziele. Spätestens nach der Erkenntnis "ui, so wenig kostet auch schon so viel Geld" wollen die meisten mehr oder gleich abreißen.
Das Wohngebiet ist als Gewerbe / Industriegebiet mit wohnbaulichen Einschränkungen ausgewiesen. Die baupolizeilich genehmigten Wohnhäuser geniessen Bestandsschutz.
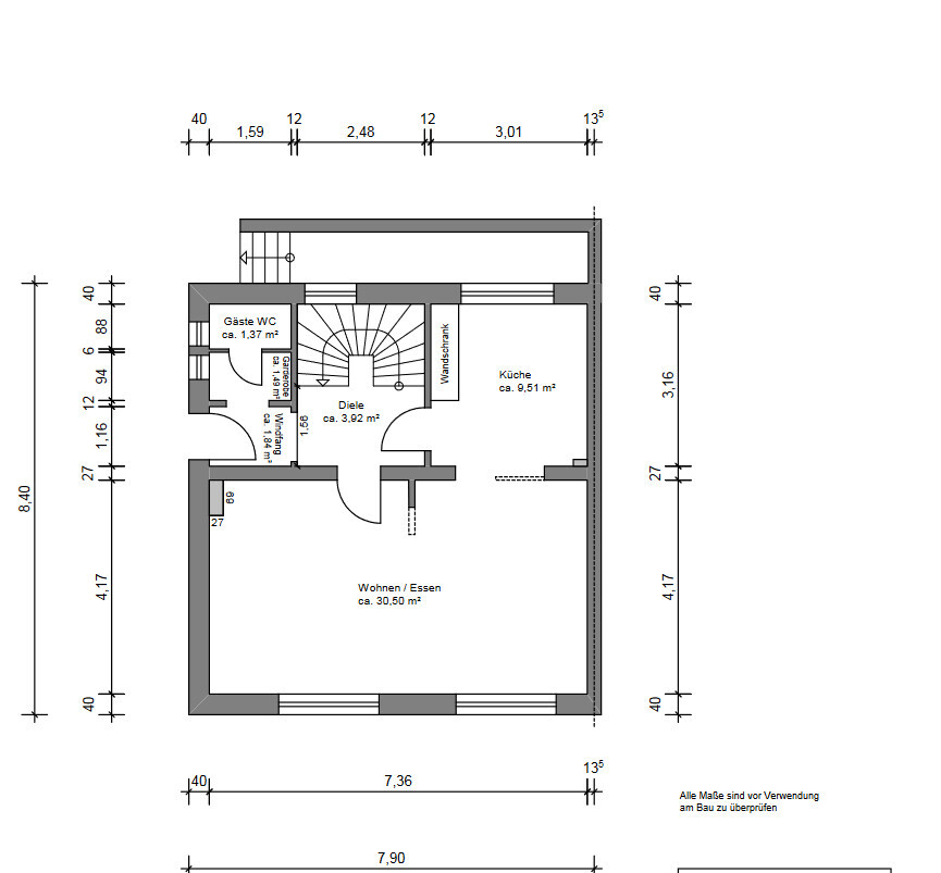
Schau mal im Bild hinsichtlich der Wand.
Der Nachbar ist ein Familienmitglied.
Grundriss eines Hauses mit Wohnen/Essen, Küche, Diele, Gäste-WC und Treppenhaus.
 
Zuletzt aktualisiert 28.11.2025
Im Forum Liquiditätsplanung / Finanzplanung / Zinsen gibt es 3220 Themen mit insgesamt 71193 Beiträgen
Oben