ᐅ Baustraße Hinterliegergrundstück - Leitungen vorher verlegen?
Erstellt am: 02.02.21 21:36
F
Fapone88Hallo, hätte mal eine Frage zur Baustraße und eine bzgl. der Leitungsverlegung.
da bei mir auf einem Hinterliegergrundstück gebaut werden soll, muss ich die Baustraße auf meinem Wegerecht (3m breit) erstellen. Während der Bauphase stellt mir der Eigentümer des vorderen Grundstückes netterweise 4m zur Verfügung. Sodass ich auf dieser die Baustraße für die Baufahrzeuge bis 40t erstelle.
Reicht hierfür folgendes Betonrecycling in 30cm Stärke? RC-Tragschicht 0-45, B2 (150MN/m²)
Einen Ausschnitt des Bodengutachtens füge ich bei. Ich würde natürlich die 30cm Mutterboden abtragen. Frage ist ob der vorhandene Sand als untere Tragschicht unterm Recycling ausreichend ist?
Die weitere Frage:
Ich denke es macht natürlich am meisten Sinn, die Leitungen bzw. die Leerrohre (Trinkwasser, Abwasser, Strom, Telekom und 1-2 Leerrohre oder Wellrohre für mich privat) vor Erstellung der Baustraße im Erdreich zu verlegen richtig? So dass ich die Baustraße dann gleich als Unterbau für meinen späteren Weg nutzen kann.
Ich müsste auch einen Abwasserschacht erstellen und einen Schacht für den Wasserzähler.
Die 2 Schächte würde ich vorsichtshalber erst einbauen, nachdem die schweren Fahrzeuge drüber gefahren sind oder könnte man die gleich mit verbauen? So müsste ich halt nur punktuell den Weg dort aufbuddeln wo die Schächte hin sollen und müsste nicht die gesamte Baustraße zwecks Leitungsverlegung erneut aufreißen.
Oder ist generell davon abzuraten ?
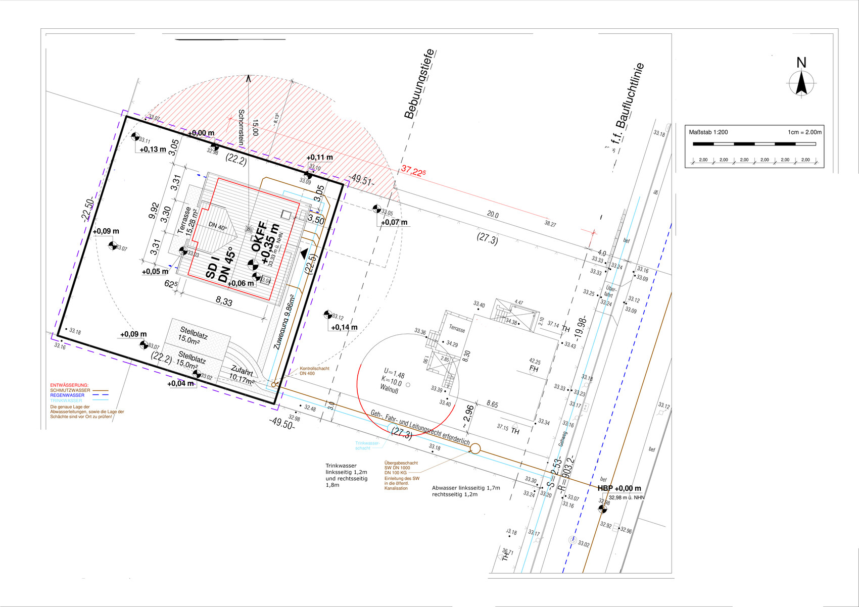
Leitungsführung auf beigefügten Lageplan eingezeichnet.
Diese sind so geplant das diese nicht direkt unter den Fahrspuren liegen.
Wo würdet ihr jedoch Strom und Telekom verlegen?
Für Trinkwasser bzw. der Wasseruhr würde ich einen Teleskopschacht von EWE oder Plasson verbauen.
Gibt es solche auch fürs Abwasser oder werden da Standardmäßig die großen Beton Schächte verwendet?
Der Abwasserschacht sollte so nah es geht zur Straße, also 1,5m von der Straße entfernt.
Der Trinkwasserschacht wäre egal, da ich für den Anschluss hier auch Leerrohre verlegen kann.
Kann ich die Baustraße in 30cm Stärke dann problemlos als Unterbau nutzen oder wird sie zu stark abgenutzt ? das ich die Seiten aufmachen muss später um die Borden zu setzen ist klar. Zumal ich ja eh von 4m auf die 3m fürs Wegerecht zurück bauen muss.
Da ich natürlich noch nicht genau weiß, wie hoch später meine richtige Einfahrt wird, würde ich die Baustraße erstmal 10cm unter Straßenniveau lassen, damit ich sie später mit Split und Pflaster aufs selbe Niveau kriege. Notfalls kann ich ja mit Recycling erneut auffüllen und hätte dann bspw. 33-34cm Tragschicht statt 30cm. oder?
Denke das ist besser, als sie eben zu machen und abtragen zu müssen, da beim Abtragen ja ansonsten nur noch 20-25cm als Tragschicht vorhanden sind, was später zu wenig ist richtig?
Die Schächte kann ich später ja auch noch problemlos Zentimeter genau auf die Endgültige Pflasterhöhe verkürzen bzw. verlängern richtig?
Dankeschön



da bei mir auf einem Hinterliegergrundstück gebaut werden soll, muss ich die Baustraße auf meinem Wegerecht (3m breit) erstellen. Während der Bauphase stellt mir der Eigentümer des vorderen Grundstückes netterweise 4m zur Verfügung. Sodass ich auf dieser die Baustraße für die Baufahrzeuge bis 40t erstelle.
Reicht hierfür folgendes Betonrecycling in 30cm Stärke? RC-Tragschicht 0-45, B2 (150MN/m²)
Einen Ausschnitt des Bodengutachtens füge ich bei. Ich würde natürlich die 30cm Mutterboden abtragen. Frage ist ob der vorhandene Sand als untere Tragschicht unterm Recycling ausreichend ist?
Die weitere Frage:
Ich denke es macht natürlich am meisten Sinn, die Leitungen bzw. die Leerrohre (Trinkwasser, Abwasser, Strom, Telekom und 1-2 Leerrohre oder Wellrohre für mich privat) vor Erstellung der Baustraße im Erdreich zu verlegen richtig? So dass ich die Baustraße dann gleich als Unterbau für meinen späteren Weg nutzen kann.
Ich müsste auch einen Abwasserschacht erstellen und einen Schacht für den Wasserzähler.
Die 2 Schächte würde ich vorsichtshalber erst einbauen, nachdem die schweren Fahrzeuge drüber gefahren sind oder könnte man die gleich mit verbauen? So müsste ich halt nur punktuell den Weg dort aufbuddeln wo die Schächte hin sollen und müsste nicht die gesamte Baustraße zwecks Leitungsverlegung erneut aufreißen.
Oder ist generell davon abzuraten ?
Leitungsführung auf beigefügten Lageplan eingezeichnet.
Diese sind so geplant das diese nicht direkt unter den Fahrspuren liegen.
Wo würdet ihr jedoch Strom und Telekom verlegen?
Für Trinkwasser bzw. der Wasseruhr würde ich einen Teleskopschacht von EWE oder Plasson verbauen.
Gibt es solche auch fürs Abwasser oder werden da Standardmäßig die großen Beton Schächte verwendet?
Der Abwasserschacht sollte so nah es geht zur Straße, also 1,5m von der Straße entfernt.
Der Trinkwasserschacht wäre egal, da ich für den Anschluss hier auch Leerrohre verlegen kann.
Kann ich die Baustraße in 30cm Stärke dann problemlos als Unterbau nutzen oder wird sie zu stark abgenutzt ? das ich die Seiten aufmachen muss später um die Borden zu setzen ist klar. Zumal ich ja eh von 4m auf die 3m fürs Wegerecht zurück bauen muss.
Da ich natürlich noch nicht genau weiß, wie hoch später meine richtige Einfahrt wird, würde ich die Baustraße erstmal 10cm unter Straßenniveau lassen, damit ich sie später mit Split und Pflaster aufs selbe Niveau kriege. Notfalls kann ich ja mit Recycling erneut auffüllen und hätte dann bspw. 33-34cm Tragschicht statt 30cm. oder?
Denke das ist besser, als sie eben zu machen und abtragen zu müssen, da beim Abtragen ja ansonsten nur noch 20-25cm als Tragschicht vorhanden sind, was später zu wenig ist richtig?
Die Schächte kann ich später ja auch noch problemlos Zentimeter genau auf die Endgültige Pflasterhöhe verkürzen bzw. verlängern richtig?
Dankeschön
Wer baut denn das Haus?
Der sollte doch auch die Baustrasse errichten.
Stimm das mit dem Unternehmer ab.
Deine Ideen sind ja schon recht ausgereift.
Wie soll denn spaeter die Zufahrt gestaltet werden?
Von nix machen Baustrasse benutzen bis aspaltiert mit Randeifassung ist doch schon ein grosser Unterschied.
Was sind denn die Bedingungen des Grundstuecksbesitzers, der die Wege und Leitungsrechte genehmigt hat.
Eine gute Loesung ist mMn in der Fahrspur Rasengittersteine der Rest begruent.
Der sollte doch auch die Baustrasse errichten.
Stimm das mit dem Unternehmer ab.
Deine Ideen sind ja schon recht ausgereift.
Wie soll denn spaeter die Zufahrt gestaltet werden?
Von nix machen Baustrasse benutzen bis aspaltiert mit Randeifassung ist doch schon ein grosser Unterschied.
Was sind denn die Bedingungen des Grundstuecksbesitzers, der die Wege und Leitungsrechte genehmigt hat.
Eine gute Loesung ist mMn in der Fahrspur Rasengittersteine der Rest begruent.
Da ich teils als Hiwi mitgemacht habe, konnte ich gucken,
30cm Mutterboden abgetragen,
Graben 50cm breit, 80-150cm tief, abgestützt, ausgehoben, 1,8m von der Grenze,
alle Leitungen reingelegt,
mit Feinsand abgedeckt,
25-30cm Recycling 3,5m breit Baustraße bis 1m vor Baustelle,
Hausbau, alle Leitungen angeschlossen,
an Grenze und 2,8m Kanten gesetzt,
Recycling begradigt, Split, 8cm Pflaster, fertig.
Aussage des Tiefbauers, hält da Baustraße drunter und 8cm Pflaster 10t für Bulli, Wohnmobil etc.
Ist jetzt 2 Jahre drin, hält, keine Fahrspuren
(Erfahrungsbericht, keine Bauanleitung)
30cm Mutterboden abgetragen,
Graben 50cm breit, 80-150cm tief, abgestützt, ausgehoben, 1,8m von der Grenze,
alle Leitungen reingelegt,
mit Feinsand abgedeckt,
25-30cm Recycling 3,5m breit Baustraße bis 1m vor Baustelle,
Hausbau, alle Leitungen angeschlossen,
an Grenze und 2,8m Kanten gesetzt,
Recycling begradigt, Split, 8cm Pflaster, fertig.
Aussage des Tiefbauers, hält da Baustraße drunter und 8cm Pflaster 10t für Bulli, Wohnmobil etc.
Ist jetzt 2 Jahre drin, hält, keine Fahrspuren
(Erfahrungsbericht, keine Bauanleitung)
Ja von unten nach oben,
Wasser Leerrohr rechts, Abwasser links mit Gefälle nivelliert, Strom 380V, Strom 220V (Torantrieb, Wegebeleuchtung, Steckdosen) , Telefon Leerrohr, Strom Datenkabel, Gas haben wir nicht,
Strom und Wasser mit Abstand 30cm.
220V mit Schlaufen für Wegebeleuchtung, Abwasser mit Revisionsöffnungen alle 15-20m,
Abwasserschacht wurde kürzer mit gesetzt und abgedeckt
Wasser Leerrohr rechts, Abwasser links mit Gefälle nivelliert, Strom 380V, Strom 220V (Torantrieb, Wegebeleuchtung, Steckdosen) , Telefon Leerrohr, Strom Datenkabel, Gas haben wir nicht,
Strom und Wasser mit Abstand 30cm.
220V mit Schlaufen für Wegebeleuchtung, Abwasser mit Revisionsöffnungen alle 15-20m,
Abwasserschacht wurde kürzer mit gesetzt und abgedeckt
Ähnliche Themen