ᐅ Bauen ohne Werkpläne
Erstellt am: 23.06.16 08:47
A
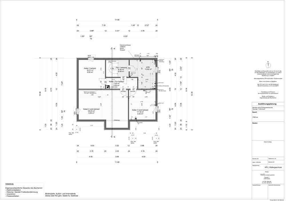
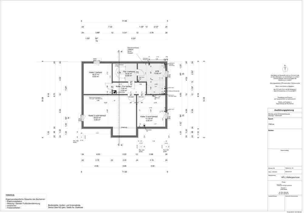
alter002923.06.16 08:47Nächste Woche soll mit dem Bau unseres Hauses begonnen werden. Im Vorfeld gab es Streit wegen der Leistung des Architekten, den der GU beauftragt hatte. Deswegen habe ich einen Architekten gesucht und beauftragt, den Bau zu überwachen. Im Bauvertrag steht: "Mit dem Beginn des Hausbaus werden detaillierte Pläne in den Maßstäben 1:50 und 1:20 angefertigt, die in das Eigentum des Bauherren übergehen." Diese Pläne habe ich aber nicht bekommen. Stattdessen schickte mir der Bauleiter eine Mail mit Plänen, die sich kaum von denen der Entwurfsplanung unterscheiden. Es sind auch nur die Grundrisse und ein Schnitt es Hauses (siehe Anhang). Wie mir von "meinem" Architekten bestätigt wurde, sind das keine Werkpläne und gestern sagte mit der Bauleiter am Telefon, Detailpläne werden erst für den Dachstuhl angefertigt. Alles andere wird ohne Detailplan gebaut. Darauf werde ich mich aber nicht einlassen. Was meint ihr dazu, hat jemand schon ähnliche Erfahrungen gehabt?
---------------------------
Guten Tag,
dafür, daß Du hier unter Nick postest, gehst Du imho leichtfertig mit Deinen realen Daten um! Ich habe mir erlaubt die Anhänge zu entpersonalisieren.
Grüße, Bauexperte
Bauexperte




---------------------------
Guten Tag,
dafür, daß Du hier unter Nick postest, gehst Du imho leichtfertig mit Deinen realen Daten um! Ich habe mir erlaubt die Anhänge zu entpersonalisieren.
Grüße, Bauexperte
Bauexperte
A
alter002923.06.16 14:34Das ist ganz in meinem Sinne, vielen Dank Bauexperte!
F
fach1werk24.06.16 09:19Wir können auch nur auf sehr wenige Pläne hoffen, haben aber auch keine zugesichert bekommen. Tragwerke planen Programme die Zimmerleute anwenden oder Tragwerksplaner zuliefern. Wir erhielten mehrere dicke Ordner vom Zimmermann, diese enthalten die Statik. Von unsrer Heizung wurde uns gesagt, diese plane der Hersteller, nachdem der Installateur bei ihm bestellen will. Die Elektrik wird entwickelt, nachdem der Elektriker seinen Zusatzauftrag in der Tasche hat. Unsre Tiefbauer haben so ihre Problemchen, aus den Zeichnungen, die fast wie Illustrationen auf uns wirken, herauszulesen, wie sie arbeiten sollen.
Irgendwie wird am Schluss ein Haus draus, ich weiß nur nicht warum.
Viel Glück, vielleicht kannst du die Pläne ja mit Hartnäckigkeit noch aus Jemandem herausschütteln. Bei uns fällt manchmal doch noch ein Krümel ab.
Gabriele
Irgendwie wird am Schluss ein Haus draus, ich weiß nur nicht warum.
Viel Glück, vielleicht kannst du die Pläne ja mit Hartnäckigkeit noch aus Jemandem herausschütteln. Bei uns fällt manchmal doch noch ein Krümel ab.
Gabriele
A
alter002924.06.16 11:33In der Baubeschreibung, welche Bestandteil des Bauvertrages ist, steht ausdrücklich, dass Detailpläne angefertigt werden. Nach dem, was ich mit dem Architekten der Baufirma erlebt habe, halte ich es inzwischen aber durchaus für möglich, dass der unfähig ist, solche Pläne anzufertigen. Ein Beispiel: In der Entwurfsplanung hat die Zeichnerin die Haustür zu tief eingezeichnet. Die ist unterhalb des Fertigfußbodens. Als ich sie darauf aufmerksam machte, schrieb sie mir: "Die Darstellung in der Ansicht in Programm-bedingt. Ich bitte dies zu entschuldigen."
Wenn die das schon nicht kann, wie soll die dann richtige Pläne zeichnen? Die Kellerfenster hatte die auch verschoben, ohne uns darauf hinzuweisen. Genialerweise wären die Lichtschächte jetzt genau vor den Terrassentüren! Zum Glück hat mich der Projektleiter der Kellerfirma darauf angesprochen. Und falls jetzt der Vorschlag kommen sollte, dass die Stufe zwischen Garage und Haus ungeschickt ist - auch das ist eine Schöpfung des Architekturbüros, die ich nicht übernehmen werde.
Wegen des Architekten streite ich mich aber schon seit Monaten mit der Baufirma, die ausgewählt zu haben ich in der Zwischenzeit als Fehler ansehe. Nun habe ich keine Lust mehr. Deshalb war ich vorgestern beim Rechtsanwalt und der hat die Baufirma aufgefordert, die Werkpläne bis spätestens 4. Juli herauszugeben.
Wenn die das schon nicht kann, wie soll die dann richtige Pläne zeichnen? Die Kellerfenster hatte die auch verschoben, ohne uns darauf hinzuweisen. Genialerweise wären die Lichtschächte jetzt genau vor den Terrassentüren! Zum Glück hat mich der Projektleiter der Kellerfirma darauf angesprochen. Und falls jetzt der Vorschlag kommen sollte, dass die Stufe zwischen Garage und Haus ungeschickt ist - auch das ist eine Schöpfung des Architekturbüros, die ich nicht übernehmen werde.
Wegen des Architekten streite ich mich aber schon seit Monaten mit der Baufirma, die ausgewählt zu haben ich in der Zwischenzeit als Fehler ansehe. Nun habe ich keine Lust mehr. Deshalb war ich vorgestern beim Rechtsanwalt und der hat die Baufirma aufgefordert, die Werkpläne bis spätestens 4. Juli herauszugeben.
Ähnliche Themen