ᐅ Badezimmer-Tetris - wie kriege ich alles unter?
Erstellt am: 16.12.19 07:54
P
Pinky030117.12.19 15:01Aber nur Wasser macht doch auch nicht sauber? Beim Händewaschen brauche ich ja Seife und Reiben...
Pinky0301 schrieb:
Aber nur Wasser macht doch auch nicht sauber? Beim Händewaschen brauche ich ja Seife und Reiben...Du nimmst auch Seife mit dazu. Wie beim Waschbecken.
J
j.bautsch23.12.19 17:32den Hintern mit Wasser zu reinigen kann auch angenehmer sein wenn man zb hämhorriden hat, hier würden diese durchs reiben nämlich stark gereizt was sogar zu blutungen führen kann
bauzaun schrieb:
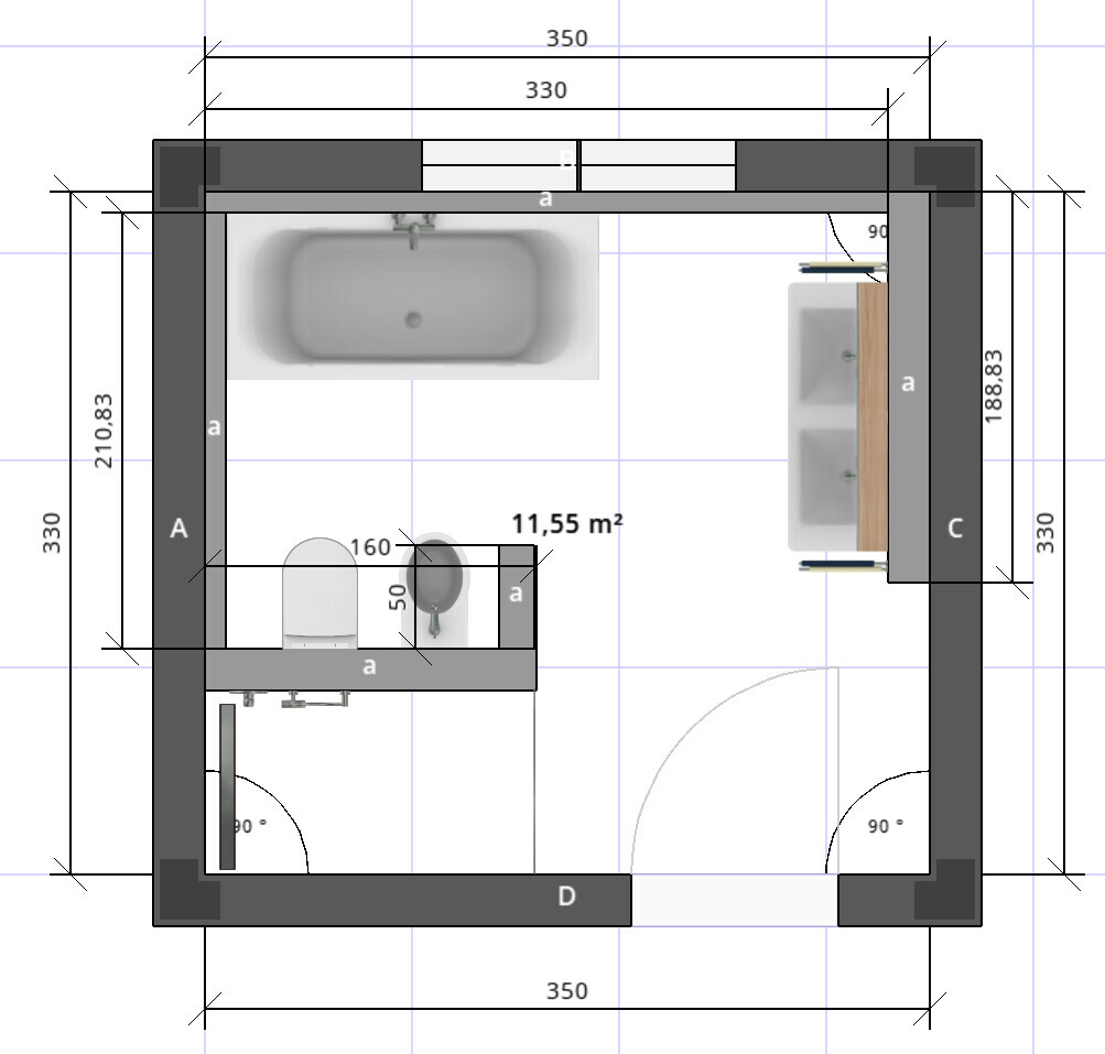
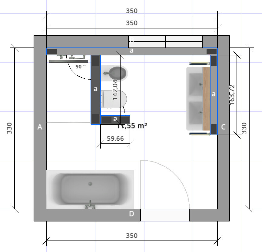
Hallo,
ich würde mich sehr freuen über euer Feedback zu meinen Badezimmer-Grundrissen. Welche der Varianten würde euch am besten gefallen bzw. am praktischsten erscheinen? Teils gibt es ein paar Engstellen, z.B. nur 70cm Platz zwischen WC und Badewanne. Zu eng?
- Sanitärgegenstände: Gemauerte Dusche mit Glastür (damit es warm ist beim Duschen), WC, Bidet, Badewanne 180x80, Doppelwaschbecken
- Raummaße 3,50 x 3,30m, Doppelfenster insgesamt 1,50m breit geht nach Ost und kann schrittweise nach links und rechts verschoben werden, Tür kann beliebig verschoben werden, Vorwandinstallation
- Abfluss nur Richtung planlinksoben, d.h. z.B. planrechtsunten können keine Abflüsse sein
Danke für eure Tipps und Vorschläge!!





bauzaun schrieb:
Hallo,
ich würde mich sehr freuen über euer Feedback zu meinen Badezimmer-Grundrissen. Welche der Varianten würde euch am besten gefallen bzw. am praktischsten erscheinen? Teils gibt es ein paar Engstellen, z.B. nur 70cm Platz zwischen WC und Badewanne. Zu eng?
- Sanitärgegenstände: Gemauerte Dusche mit Glastür (damit es warm ist beim Duschen), WC, Bidet, Badewanne 180x80, Doppelwaschbecken
- Raummaße 3,50 x 3,30m, Doppelfenster insgesamt 1,50m breit geht nach Ost und kann schrittweise nach links und rechts verschoben werden, Tür kann beliebig verschoben werden, Vorwandinstallation
- Abfluss nur Richtung planlinksoben, d.h. z.B. planrechtsunten können keine Abflüsse sein
Danke für eure Tipps und Vorschläge!!





bauzaun schrieb:
Hallo,
ich würde mich sehr freuen über euer Feedback zu meinen Badezimmer-Grundrissen. Welche der Varianten würde euch am besten gefallen bzw. am praktischsten erscheinen? Teils gibt es ein paar Engstellen, z.B. nur 70cm Platz zwischen WC und Badewanne. Zu eng?
- Sanitärgegenstände: Gemauerte Dusche mit Glastür (damit es warm ist beim Duschen), WC, Bidet, Badewanne 180x80, Doppelwaschbecken
- Raummaße 3,50 x 3,30m, Doppelfenster insgesamt 1,50m breit geht nach Ost und kann schrittweise nach links und rechts verschoben werden, Tür kann beliebig verschoben werden, Vorwandinstallation
- Abfluss nur Richtung planlinksoben, d.h. z.B. planrechtsunten können keine Abflüsse sein
Danke für eure Tipps und Vorschläge!!





Hallo mir gefällt die zweite Planung sehr gut weil so bin grade dabei zu sanierenH
hanghaus202317.06.23 09:42@Maurizio Du hast schon gelesen, das der Beitrag schon 3,5 Jahre alt ist?