Servus zusammen,
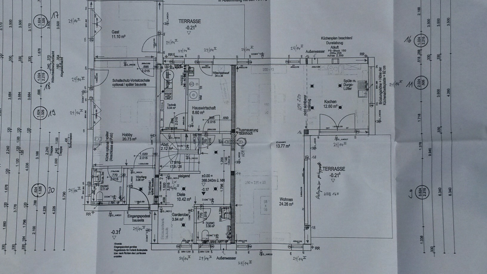
anbei der Plan eines Einfamilienhaus - hier geht es mir nur um das EG. OG ist soweit nicht das Problem.
Gesamtwohnfläche des Hauses inkl. Anbau (ohne Keller): Knapp 192 qm.
Mir geht es vorab darum, ob an alles gedacht wurde bei einem Einfamilienhaus für 2 Erwachsene - 2 Kinder bzw. was euch noch so auffällt.
Unter der Treppe ist ein Stauraum. Dachboden ist im Mittelteil begehbar; hier kann auch etwas Gerümpel verstaut werden.
Bin für Kritik dankbar.
LG

anbei der Plan eines Einfamilienhaus - hier geht es mir nur um das EG. OG ist soweit nicht das Problem.
Gesamtwohnfläche des Hauses inkl. Anbau (ohne Keller): Knapp 192 qm.
Mir geht es vorab darum, ob an alles gedacht wurde bei einem Einfamilienhaus für 2 Erwachsene - 2 Kinder bzw. was euch noch so auffällt.
Unter der Treppe ist ein Stauraum. Dachboden ist im Mittelteil begehbar; hier kann auch etwas Gerümpel verstaut werden.
Bin für Kritik dankbar.
LG
Als erstes fallen mir die sehr lange Wege auf. Insbesondere die Küchenplatzierung finde ich nicht gut gelöst. Auch die Treppe wäre nicht so meins, ich bevorzuge Treppen die höchstens einmal gewendelt sind, das erleichtert das Begehen und vor allem das Möbel hochtragen.
Und braucht man wirklich 2 Du/WC im EG? Ich würde stattdessen lieber einen davon als Technikraum nutzen, dann muss der Techniker, sowie die Stromableser nicht durchs halbe Haus latschen und auch noch an der Waschmaschine und evtl. der Dreckwäsche vorbei. Den Technikraum, würde ich dem Hauswirtschaftsraum-Raum zuschlagen. Und das Gästezimmer als gefangener Raum finde ich auch unglücklich gelöst.
Ich würde an eurer Stelle, die gesamte Planung nochmals überdenken, zumindest was das EG betrifft.
Und braucht man wirklich 2 Du/WC im EG? Ich würde stattdessen lieber einen davon als Technikraum nutzen, dann muss der Techniker, sowie die Stromableser nicht durchs halbe Haus latschen und auch noch an der Waschmaschine und evtl. der Dreckwäsche vorbei. Den Technikraum, würde ich dem Hauswirtschaftsraum-Raum zuschlagen. Und das Gästezimmer als gefangener Raum finde ich auch unglücklich gelöst.
Ich würde an eurer Stelle, die gesamte Planung nochmals überdenken, zumindest was das EG betrifft.
Huch... wenn das jetzt Bleistift auf Millimeter-Papier-Skizze wäre, würde ich sagen: noch mal oder mal einen Architekten aufsuchen.
Ich sehe: mehr Neben-und Nutzfläche als Wohnfläche, ich sehe 2 unkoordinierte WCs (wenn das eine wenigstens mit ner Dusche direkt am Gästezimmer liegen würde...), ich sehe ein Gastzimmer, welches durch ein Hobbyraum (also Abstellraum von PC, Heimtrainer und Gocarts) zu begehen ist, eine Küche, die meilenweit vom Eingang oder einem Vorratsregal entfernt ist, einen verwinkelten Flur und ein langen Wohnschlauch mit einer kleinen Tür.
Für einen Einkauf muss man 5 mal die Kurve kratzen, um diesen in die Küche zu schaffen - das ist Fehlplanung.
Auch die Fenster scheinen so, als dass man die Fassade nicht unbedingt mit einbezieht.
Maße kann ich nicht erkennen.
Sorry, dass ich Euren ganzen Stolz madig mache.
Da wird viel Geld verbrannt. Oder ist das ein Resthof, der restauriert wird???
Ich sehe: mehr Neben-und Nutzfläche als Wohnfläche, ich sehe 2 unkoordinierte WCs (wenn das eine wenigstens mit ner Dusche direkt am Gästezimmer liegen würde...), ich sehe ein Gastzimmer, welches durch ein Hobbyraum (also Abstellraum von PC, Heimtrainer und Gocarts) zu begehen ist, eine Küche, die meilenweit vom Eingang oder einem Vorratsregal entfernt ist, einen verwinkelten Flur und ein langen Wohnschlauch mit einer kleinen Tür.
Für einen Einkauf muss man 5 mal die Kurve kratzen, um diesen in die Küche zu schaffen - das ist Fehlplanung.
Auch die Fenster scheinen so, als dass man die Fassade nicht unbedingt mit einbezieht.
Maße kann ich nicht erkennen.
Sorry, dass ich Euren ganzen Stolz madig mache.
Da wird viel Geld verbrannt. Oder ist das ein Resthof, der restauriert wird???
Wirkt auch auf mich wie der Aus- oder Umbau eines bestehenden Gebäudes. Dann wäre natürlich spannend, was davon schon vorhanden ist, um sich zu überlegen wo man wie ansetzt.
Wenn dies nicht der Fall ist, halte ich den Grundriss für katastrophal verschachtelt. Riesige Flächen stehen als Flure und Nebenflächen zur Verfügung, aber die einzelnen Wohnräume werden dennoch zu Durchgangsräumen (Hobby-Gäste) und die Küche liegt im Abseits.
Um aber die Frage zu beantworten: Gedacht wurde an vieles (sogar zweimal das Duschbad), die wichtigsten Funktionen sind vorhanden. Fragt sich eher, welche Räume sich im Ober-/Dachgeschoss verbergen, um beantworten zu können, ob an alles gedacht ist ...
Wenn dies nicht der Fall ist, halte ich den Grundriss für katastrophal verschachtelt. Riesige Flächen stehen als Flure und Nebenflächen zur Verfügung, aber die einzelnen Wohnräume werden dennoch zu Durchgangsräumen (Hobby-Gäste) und die Küche liegt im Abseits.
Um aber die Frage zu beantworten: Gedacht wurde an vieles (sogar zweimal das Duschbad), die wichtigsten Funktionen sind vorhanden. Fragt sich eher, welche Räume sich im Ober-/Dachgeschoss verbergen, um beantworten zu können, ob an alles gedacht ist ...
Vielen Dank für das bisherige (ehrliche) Feedback.
Der Anbau dient eben in 2ter Linie als Kellerersatz. Bei "Gast" wird sich ein Bür befinden, der größere Teil vom Anbau (Hobby)ist das eigentliche Gästezimmer und beherbergt auch einen Schrank für z.B. Winterklamotten. Im Anbau-Bad ist vorerst nur ein WC sowie eine Duschvorbereitung. Angedacht ist evtl. den Anbau einmal als Einliegerwohnung zu vermieten, wenn die beiden Kinder aus dem Haus sind.
Unter der Treppe befindet sich ausreichend Stauraum; der Rest wird an der rechten Seite des Hauswirtschaftsraumes inform von Regalen untergebracht.
Es ist kein Altbestand sondern der Plan eines Neubaus, geplant von einem Architekten eines Fertighausanbieters auf einem weitläufigen,820qm Grundstück.
Im OG befindet sich 2 Kinderzimmer, Schlafzimmer und Ankleide sowie das Familienbad (mit Einbauschrank sowie Wäscheschacht in den Hauswirtschaftsraum).
Der Anbau dient eben in 2ter Linie als Kellerersatz. Bei "Gast" wird sich ein Bür befinden, der größere Teil vom Anbau (Hobby)ist das eigentliche Gästezimmer und beherbergt auch einen Schrank für z.B. Winterklamotten. Im Anbau-Bad ist vorerst nur ein WC sowie eine Duschvorbereitung. Angedacht ist evtl. den Anbau einmal als Einliegerwohnung zu vermieten, wenn die beiden Kinder aus dem Haus sind.
Unter der Treppe befindet sich ausreichend Stauraum; der Rest wird an der rechten Seite des Hauswirtschaftsraumes inform von Regalen untergebracht.
Es ist kein Altbestand sondern der Plan eines Neubaus, geplant von einem Architekten eines Fertighausanbieters auf einem weitläufigen,820qm Grundstück.
Im OG befindet sich 2 Kinderzimmer, Schlafzimmer und Ankleide sowie das Familienbad (mit Einbauschrank sowie Wäscheschacht in den Hauswirtschaftsraum).
Neubau, Architekt, geplant ... Da muß man doch auf bessere Lösungen kommen. Diese Planung verschlingt doch aufgrund der vielen Nebenflächen immens Platz und von Eurem "weitläufigen" 820m² Grundstück bleibt nichts mehr übrig.
Geht noch mal neutral an Eure Ideen, gestaltet den Entwurf kompakter, lasst massig Quadratmeter Flure weg, spart Geld und habt mehr Freiraum auf dem Grundstück. Und sucht jemanden, der es besser kann - das sollte nicht so schwer sein !
Nur Mut - der erste Entwurf ist nicht immer der beste ! Und die schlichten schönen Ideen dauern etwas, sind aber langfristig bewohnbarer.
Geht noch mal neutral an Eure Ideen, gestaltet den Entwurf kompakter, lasst massig Quadratmeter Flure weg, spart Geld und habt mehr Freiraum auf dem Grundstück. Und sucht jemanden, der es besser kann - das sollte nicht so schwer sein !
Nur Mut - der erste Entwurf ist nicht immer der beste ! Und die schlichten schönen Ideen dauern etwas, sind aber langfristig bewohnbarer.