ᐅ Abweichungen Aufmaß Küche durch Feinputz ca. 1,2 cm problematisch?
Erstellt am: 07.01.24 22:07
Hallo Zusammen,
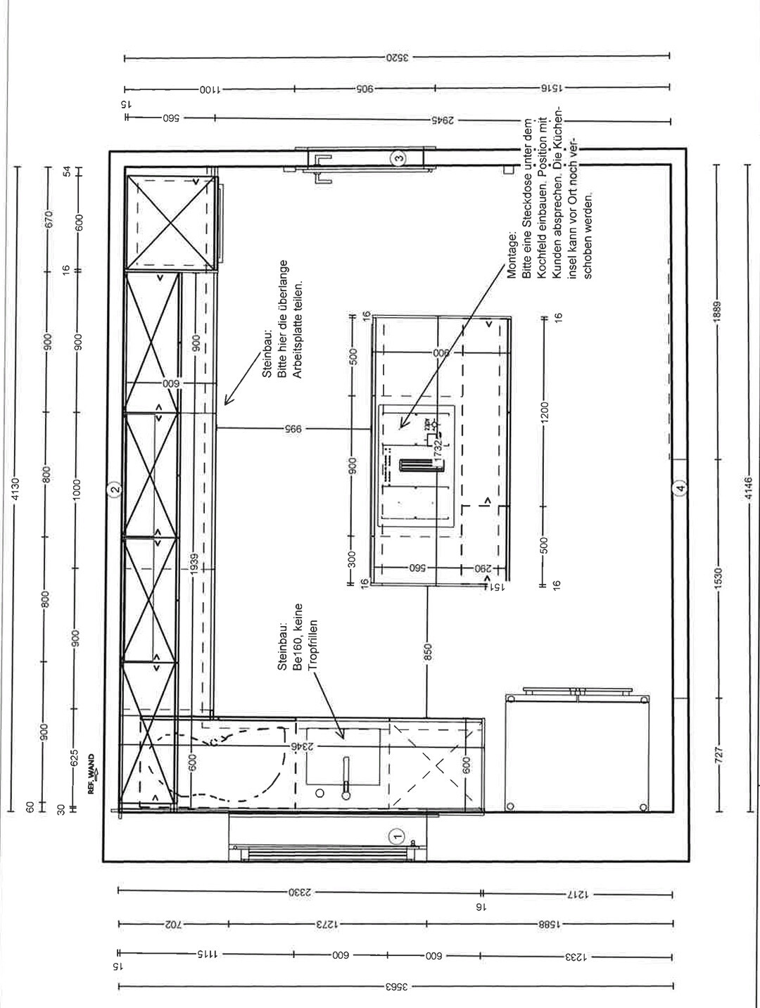
Ich habe meine erste Küche bestellt (L-Form +
Kücheninsel). Da es sich um Altbau handelt, hat sich nach Aufmaß und Küchenplanung herausgestellt, dass die Elektrik neu verteilt werden musste. Dies ist bereits passiert, nun müssen die zahlreichen Elektroschlitze zugespachtelt werden + die Wände neu verputzt werden (Tapete wird ebenfalls entfernt).
Laut Maler werden ca. 4-6mm auf die Wand aufgebracht.
Meine Frage nun: sind die Abweichungen von bis zu 6mm pro Wand im Vergleich zum bereits erfolgten Aufmaß problematisch oder wird hier erfahrungsgemäß immer entsprechend eine Toleranz eingerechnet?
Da es bei der längeren Seite ja sogar 2 Seiten betrifft sind es hier zusammengerechnet bis zu 1,2 cm Abweichung. Auf der kürzeren Seite kommt ein freistehender Kühlschrank hin, da ist 1cm mehr oder weniger kein Problem.
Die Arbeitsplatte ist Naturstein.
Mein Küchenbauer ist leider bis nächste Woche im Urlaub, der Maler soll mitte dieser Woche anfangen.
Anbei auch Bilder von der Planung.
Vielen Dank im Voraus!




Ich habe meine erste Küche bestellt (L-Form +
Kücheninsel). Da es sich um Altbau handelt, hat sich nach Aufmaß und Küchenplanung herausgestellt, dass die Elektrik neu verteilt werden musste. Dies ist bereits passiert, nun müssen die zahlreichen Elektroschlitze zugespachtelt werden + die Wände neu verputzt werden (Tapete wird ebenfalls entfernt).
Laut Maler werden ca. 4-6mm auf die Wand aufgebracht.
Meine Frage nun: sind die Abweichungen von bis zu 6mm pro Wand im Vergleich zum bereits erfolgten Aufmaß problematisch oder wird hier erfahrungsgemäß immer entsprechend eine Toleranz eingerechnet?
Da es bei der längeren Seite ja sogar 2 Seiten betrifft sind es hier zusammengerechnet bis zu 1,2 cm Abweichung. Auf der kürzeren Seite kommt ein freistehender Kühlschrank hin, da ist 1cm mehr oder weniger kein Problem.
Die Arbeitsplatte ist Naturstein.
Mein Küchenbauer ist leider bis nächste Woche im Urlaub, der Maler soll mitte dieser Woche anfangen.
Anbei auch Bilder von der Planung.
Vielen Dank im Voraus!
J
jens.knoedel07.01.24 22:16Sagen wir es so. Wenn du eine 5m Küche für einen 5m Raum bestellst und der Raum ist dann nur noch 4,98m, hast du ein mächtiges Problem.
Aber auf dem Handy sieht es so aus, als ob eine Seite eh mit 54mm Blende zum Anschluss versehen wird. Nacharbeiten des Küchenbauers und da war es
Aber auf dem Handy sieht es so aus, als ob eine Seite eh mit 54mm Blende zum Anschluss versehen wird. Nacharbeiten des Küchenbauers und da war es
B
Benutzer12307.01.24 22:28Was heißt nacharbeiten. Das ist eine hochschrank-Schattenleiste die ohnehin vom Monteur zugeschnitten wird. Die ist dann halt nicht 5,4 sondern 4,2 cm breit. Wenn an dem Hochschrank Drehtüren sind muss man schauen ob sie mit der Wand kollidieren.
J
jens.knoedel07.01.24 22:29Benutzer123 schrieb:
Was heißt nacharbeiten. Das ist eine Hochschrank-Schattenleiste die ohnehin vom Monteur zugeschnitten wird.Das meine ich damit. Lies sich schlecht erkennen.Benutzer123 schrieb:
Was heißt nacharbeiten. Das ist eine Hochschrank-Schattenleiste die ohnehin vom Monteur zugeschnitten wird. Die ist dann halt nicht 5,4 sondern 4,2 cm breit. Wenn an dem Hochschrank Drehtüren sind muss man schauen ob sie mit der Wand kollidieren.Danke euch beiden, das beruhigt mich sehr!
Im Hochschrank sind nur Standardtüren mit Winkelscharnier also keine Drehtüren.
Nur muss dann das Fensterbrett vermutlich 6 mm länger werden.
Ähnliche Themen