ᐅ Grundrissdiskussion generell / Situation Treppe ins DG / Gauben
Erstellt am: 25.03.26 13:35
P
phibe1005phibe1005 schrieb:
Vielen Dank für eure Einschätzung und Ideen, wie man die Situations für den Treppenaufgang ins DG verbessern kann.Hier kommt wohl keine Resonanz mehr? Dann lösche ich den Entwurf.
P
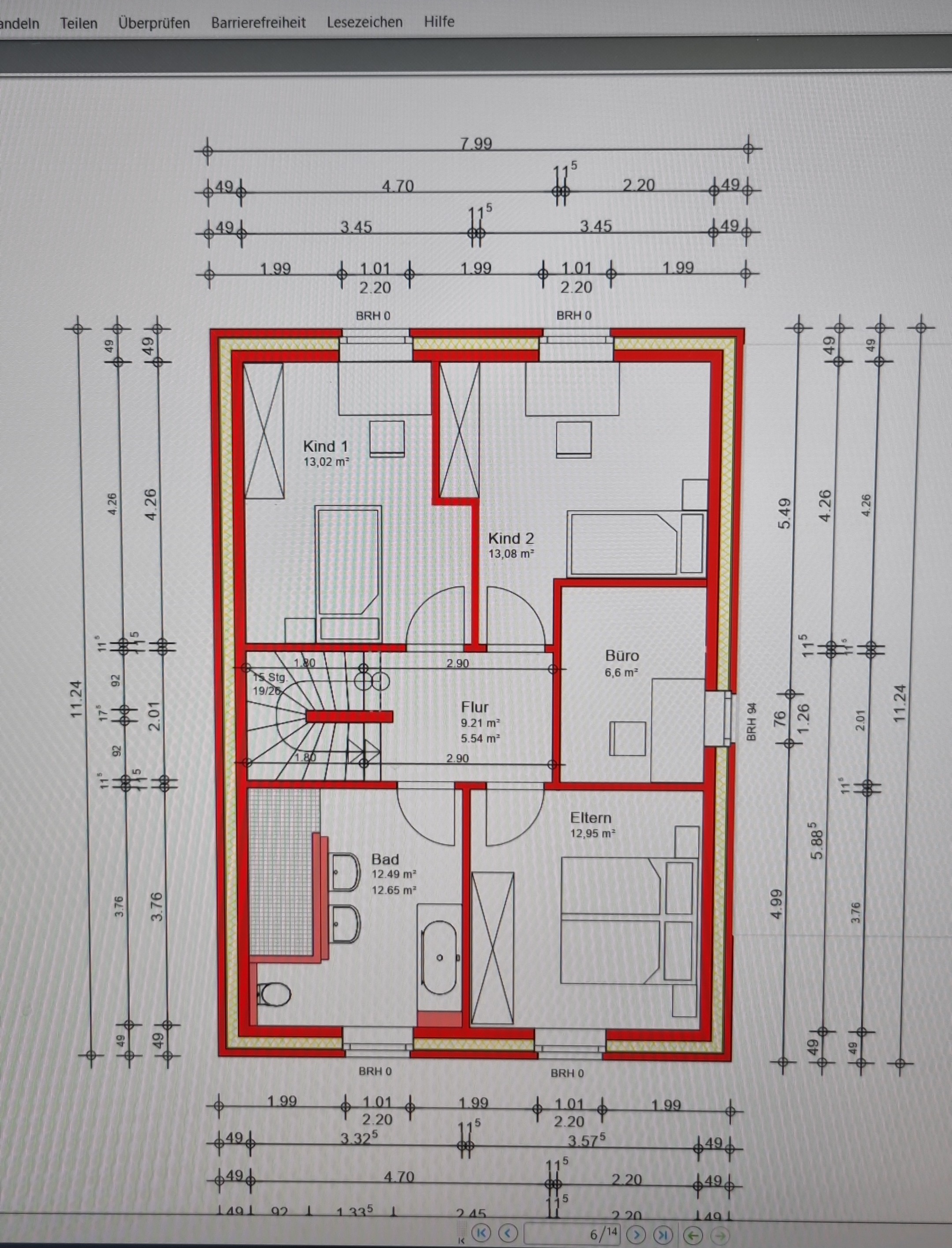
phibe100504.04.26 13:25Tut mir Leide für die verspätete Rückmeldung.
Fehlende Infos:
Wir sind beide 35 Jahre alt und haben ein 10 Monate altes Kind. Ein zweites wird hoffentlich in den nächsten Jahren folgen. Meine Frau is5 Lehrerin, daher wird ein Büro benötigt.
Wir hatten noch ein sehr konstruktives Gespräch mit einem Bauunternehmer.
Von einem Dachbodenausbau, auch optional, sehen wir ab. Wir möchten mit dem Kettenhaus günstig bauen, und uns platztechnisch bei 130 qm bewegen.
Mit Dachbodenausbau sind wir locker Richtung 165 qm unterwegs. Da haben wir uns nochmal hinterfragt, ob wir es überhaupt brauchen.
Die Planung des DG sieht aktuell wie folgt aus. Es handelt sich um eine eigene Skizze..

Wir liegen bei 385 TE inkl. Carport, Geräteraum, Boden- und Malerarbeiten. PV mit Speicher kommt hinzu.
Freue mich auf Rückmeldungen.
Fehlende Infos:
Wir sind beide 35 Jahre alt und haben ein 10 Monate altes Kind. Ein zweites wird hoffentlich in den nächsten Jahren folgen. Meine Frau is5 Lehrerin, daher wird ein Büro benötigt.
Wir hatten noch ein sehr konstruktives Gespräch mit einem Bauunternehmer.
Von einem Dachbodenausbau, auch optional, sehen wir ab. Wir möchten mit dem Kettenhaus günstig bauen, und uns platztechnisch bei 130 qm bewegen.
Mit Dachbodenausbau sind wir locker Richtung 165 qm unterwegs. Da haben wir uns nochmal hinterfragt, ob wir es überhaupt brauchen.
Die Planung des DG sieht aktuell wie folgt aus. Es handelt sich um eine eigene Skizze..
Wir liegen bei 385 TE inkl. Carport, Geräteraum, Boden- und Malerarbeiten. PV mit Speicher kommt hinzu.
Freue mich auf Rückmeldungen.
Ich an der Stelle Deiner Frau fände eine Tür in der Wand zum Büro praktisch. Und ich hätte mit dem neuen Bauunternehmer gleich´mal das Rightsizing der fetten Burgmauern angesprochen.
https://www.instagram.com/11antgmxde/
https://www.linkedin.com/company/bauen-jetzt/
https://www.instagram.com/11antgmxde/
https://www.linkedin.com/company/bauen-jetzt/
Würde das hier wiederholt angesprochene Thema "zu dicke Wände" nicht auf die Goldwaage legen. 49cm sind total üblich, wenn wir über ein zweischaliges massives Mauerwerk reden. Bei uns im Westmünsterland ist das der absolute Standard - fahr mal hier durch ein Bestands- oder Neubaugebiet und du siehst zu 95% so ein Mauerwerk. Vermutlich wird es auch hier günstiger sein monolithisch oder mit WDVS zu bauen, aber es macht aus meiner Sicht nicht den großen Unterschied aus, wie in anderen Regionen Deutschlands.
Die Fenstersituation wäre nichts für mich. Im Büro ein Guckloch. In den Kinderzimmern jeweils einen Schreibtisch vor der Tür. Im Bad eine Tür finde ich auch suboptimal. Drehe eine Türen um 90 Grad und mache Fenster daraus, im Büro ein doppelt so breites Fenster und schon kommt Licht in die Räume.