Rénovation salle de bain 12 m² - Idées pour la solution en T - suffisamment d’espace ?

  • Erstellt am 29.04.2024 10:12:32

Pacman0411

29.04.2024 16:11:32
  • #1


En dessous de cette pièce se trouve une autre salle de bain (salle de bain pour invités), mais seulement de 2,73 m x 3,09 m.
 

Pacman0411

29.04.2024 16:22:42
  • #2

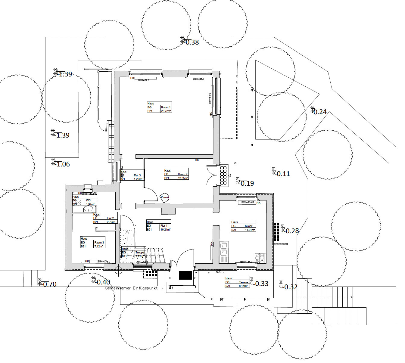
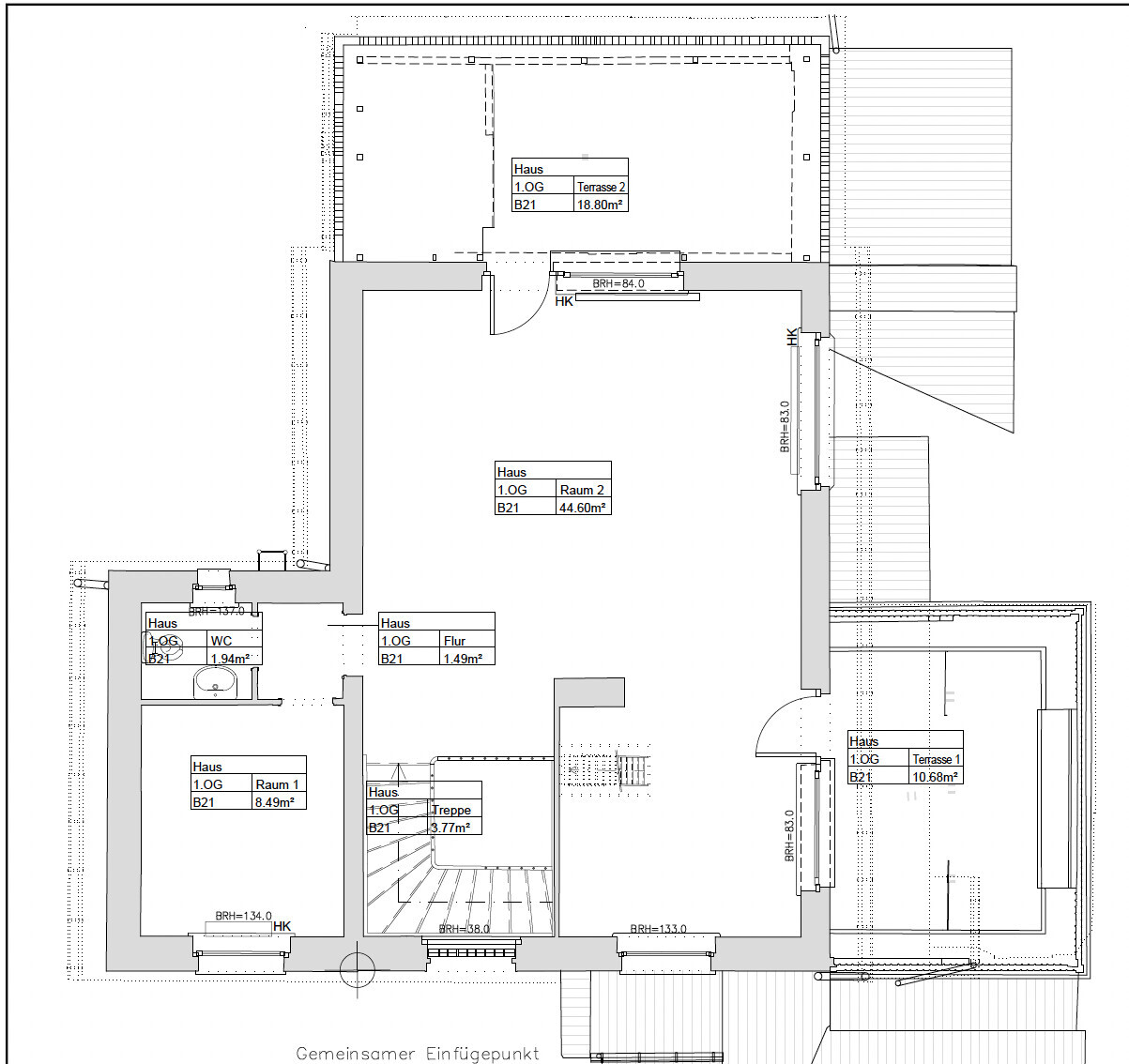
Ci-joint le plan du rez-de-chaussée - la salle de bain à l'étage est située "en bas à gauche", tournée de 90 degrés

la nouvelle salle de bain à l'étage sera créée en réunissant les WC, la pièce 1 et le couloir (2, image)

 

hanghaus2023

30.04.2024 12:28:18
  • #3
Je ne démolirais pas les toilettes. La baignoire plutôt dans le coin.
 

Pacman0411

30.04.2024 12:59:21
  • #4


Idée sympa – merci !! Oui, c’est en effet une disposition intéressante. Cela permettrait d’éviter la démolition. Quelle serait la largeur de la douche selon ton plan ? Peut-être pourrait-on aussi envisager de placer le lavabo dans la niche, c’est-à-dire à l’arrière de la cloison de douche.
 

hanghaus2023

30.04.2024 13:19:57
  • #5
Ça ne me plairait pas. Plutôt un radiateur sèche-serviettes au mur. Ou une grande étagère. La douche fait 1,0 m * 1,4 m.
 

hanghaus2023

30.04.2024 13:54:58
  • #6
Voici encore quelque chose de installé.






Voici encore avec des carreaux abordables.


 

Sujets similaires
13.07.2016Radio dans la salle de bain - oui ou non45
17.10.2017Salle de bain supplémentaire via le promoteur immobilier ou juste poser les tuyaux ?10
04.03.2018Plan d'aménagement de la salle de bain - Comment placer les fenêtres ?12
04.05.2018Il n'y a plus d'eau chaude dans la douche...13
05.07.2018Salle de bains familiale villa urbaine - idées de planification de salle de bains ?31
28.03.2019Haut-parleurs dans la salle de bain et sur la terrasse19
28.11.2020Planification du plan: Douche de salle de bain47
15.07.2020Quels accessoires de salle de bain avez-vous installés ?21
14.01.2020Planification de la salle de bain / Retour souhaité !!!17
25.01.2020taille de la douche à l'italienne30
28.02.2020Taille de carreau 80x80 dans la salle de bain17
02.03.2020Planification de la salle de bain pour un foyer d'une personne dans une nouvelle construction26
23.02.2023Conseil : Nouvelle salle de bain, 5,9 m² avec baignoire48
05.02.2021Un homme planifie la salle de bain, cela peut-il bien se passer ?52
16.01.2021Haut-parleurs et télévision dans la salle de bain15
22.02.2022Planification de la salle de bain - Idées de rénovation15
27.03.2022Porte du dressing vers la salle de bain34
22.06.2022Carrelage de la salle de bain du sol au plafond ou carrelage à mi-hauteur ?32
06.04.2023Motifs de carreaux sur les murs de la salle de bain26
09.06.2024Installer une cloison sèche pour la salle de bain13

Oben