Ace of Space
06.09.2019 11:29:08
- #1
Estimadas señoras y señores,
tenemos un pequeño problema con la construcción planeada de nuestra casa.
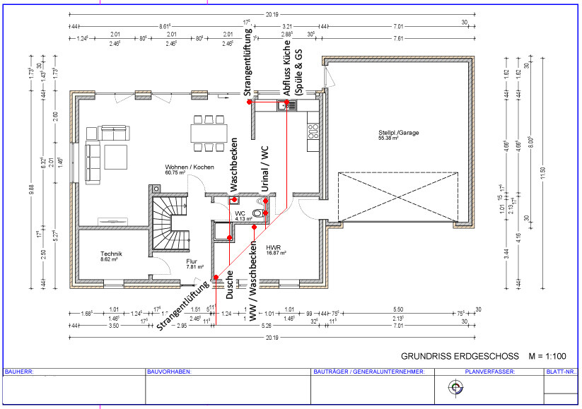
Actualmente no sabemos cómo realizar la ventilación de la bajante en la cocina sin que interfiera con la planificación de la cocina, o sin que seamos molestados por olores en el área de la terraza o en la futura azotea sobre el garaje.
El problema es el siguiente:
Para nosotros, como constructores, la ventilación de la bajante en la cocina está descartada, ya que los armarios colgantes deben rodear toda la U de la cocina. El constructor rechaza trasladar la ventilación de la bajante a una de las paredes exteriores por motivos estructurales.
Como solución al problema, el constructor propuso prescindir de la ventilación de la bajante y colocar una toma de limpieza en la terraza, para poder limpiar la tubería de desagüe desde la terraza en caso de obstrucción.
Nos parece muy buena la idea de la toma de limpieza, ya que en una cocina siempre entran grasas al desagüe, que podrían solidificarse y obstruir la tubería.
Sin embargo, preferiríamos no prescindir de la ventilación de la bajante y, por supuesto, tampoco quisiéramos un saliente en la pared necesario para ello en las habitaciones del piso superior.
Por esta razón, hemos pensado en llevar la ventilación de la bajante al piso superior en la cara opuesta de la pared en T de la cocina y conducirla desde allí, en un conducto plano como el que se usa también para la ventilación controlada de la vivienda, transversalmente a través del piso superior hasta la ventilación de la bajante en la zona del cuarto de servicios/habitación 4, y conectarla a esa ventilación de bajante.
La ventilación de la bajante en el cuarto de servicios es necesaria para nosotros, ya que más adelante queremos convertir la habitación 4 en una cocina, que también necesitaría una ventilación de bajante.
También vamos a tener una ventilación controlada de la vivienda, pero las tuberías para la planta baja también pasan dentro del techo suspendido, por lo que no deberían entrar en contacto con el conducto plano de la ventilación.
Sin embargo, el constructor nos aconsejó amablemente no seguir esa solución, ya que tiene preocupaciones sobre la ventilación de la bajante como conducto plano en la estructura del suelo debido a la condensación y los olores.
Como no somos expertos, estamos naturalmente inseguros sobre qué hacer, ya que no ha rechazado la ejecución, pero sí la ha desaconsejado.
¿Qué opinan ustedes sobre la idea de colocar la ventilación de la bajante en un conducto plano atravesando la estructura del suelo a lo largo de toda la casa, como alternativa a no tener ventilación de bajante?
Para resumir brevemente:
- Sin saliente en la pared en la cocina
- Saliente en la pared en el piso superior solo en el baño o en la habitación 4
Espero con interés sus consejos competentes y, por supuesto, también ideas creativas para resolver el problema de otra manera.
Adjunto los planos de la planta baja y del piso superior. En rojo están marcadas las tuberías de desagüe y ventilaciones de bajante, y en naranja he dibujado el conducto plano en la estructura del suelo.
PD: El constructor es excelente y entiendo perfectamente que quiera asegurarse ante procedimientos desconocidos y no conformes con la DIN. En general, es una empresa de construcción estupenda que opera sólo en nuestra región y goza de muy buena reputación.
El problema en este caso no es tanto el constructor, sino nosotros, porque tenemos deseos que no cumplen con los estándares.
Atentamente
Jan


tenemos un pequeño problema con la construcción planeada de nuestra casa.
Actualmente no sabemos cómo realizar la ventilación de la bajante en la cocina sin que interfiera con la planificación de la cocina, o sin que seamos molestados por olores en el área de la terraza o en la futura azotea sobre el garaje.
El problema es el siguiente:
Para nosotros, como constructores, la ventilación de la bajante en la cocina está descartada, ya que los armarios colgantes deben rodear toda la U de la cocina. El constructor rechaza trasladar la ventilación de la bajante a una de las paredes exteriores por motivos estructurales.
Como solución al problema, el constructor propuso prescindir de la ventilación de la bajante y colocar una toma de limpieza en la terraza, para poder limpiar la tubería de desagüe desde la terraza en caso de obstrucción.
Nos parece muy buena la idea de la toma de limpieza, ya que en una cocina siempre entran grasas al desagüe, que podrían solidificarse y obstruir la tubería.
Sin embargo, preferiríamos no prescindir de la ventilación de la bajante y, por supuesto, tampoco quisiéramos un saliente en la pared necesario para ello en las habitaciones del piso superior.
Por esta razón, hemos pensado en llevar la ventilación de la bajante al piso superior en la cara opuesta de la pared en T de la cocina y conducirla desde allí, en un conducto plano como el que se usa también para la ventilación controlada de la vivienda, transversalmente a través del piso superior hasta la ventilación de la bajante en la zona del cuarto de servicios/habitación 4, y conectarla a esa ventilación de bajante.
La ventilación de la bajante en el cuarto de servicios es necesaria para nosotros, ya que más adelante queremos convertir la habitación 4 en una cocina, que también necesitaría una ventilación de bajante.
También vamos a tener una ventilación controlada de la vivienda, pero las tuberías para la planta baja también pasan dentro del techo suspendido, por lo que no deberían entrar en contacto con el conducto plano de la ventilación.
Sin embargo, el constructor nos aconsejó amablemente no seguir esa solución, ya que tiene preocupaciones sobre la ventilación de la bajante como conducto plano en la estructura del suelo debido a la condensación y los olores.
Como no somos expertos, estamos naturalmente inseguros sobre qué hacer, ya que no ha rechazado la ejecución, pero sí la ha desaconsejado.
¿Qué opinan ustedes sobre la idea de colocar la ventilación de la bajante en un conducto plano atravesando la estructura del suelo a lo largo de toda la casa, como alternativa a no tener ventilación de bajante?
Para resumir brevemente:
- Sin saliente en la pared en la cocina
- Saliente en la pared en el piso superior solo en el baño o en la habitación 4
Espero con interés sus consejos competentes y, por supuesto, también ideas creativas para resolver el problema de otra manera.
Adjunto los planos de la planta baja y del piso superior. En rojo están marcadas las tuberías de desagüe y ventilaciones de bajante, y en naranja he dibujado el conducto plano en la estructura del suelo.
PD: El constructor es excelente y entiendo perfectamente que quiera asegurarse ante procedimientos desconocidos y no conformes con la DIN. En general, es una empresa de construcción estupenda que opera sólo en nuestra región y goza de muy buena reputación.
El problema en este caso no es tanto el constructor, sino nosotros, porque tenemos deseos que no cumplen con los estándares.
Atentamente
Jan