Christian NW
16.02.2018 23:57:20
- #1
Hola a todos,
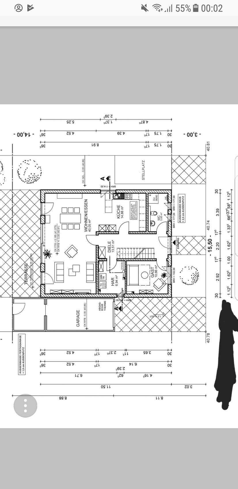
Echad un vistazo a las siguientes cotas de altura, ¿se ha previsto suficiente pendiente hacia la calle? ¡Queremos adoquinar las superficies! (¡Nada de adoquines ecológicos!)
1.)
Longitud del camino del garaje: 8 m
Altura del suelo terminado del garaje: 40,86 m sobre el nivel del mar
Altura de la calle: 40,78 m sobre el nivel del mar
(¡DIFERENCIA SOLO 8 cm!)
2.)
Longitud del estacionamiento hasta la calle: 6 m.
Altura del lado del estacionamiento alejado de la calle: 40,86 m sobre el nivel del mar
Altura de la calle en el estacionamiento: 40,81 m sobre el nivel del mar
(¡DIFERENCIA SOLO 5 cm!)

Echad un vistazo a las siguientes cotas de altura, ¿se ha previsto suficiente pendiente hacia la calle? ¡Queremos adoquinar las superficies! (¡Nada de adoquines ecológicos!)
1.)
Longitud del camino del garaje: 8 m
Altura del suelo terminado del garaje: 40,86 m sobre el nivel del mar
Altura de la calle: 40,78 m sobre el nivel del mar
(¡DIFERENCIA SOLO 8 cm!)
2.)
Longitud del estacionamiento hasta la calle: 6 m.
Altura del lado del estacionamiento alejado de la calle: 40,86 m sobre el nivel del mar
Altura de la calle en el estacionamiento: 40,81 m sobre el nivel del mar
(¡DIFERENCIA SOLO 5 cm!)