Reinhard84.2
2020-11-13 19:04:26
- #1
Good evening,
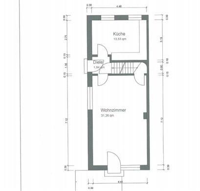
we would like to extend our small semi-detached house. The building window extends about 10 meters to the long side (east) and 2 meters to the south (in the plan kitchen). The semi-detached house is partly basemented.
What we lack in the house is a hallway, a bathroom on the ground floor, and 1-2 bedrooms or living rooms.
We would like some input on how this could be designed. To build on one or two/three stories - corresponding to the original house or single-story, but wider. We are really a bit clueless at the moment.
In terms of price, it would be nice if the whole thing could stay within 200k, for shell construction and sanitary and partly electrical (possibly roof), region Niederrhein, Tönisvorst.
Our first step will probably need to lead us to an architect.
In case the question arises: We bought the house despite its size because the plot and location were perfect, and the extension is not super urgent.
I look forward to input!

we would like to extend our small semi-detached house. The building window extends about 10 meters to the long side (east) and 2 meters to the south (in the plan kitchen). The semi-detached house is partly basemented.
What we lack in the house is a hallway, a bathroom on the ground floor, and 1-2 bedrooms or living rooms.
We would like some input on how this could be designed. To build on one or two/three stories - corresponding to the original house or single-story, but wider. We are really a bit clueless at the moment.
In terms of price, it would be nice if the whole thing could stay within 200k, for shell construction and sanitary and partly electrical (possibly roof), region Niederrhein, Tönisvorst.
Our first step will probably need to lead us to an architect.
In case the question arises: We bought the house despite its size because the plot and location were perfect, and the extension is not super urgent.
I look forward to input!