kaho674
2013-09-03 17:09:42
- #1
嗨,
我和我丈夫在打造一个漂亮的花园方面遇到了很大困难。我们完全不知道从哪里开始。我们希望有一个自然、舒适的花园,同时能吸引许多鸟类、昆虫和其他动物。我们还有一些来自自然保护的要求,包括:
3棵落叶树
3棵果树
大量的篱笆
有没有人愿意帮我们提出一些漂亮的建议或规划?到目前为止,我们自己做的一切看起来都很冷清、不舒适。我们真的很需要一些建议。
我们应该如何铺设小路?你们会把树木放在哪里?如果能有一个凉亭的空间那就太好了。我们还需要一个堆肥堆和一个小菜地来种几株土豆。
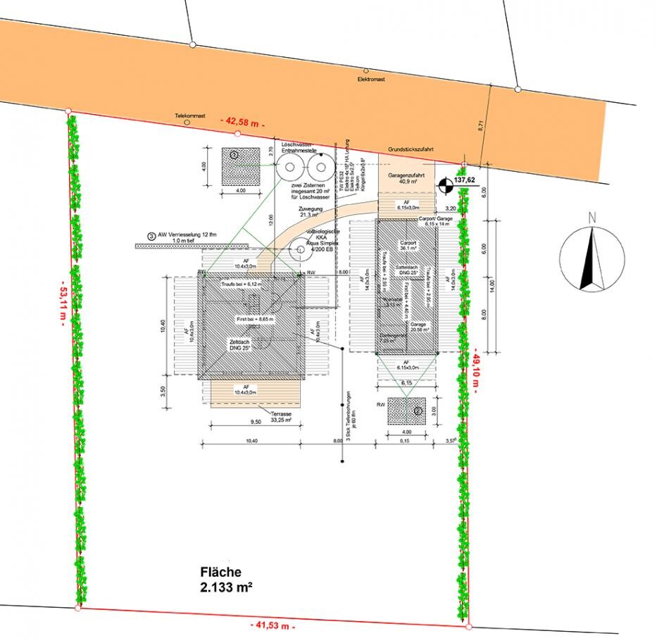
这是这块地:
(边缘的篱笆位置不是必须固定在那里,但数量大致要保持)。
期待你们的建议。:)

我和我丈夫在打造一个漂亮的花园方面遇到了很大困难。我们完全不知道从哪里开始。我们希望有一个自然、舒适的花园,同时能吸引许多鸟类、昆虫和其他动物。我们还有一些来自自然保护的要求,包括:
3棵落叶树
3棵果树
大量的篱笆
有没有人愿意帮我们提出一些漂亮的建议或规划?到目前为止,我们自己做的一切看起来都很冷清、不舒适。我们真的很需要一些建议。
我们应该如何铺设小路?你们会把树木放在哪里?如果能有一个凉亭的空间那就太好了。我们还需要一个堆肥堆和一个小菜地来种几株土豆。
这是这块地:
期待你们的建议。:)