The Watcher
2015-06-19 19:37:20
- #1
大家好,
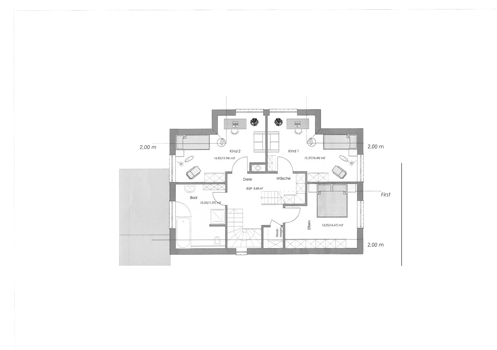
我很高兴如果你们能帮我们评估一下我们的平面图。大致的布局我们是满意的。
关于我们的地块:街道方向是从西南到东北。所以入口在西南。地势由西南向东北倾斜,我们可能考虑在地下一层设计一个带较大窗户的地下室。地下室将包含家务间和办公室。因此一楼将不设家务间。
由于朝向北,我们计划将起居区和餐厅连成一片,位于右侧区域,以尽可能多地引入光线和阳光。
由于地块朝北,我们想在前后各建一个露台。后面的露台或阳台可能会建在支柱上。
平面图的尺寸是宽11米,深7.5米,最深处为8.5米。
我们主要关心的是房间的布局以及可能需要修改的地方。
期待你们的反馈。

我很高兴如果你们能帮我们评估一下我们的平面图。大致的布局我们是满意的。
关于我们的地块:街道方向是从西南到东北。所以入口在西南。地势由西南向东北倾斜,我们可能考虑在地下一层设计一个带较大窗户的地下室。地下室将包含家务间和办公室。因此一楼将不设家务间。
由于朝向北,我们计划将起居区和餐厅连成一片,位于右侧区域,以尽可能多地引入光线和阳光。
由于地块朝北,我们想在前后各建一个露台。后面的露台或阳台可能会建在支柱上。
平面图的尺寸是宽11米,深7.5米,最深处为8.5米。
我们主要关心的是房间的布局以及可能需要修改的地方。
期待你们的反馈。