zu wenig Baunebenkosten oder ist die Kostenaufstellung okay?

4,30 Stern(e) 3 Votes
Zuletzt aktualisiert 21.11.2025
Sie befinden sich auf der Seite 3 der Diskussion zum Thema: zu wenig Baunebenkosten oder ist die Kostenaufstellung okay?
>> Zum 1. Beitrag <<

N

namia

Passivhaus nach Definition der iPHA. Hauptsächlich über Dämmung erreicht, daher nicht so viel zusätzliche Technik. Ob das ganze dann nach Kfw40 oder 55 eingestuft wird ist noch nicht klar (meinte der Achritekt, dass man da doch eher auf die Kosten-/Nutzen Relation achten sollte)

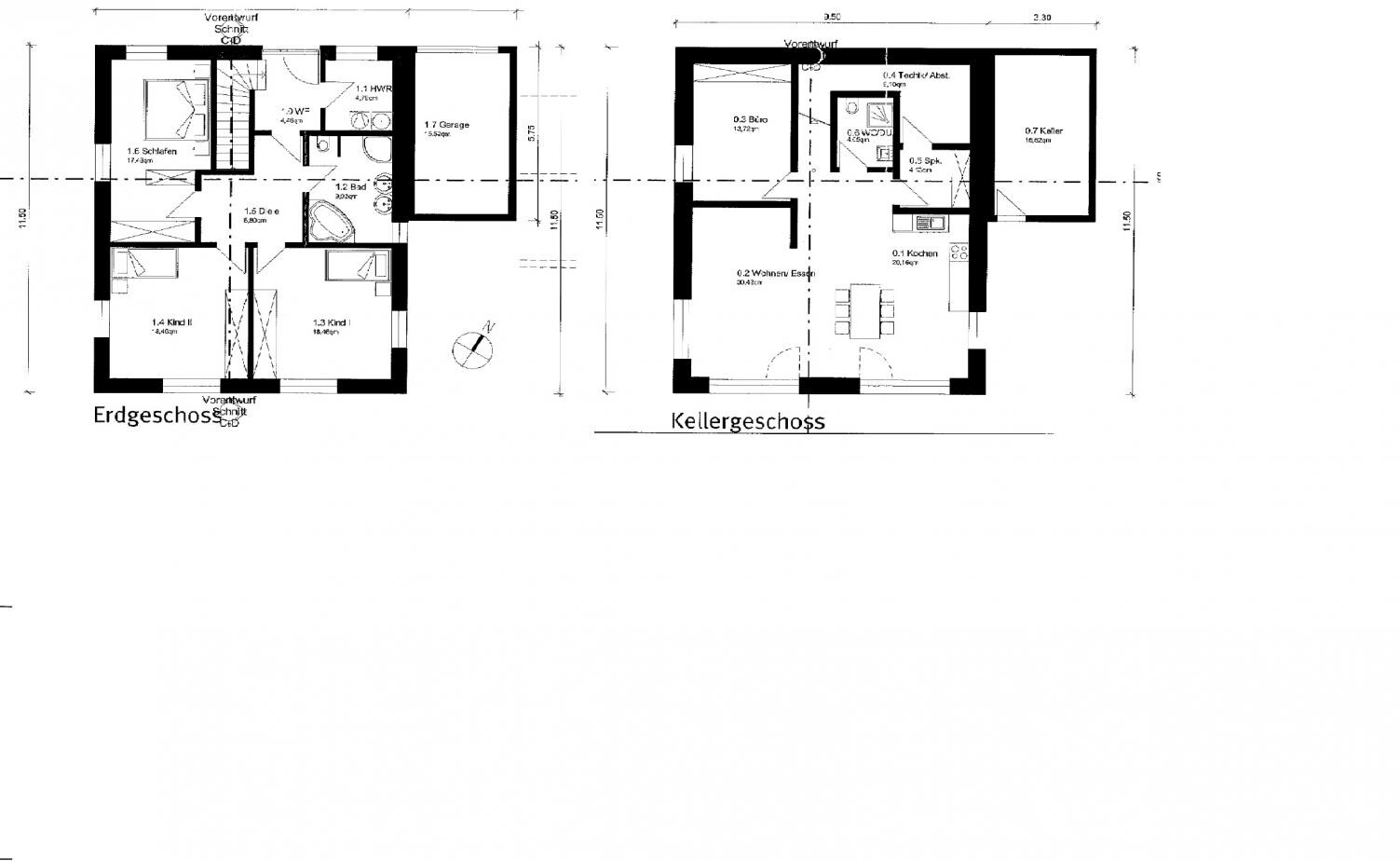
Grundrisse im Anhang.

Zwei kleine 2D-Grundrisse eines Hauses mit Raumaufteilung
 
B

Bauexperte

Hallo,

Passivhaus nach Definition der iPHA. Hauptsächlich über Dämmung erreicht, daher nicht so viel zusätzliche Technik.
Dann ist es kein Passivhaus sondern ein Niedrigenergiehaus; das ist schon ein erheblicher Unterschied!

Ist schon interessant, was alles sich Alles unter dem Zauberwort "PH" verkaufen läßt:

meinte der Achritekt, dass man da doch eher auf die Kosten-/Nutzen Relation achten sollte
Das zumindest ist eine kluge Aussage.

Na, dann überschlage ich mal, was es hier im Rheinland, massiv errichtet, kosten würde:

Haus 9.50 x 11.50 m als KfW 70-Effizienzhaus incl. Wohnraumkeller: TEUR 283
Hebeanlage: TEUR 6
Mauerwerksgarage KG/EG: TEUR 18
Abschleppung über Dach FG: TEUR 5 - X, je nach Ausführung
Kontrollierte Be-/Entlüftung mit Wärmerückgewinnung: TEUR 12 - 16, je nach Anbieter

=> bis hierher incl. Kosten Architektur und Statik

Typische Baunebenkosten: TEUR 35-40
Gründungsmehrkosten kann ich nichts zu sagen, da ich weder die genaue Hanglage noch die Beschaffenheit des Erdreichs kenne. Würde ich aber zumindest die Werte des Architekten hinterlegen
Malerarbeiten und Bodenbeläge in EL: TEUR 10
Außenanlagen in EL: TEUR 10
Rücklagen für Extra´s: TEUR 10

Grundrisse im Anhang.
Danke.

Wer ist denn auf die sinnige Idee verfallen, die Speisekammer unter das Bad des EG zu legen ? Würde ich im EG bzgl. der Leitungsführung mit dem kleinen Hauswirtschaftsraum tauschen.


PS: wozu brauchst Du Starkstrom im Wert TEUR 12 ?

Grüße, Bauexperte
 
Zuletzt bearbeitet von einem Moderator:
Zuletzt aktualisiert 21.11.2025
Im Forum Baukosten / Baunebenkosten / Baupreise gibt es 874 Themen mit insgesamt 29516 Beiträgen
Oben