Planung Lichtschalter für (Durchgangs-)Küche zwischen Ess- und Wohnbereich

Zuletzt aktualisiert 19.11.2025
Sie befinden sich auf der Seite 2 der Diskussion zum Thema: Planung Lichtschalter für (Durchgangs-)Küche zwischen Ess- und Wohnbereich
>> Zum 1. Beitrag <<

K

kasper_repsak

Danke für die Ideen und Anregungen! Ich werde über (f) noch nachdenken, entweder auf Wohnzimmerseite oder auf Seite der Stiege (sonst kostet der Dreifachschalter nochmals EUR 370 extra, da beim Ausgang zum Garten schon ein (f)-Schalter ist).

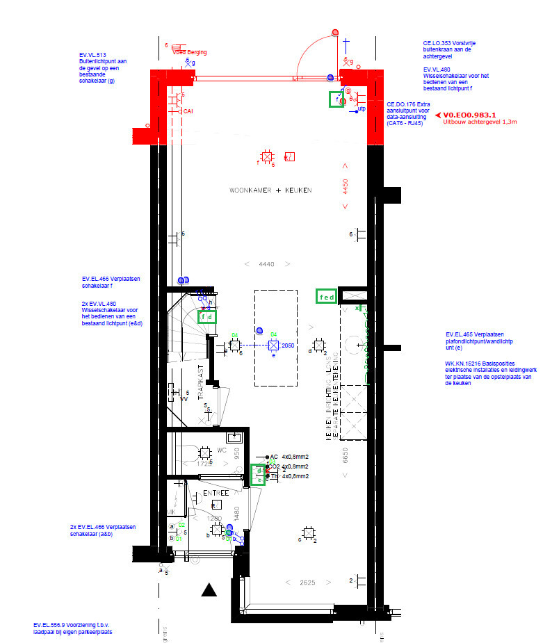
Aber mal im Plan rüber geschaut - in der Küchenzeile auf Herdseite rüber Richtung Wohnzimmer. Wie oft wird euch das passieren? Ist es praktisch, dann immer erst ganz rüber zu müssen?
Ich bin mir nicht sicher, ob ich das verstanden habe ...

Danke und lG,
Kasper
 
G

Ganneff

Ich bin mir nicht sicher, ob ich das verstanden habe ...
Wenn ich den Plan richtig lese hast Du eine Kücheninsel. Du kannst auf der Seite Treppe ins Wohnzimmer. Oder auf der anderen Seite, zwischen Kücheninsel und Küchenzeile. Unter Lampe "d 2" durch der "Gang". Wenn du dort lang kommst hast Du derzeit keine Möglichkeit Wohnzimmerlicht anzumachen und musst erst zur Treppe rüber.
 
K

kasper_repsak

Wenn ich den Plan richtig lese hast Du eine Kücheninsel. Du kannst auf der Seite Treppe ins Wohnzimmer. Oder auf der anderen Seite, zwischen Kücheninsel und Küchenzeile. Unter Lampe "d 2" durch der "Gang". Wenn du dort lang kommst hast Du derzeit keine Möglichkeit Wohnzimmerlicht anzumachen und musst erst zur Treppe rüber.
Danke, ja, das stimmt, um das Küchenlicht auszumachen und das Wohnzimmerlicht anzumachen muss man rund 2 Meter zur Treppe gehen (und dort liegen die Schalter dann auf zwei verschiedenen Seiten).

Wäre dies besser/sinnvoller?

- Treppe: Wohnzimmer (f), Küche allgemein (d) und Treppe (h) = auf der gleichen (Treppen-)Seite.
- Übergang Küche/Wohnzimmer (wie oben angesprochen): Wohnzimmer (f), Küche allgemein (d) und Kücheninsel (e) - in der Nähe wird später auch der integrierte Schalter für die Arbeitsbeleuchtung (x) sein - Strom ist vorgesehen, aber ein eigener Schalter bei (f), (e) und (d) würde nochmals rund EUR 370 kosten.
- Eingang aus Vorzimmer: Esstisch (c) und Küche allgemein (d)
- Eingang aus Garten: Wohnzimmer (f)

Vorteile: Wohnzimmer und Küche aus allen drei Ecken schaltbar; Schalter bei Treppe auf der gleicher Seite
Nachteil: Kücheninsel nur noch an einem Ort schaltbar (nicht mehr am Eingangsbereich und bei der Treppe, sondern nur noch in der Küche, wobei dort auch der Schalter für die andere Arbeitsbeleuchtung in der Nähe wäre).

Kosten: nochmals rund EUR 700, da (d) und (f) dreifach schaltbar wären.

concept v2.png


PS: Küche angepasst auf Basis Standard-Küchenplan.

Vielen Dank!
 
Zuletzt aktualisiert 19.11.2025
Im Forum Elektrik / Elektroplanung gibt es 827 Themen mit insgesamt 13595 Beiträgen
Oben